Algemeen
Comfortabele gezinswoning met verrassend veel ruimte.
Uitgebouwd, voorzien van kantoor-/praktijkruimte met eigen entree en gelegen in een kindvriendelijke straat.
Deze keurig onderhouden en uitgebouwde hoekwoning, gelegen in het rustige en groene Harmelen, is een ideale plek voor wie comfortabel en sfeervol wil wonen, dichtbij het centrum en diverse voorzieningen. De woning biedt bovendie... Meer informatie
Uitgebouwd, voorzien van kantoor-/praktijkruimte met eigen entree en gelegen in een kindvriendelijke straat.
Deze keurig onderhouden en uitgebouwde hoekwoning, gelegen in het rustige en groene Harmelen, is een ideale plek voor wie comfortabel en sfeervol wil wonen, dichtbij het centrum en diverse voorzieningen. De woning biedt bovendie... Meer informatie
| Kenmerken | |
|---|---|
| Alle kenmerken | |
| Type object | Eengezinswoning, woonhuis, twee onder een kap woning |
| Bouwjaar | 1960 |
| Status | Verkocht |
| Aangeboden sinds | Dinsdag 7 oktober 2025 |
Kenmerken
| Overdracht | |
|---|---|
| Vraagprijs | € 545.000,- k.k. |
| Status | Verkocht |
| Aanvaarding | In overleg |
| Aangeboden sinds | Dinsdag 7 oktober 2025 |
| Laatste wijziging | Woensdag 21 januari 2026 |
| Bouw | |
|---|---|
| Type object | Eengezinswoning, woonhuis, twee onder een kap woning |
| Soort bouw | Bestaande bouw |
| Bouwjaar | 1960 |
| Dakbedekking | Bitumen |
| Type dak | Platdak |
| Isolatievormen | Dubbel glas |
| Oppervlaktes en inhoud | |
|---|---|
| Perceeloppervlakte | 295 m² |
| Woonoppervlakte | 126 m² |
| Woonkameroppervlakte | 17 m² |
| Inhoud | 445 m³ |
| Oppervlakte externe bergruimte | 10 m² |
| Oppervlakte gebouwgebonden buitenruimte | 3 m² |
| Tuinoppervlakte | 171 m² |
| Indeling | |
|---|---|
| Aantal bouwlagen | 2 |
| Aantal kamers | 5 (waarvan 4 slaapkamers) |
| Locatie | |
|---|---|
| Ligging | Aan rustige weg Beschutte ligging In centrum In woonwijk |
| Tuin | |
|---|---|
| Type | Achtertuin |
| Hoofdtuin | Ja |
| Oriëntering | Zuid-west |
| Heeft een achterom | Ja |
| Staat | Normaal |
| Tuin 2 - Type | Achtertuin |
| Tuin 2 - Staat | Normaal |
| Tuin 3 - Type | Voortuin |
| Tuin 3 - Staat | Normaal |
| Tuin 4 - Type | Zijtuin |
| Tuin 4 - Staat | Normaal |
| Energieverbruik | |
|---|---|
| Energielabel | G |
| CV ketel | |
|---|---|
| CV ketel | Nefit Economline HR Excellent |
| Warmtebron | Gas |
| Combiketel | Ja |
| Eigendom | Eigendom |
| Uitrusting | |
|---|---|
| Aantal parkeerplaatsen | 2 |
| Warm water | CV-ketel |
| Verwarmingssysteem | Centrale verwarming |
| Badkamervoorzieningen | Douche Ligbad Wastafel |
| Heeft een rookkanaal | Ja |
| Tuin aanwezig | Ja |
| Heeft schuur/berging | Ja |
| Kadastrale gegevens | |
|---|---|
| Kadastrale aanduiding | Harmelen B 1532 |
| Perceeloppervlakte | 295 m² |
| Omvang | Geheel perceel |
| Eigendomsituatie | Eigen grond |
Beschrijving
Comfortabele gezinswoning met verrassend veel ruimte.
Uitgebouwd, voorzien van kantoor-/praktijkruimte met eigen entree en gelegen in een kindvriendelijke straat.
Deze keurig onderhouden en uitgebouwde hoekwoning, gelegen in het rustige en groene Harmelen, is een ideale plek voor wie comfortabel en sfeervol wil wonen, dichtbij het centrum en diverse voorzieningen. De woning biedt bovendien mogelijkheden tot verdere uitbreiding op de verdieping (vergunningsplichtig).
De woning beschikt over een ruime voortuin met parkeergelegenheid op eigen terrein en een zonnige achtertuin met stenen berging en achterom via de zijkant van de woning. Gelegen in een kindvriendelijke straat met voldoende openbare parkeergelegenheid woon je hier op korte afstand van het gezellige dorpscentrum van Harmelen.
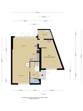
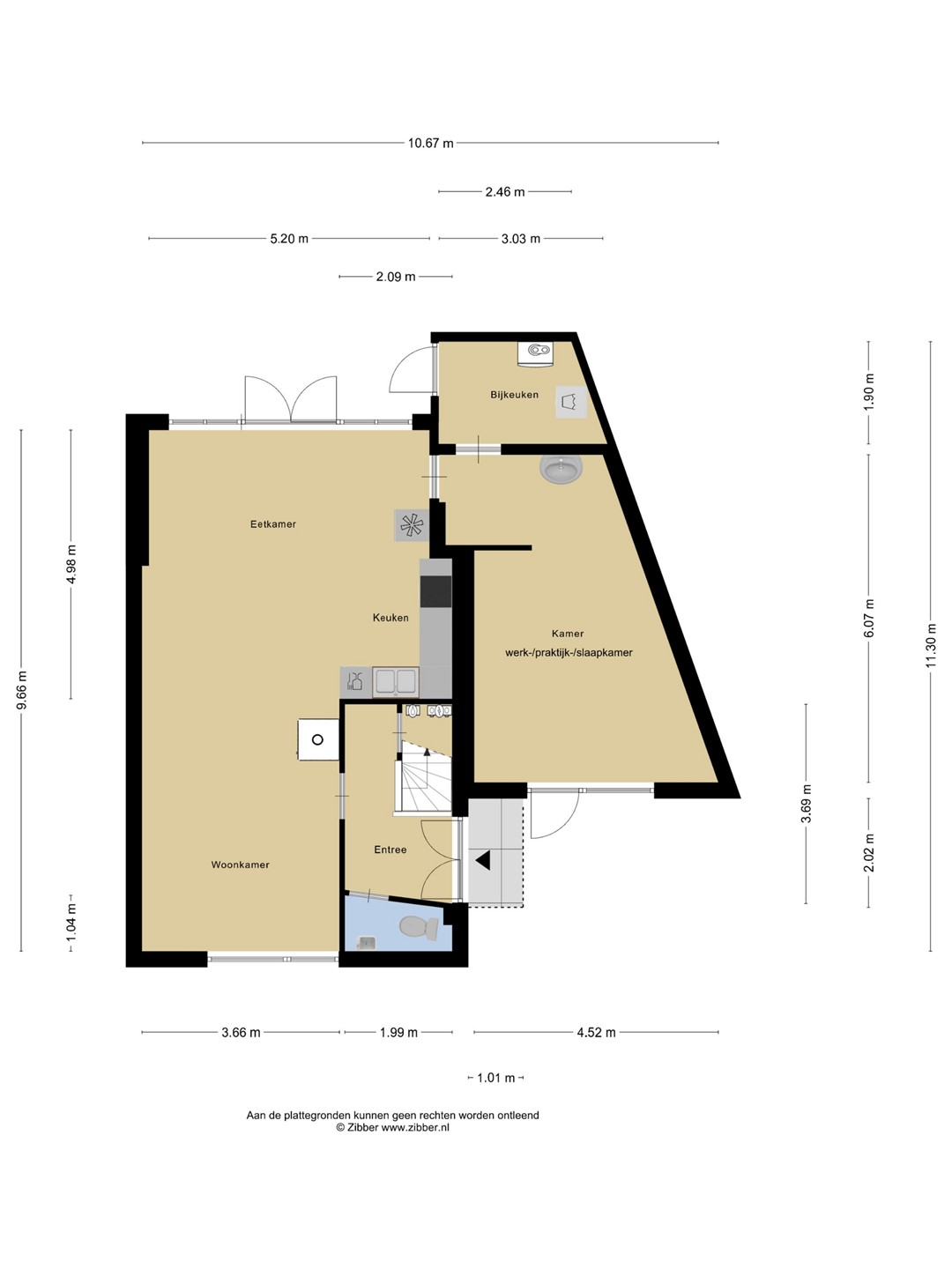
Op de begane grond tref je een lichte en royale woon- en eetkamer met open keuken. Verder beschikt de woning over een multifunctionele ruimte met eigen entree, ideaal als praktijk, kantoor, hobbykamer of zelfs slaapkamer. De aangrenzende bijkeuken maakt het geheel extra praktisch. Boven vind je drie slaapkamers, een badkamer en een vaste kast.
Harmelen ligt midden in het Groene Hart, dichtbij Woerden en gunstig ten opzichte van de snelwegen A12 en A2. Grote steden zoals Utrecht, Amsterdam, Rotterdam en Den Haag zijn met de auto in circa 30 minuten bereikbaar. Het dorp zelf biedt tal van voorzieningen op loopafstand, zoals winkels, basisscholen, openbaar vervoer, bibliotheek, kerken, kinderdagverblijven en sportfaciliteiten. Ook natuurliefhebbers komen hier aan hun trekken: de uitgestrekte polders en wandel- en fietsroutes liggen letterlijk om de hoek. Deze woning is dan ook perfect voor wie op zoek is naar een comfortabel en praktisch (gezins)huis in een rustige en centrale omgeving.
Entree
Parkeren kan zowel op de oprit voor de woning als op de openbare parkeerplaatsen in de straat. Via de voortuin bereik je de voordeur en stap je binnen in de hal. Hier vind je het toilet met fontein, de meterkast, de trapopgang en de toegang tot de woon-eetkamer met open keuken.
Woonkamer & keuken
De royale woon-eetkamer met open keuken is extra ruim door de uitbouw aan de achterzijde. Aan de voorzijde is ruimte voor een gezellige zithoek rondom de open haard, met uitzicht op de voortuin. Aan de achterzijde bevindt zich een royale eethoek, direct verbonden met de keuken, waardoor het geheel het gevoel van een woonkeuken krijgt. Hier is voldoende plek voor een ruime eettafel. Dankzij de openslaande deuren in de achtergevel loopt de woon-eetkamer naadloos over in de tuin.
De keuken is opgesteld in een praktische L-vorm en uitgerust met inbouwapparatuur, waaronder een 4-pits gasfornuis, afzuigkap en oven.
Aangrenzend aan de keuken bevindt zich de multifunctionele kantoor-/praktijkruimte met eigen entree, ideaal voor werk aan huis, hobby of als extra slaapkamer. Vanuit deze ruimte is de bijkeuken bereikbaar, waar de cv-ketel en de wasmachine-opstelling zijn gesitueerd. De bijkeuken biedt ook directe toegang tot de achtertuin.
Verdieping
Via de vaste trap bereik je de overloop met toegang tot drie slaapkamers, een badkamer en een vaste kast.
Aan de achterzijde liggen een ruime en een kleinere slaapkamer. Aan de voorzijde bevindt zich een tweede ruime slaapkamer met toegang tot het balkon. Naast deze slaapkamer ligt de volledig betegelde badkamer, voorzien van wastafel en douche in het bad.
Tuin
De verzorgde voortuin ligt op het noordoosten en biedt een groene aanblik met een looppad, borderbeplanting en een betegelde oprit. Naast de woning ligt een stuk tuin met gras, struiken en bomen. Via een bestraat pad is de achtertuin ook met de fiets eenvoudig bereikbaar.
De zonnige achtertuin op het zuidwesten loopt in een punt naar achteren en biedt veel privacy dankzij de groene erfafscheiding. Direct aan de woning is een terras ingericht met een zonnescherm, perfect om lange zomeravonden door te brengen. Verder bestaat de tuin uit een gazon met een fraaie volwassen boom die voor schaduw en een natuurlijke uitstraling zorgt. Een bestraat pad leidt naar de stenen berging, ideaal voor fietsen en tuingereedschap.
Bijzonderheden
• Zij- en achterzijde van de woning uitgebouwd
• Mogelijkheid tot dakopbouw (mits vergunning)
• Achterzijde begane grond en verdieping voorzien van kunststof kozijnen en dubbel glas
• Voorzijde begane grond en verdieping voorzien van houten kozijnen en dubbel glas
• Badkamer met enkel glas
• Parkeren op eigen terrein en in de straat
• Oplevering medio december 2025
• Gelegen in een rustige, kindvriendelijke straat nabij het dorpscentrum van Harmelen
DISCLAIMER
Voor onze koopakte gelden de standaard NVM-regels. In alle overeenkomsten bedraagt de waarborgsom/bankgarantie 10% van de koopsom en deze wordt voldaan aan de notaris.
Deze projectinformatie mag niet worden beschouwd als een aanbieding of offerte en wordt verstrekt onder voorbehoud van goedkeuring door verkoper. Wij kunnen geen aansprakelijkheid aanvaarden voor de door ons samengestelde gegevens. Deze informatie, eventuele gesprekken, onderhandelingen etc. zijn alle vrijblijvend. Er is pas overeenstemming bereikt op het moment dat de door Rien Treur Makelaardij opgestelde koopovereenkomst door beide partijen is beoordeeld en ondertekend. Tot dat moment hebben partijen het recht om af te zien van een transactie, zonder kostenvergoeding etc. Alle genoemde maten zijn indicatief, er kunnen geen rechten aan worden ontleend.
Uitgebouwd, voorzien van kantoor-/praktijkruimte met eigen entree en gelegen in een kindvriendelijke straat.
Deze keurig onderhouden en uitgebouwde hoekwoning, gelegen in het rustige en groene Harmelen, is een ideale plek voor wie comfortabel en sfeervol wil wonen, dichtbij het centrum en diverse voorzieningen. De woning biedt bovendien mogelijkheden tot verdere uitbreiding op de verdieping (vergunningsplichtig).
De woning beschikt over een ruime voortuin met parkeergelegenheid op eigen terrein en een zonnige achtertuin met stenen berging en achterom via de zijkant van de woning. Gelegen in een kindvriendelijke straat met voldoende openbare parkeergelegenheid woon je hier op korte afstand van het gezellige dorpscentrum van Harmelen.
Op de begane grond tref je een lichte en royale woon- en eetkamer met open keuken. Verder beschikt de woning over een multifunctionele ruimte met eigen entree, ideaal als praktijk, kantoor, hobbykamer of zelfs slaapkamer. De aangrenzende bijkeuken maakt het geheel extra praktisch. Boven vind je drie slaapkamers, een badkamer en een vaste kast.
Harmelen ligt midden in het Groene Hart, dichtbij Woerden en gunstig ten opzichte van de snelwegen A12 en A2. Grote steden zoals Utrecht, Amsterdam, Rotterdam en Den Haag zijn met de auto in circa 30 minuten bereikbaar. Het dorp zelf biedt tal van voorzieningen op loopafstand, zoals winkels, basisscholen, openbaar vervoer, bibliotheek, kerken, kinderdagverblijven en sportfaciliteiten. Ook natuurliefhebbers komen hier aan hun trekken: de uitgestrekte polders en wandel- en fietsroutes liggen letterlijk om de hoek. Deze woning is dan ook perfect voor wie op zoek is naar een comfortabel en praktisch (gezins)huis in een rustige en centrale omgeving.
Entree
Parkeren kan zowel op de oprit voor de woning als op de openbare parkeerplaatsen in de straat. Via de voortuin bereik je de voordeur en stap je binnen in de hal. Hier vind je het toilet met fontein, de meterkast, de trapopgang en de toegang tot de woon-eetkamer met open keuken.
Woonkamer & keuken
De royale woon-eetkamer met open keuken is extra ruim door de uitbouw aan de achterzijde. Aan de voorzijde is ruimte voor een gezellige zithoek rondom de open haard, met uitzicht op de voortuin. Aan de achterzijde bevindt zich een royale eethoek, direct verbonden met de keuken, waardoor het geheel het gevoel van een woonkeuken krijgt. Hier is voldoende plek voor een ruime eettafel. Dankzij de openslaande deuren in de achtergevel loopt de woon-eetkamer naadloos over in de tuin.
De keuken is opgesteld in een praktische L-vorm en uitgerust met inbouwapparatuur, waaronder een 4-pits gasfornuis, afzuigkap en oven.
Aangrenzend aan de keuken bevindt zich de multifunctionele kantoor-/praktijkruimte met eigen entree, ideaal voor werk aan huis, hobby of als extra slaapkamer. Vanuit deze ruimte is de bijkeuken bereikbaar, waar de cv-ketel en de wasmachine-opstelling zijn gesitueerd. De bijkeuken biedt ook directe toegang tot de achtertuin.
Verdieping
Via de vaste trap bereik je de overloop met toegang tot drie slaapkamers, een badkamer en een vaste kast.
Aan de achterzijde liggen een ruime en een kleinere slaapkamer. Aan de voorzijde bevindt zich een tweede ruime slaapkamer met toegang tot het balkon. Naast deze slaapkamer ligt de volledig betegelde badkamer, voorzien van wastafel en douche in het bad.
Tuin
De verzorgde voortuin ligt op het noordoosten en biedt een groene aanblik met een looppad, borderbeplanting en een betegelde oprit. Naast de woning ligt een stuk tuin met gras, struiken en bomen. Via een bestraat pad is de achtertuin ook met de fiets eenvoudig bereikbaar.
De zonnige achtertuin op het zuidwesten loopt in een punt naar achteren en biedt veel privacy dankzij de groene erfafscheiding. Direct aan de woning is een terras ingericht met een zonnescherm, perfect om lange zomeravonden door te brengen. Verder bestaat de tuin uit een gazon met een fraaie volwassen boom die voor schaduw en een natuurlijke uitstraling zorgt. Een bestraat pad leidt naar de stenen berging, ideaal voor fietsen en tuingereedschap.
Bijzonderheden
• Zij- en achterzijde van de woning uitgebouwd
• Mogelijkheid tot dakopbouw (mits vergunning)
• Achterzijde begane grond en verdieping voorzien van kunststof kozijnen en dubbel glas
• Voorzijde begane grond en verdieping voorzien van houten kozijnen en dubbel glas
• Badkamer met enkel glas
• Parkeren op eigen terrein en in de straat
• Oplevering medio december 2025
• Gelegen in een rustige, kindvriendelijke straat nabij het dorpscentrum van Harmelen
DISCLAIMER
Voor onze koopakte gelden de standaard NVM-regels. In alle overeenkomsten bedraagt de waarborgsom/bankgarantie 10% van de koopsom en deze wordt voldaan aan de notaris.
Deze projectinformatie mag niet worden beschouwd als een aanbieding of offerte en wordt verstrekt onder voorbehoud van goedkeuring door verkoper. Wij kunnen geen aansprakelijkheid aanvaarden voor de door ons samengestelde gegevens. Deze informatie, eventuele gesprekken, onderhandelingen etc. zijn alle vrijblijvend. Er is pas overeenstemming bereikt op het moment dat de door Rien Treur Makelaardij opgestelde koopovereenkomst door beide partijen is beoordeeld en ondertekend. Tot dat moment hebben partijen het recht om af te zien van een transactie, zonder kostenvergoeding etc. Alle genoemde maten zijn indicatief, er kunnen geen rechten aan worden ontleend.