Delen
Aanbieder
Kantoor
Rien Treur Makelaardij
Algemeen
Ruim en comfortabel wonen op een rustige en centrale plek in Harmelen
In een rustige en kindvriendelijke woonomgeving, op korte afstand van het dorpscentrum van Harmelen, staat deze ruime tussenwoning aan de Batestein 13. De woning biedt een lichte doorzonwoonkamer, open keuken, drie slaapkamers, een extra werkkamer en een dubbele dakkapel. Daarnaast beschikt de woning over een zonnige, diep... Meer informatie
In een rustige en kindvriendelijke woonomgeving, op korte afstand van het dorpscentrum van Harmelen, staat deze ruime tussenwoning aan de Batestein 13. De woning biedt een lichte doorzonwoonkamer, open keuken, drie slaapkamers, een extra werkkamer en een dubbele dakkapel. Daarnaast beschikt de woning over een zonnige, diep... Meer informatie
| Kenmerken | |
|---|---|
| Alle kenmerken | |
| Type object | Eengezinswoning, woonhuis, tussenwoning |
| Bouwjaar | 1960 |
| Status | Verkocht onder voorbehoud |
| Aangeboden sinds | Maandag 3 november 2025 |
Kenmerken
| Overdracht | |
|---|---|
| Prijs | € 495.000,- k.k. |
| Status | Verkocht onder voorbehoud |
| Aanvaarding | In overleg |
| Aangeboden sinds | Maandag 3 november 2025 |
| Laatste wijziging | Woensdag 26 november 2025 |
| Bouw | |
|---|---|
| Type object | Eengezinswoning, woonhuis, tussenwoning |
| Soort bouw | Bestaande bouw |
| Bouwjaar | 1960 |
| Dakbedekking | Bitumen Dakpannen |
| Type dak | Zadeldak |
| Isolatievormen | Dubbel glas |
| Oppervlaktes en inhoud | |
|---|---|
| Perceeloppervlakte | 198 m² |
| Woonoppervlakte | 81 m² |
| Woonkameroppervlakte | 28 m² |
| Inhoud | 377 m³ |
| Oppervlakte overige inpandige ruimten | 25 m² |
| Oppervlakte externe bergruimte | 26 m² |
| Oppervlakte gebouwgebonden buitenruimte | 7 m² |
| Tuinoppervlakte | 120 m² |
| Indeling | |
|---|---|
| Aantal bouwlagen | 3 |
| Aantal kamers | 5 (waarvan 4 slaapkamers) |
| Locatie | |
|---|---|
| Ligging | Aan rustige weg Beschutte ligging In woonwijk |
| Tuin | |
|---|---|
| Type | Achtertuin |
| Hoofdtuin | Ja |
| Oriëntering | Zuiden |
| Heeft een achterom | Ja |
| Staat | Prachtig aangelegd |
| Tuin 2 - Type | Achtertuin |
| Tuin 2 - Staat | Prachtig aangelegd |
| Tuin 3 - Type | Voortuin |
| Tuin 3 - Staat | Prachtig aangelegd |
| Energieverbruik | |
|---|---|
| Energielabel | D |
| CV ketel | |
|---|---|
| CV ketel | Nefit |
| Warmtebron | Gas |
| Bouwjaar | 2020 |
| Eigendom | Eigendom |
| Uitrusting | |
|---|---|
| Warm water | Geiser |
| Verwarmingssysteem | Centrale verwarming |
| Badkamervoorzieningen | Douche Ligbad Toilet Wastafel Wastafelmeubel |
| Heeft een balkon | Ja |
| Glasvezelaansluiting aanwezig | Ja |
| Tuin aanwezig | Ja |
| Heeft schuur/berging | Ja |
| Kadastrale gegevens | |
|---|---|
| Kadastrale aanduiding | Harmelen B 1392 |
| Perceeloppervlakte | 198 m² |
| Omvang | Geheel perceel |
| Eigendomsituatie | Eigen grond |
Beschrijving
Ruim en comfortabel wonen op een rustige en centrale plek in Harmelen
In een rustige en kindvriendelijke woonomgeving, op korte afstand van het dorpscentrum van Harmelen, staat deze ruime tussenwoning aan de Batestein 13. De woning biedt een lichte doorzonwoonkamer, open keuken, drie slaapkamers, een extra werkkamer en een dubbele dakkapel. Daarnaast beschikt de woning over een zonnige, diepe achtertuin met grote berging met zolder en kleine aangebouwde berging en is er voldoende parkeergelegenheid in de directe omgeving. Dankzij de rustige ligging én de centrale positie nabij winkels, scholen en sportvoorzieningen, is dit de ideale plek voor gezinnen die comfortabel willen wonen met alles binnen handbereik.
Ligging
Harmelen ligt midden in het Groene Hart, dichtbij Woerden en met uitstekende verbindingen naar de snelwegen A12 en A2. Grote steden zoals Utrecht, Amsterdam, Rotterdam en Den Haag zijn in circa 30 minuten bereikbaar. Het dorp zelf biedt diverse voorzieningen op loopafstand, zoals winkels, basisscholen, kinderdagverblijven, openbaar vervoer, kerken, bibliotheek en sportfaciliteiten. Zo combineert u comfortabel wonen in een rustige omgeving met alle gemak van dichtbij.
Entree
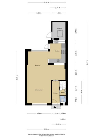
U parkeert uw auto aan de openbare weg en loopt naar de voortuin. De voortuin is sfeervol en groen ingericht, met een grote volwassen boom die voor natuurlijke schaduw en privacy zorgt. Een pad leidt naar de entree van de woning. U komt binnen in de hal waar u het toilet, de trapkast met meterkast, een garderobe en de trapopgang naar de verdieping vindt. Vanuit de hal heeft u toegang tot de eet-/woonkamer.
Woonkamer & keuken
De doorzonwoonkamer is heerlijk licht en biedt volop ruimte voor zowel een gezellige zithoek als een eethoek. Aan de voorzijde geniet u van het uitzicht op de groenblijvende voortuin, terwijl u aan de achterzijde uitkijkt op de zonnige achtertuin. De open keuken bevindt zich aan de achterzijde van de woning en staat in open verbinding met de woonkamer, wat zorgt voor een ruimtelijk en gezellig geheel.
De moderne keuken is in L-vorm opgesteld en voorzien van een 4-pits gaskookplaat, oven, koel-/vriescombinatie, afzuigkap en voldoende kastruimte. In een praktische nis is plaats voor de vaatwasser, koffiezetapparaat of andere keukenapparatuur. Vanuit de keuken loopt u direct door naar de zonnige achtertuin.
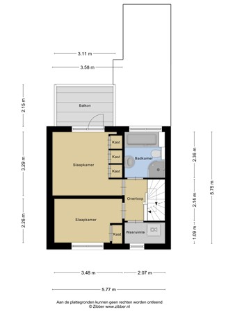
Eerste verdieping
Via de vaste trap bereikt u de overloop van de eerste verdieping met toegang tot twee ruime slaapkamers, de badkamer en een aparte wasruimte met wasmachineaansluiting.
De grootste slaapkamer, gelegen aan de achterzijde, beschikt over een vaste kastenwand én openslaande deuren naar het dakterras, een heerlijke plek om buiten te ontspannen met uitzicht over de tuin. De slaapkamer aan de voorzijde heeft eveneens een vaste kast en kijkt uit over de voortuin.
De geheel betegelde badkamer is uitgerust met een douchecabine, ligbad, wastafel en toilet. Kortom een fijne plek om de dag ontspannen te beginnen of juist af te sluiten.
Tweede verdieping
Dankzij de dubbele dakkapel is de tweede verdieping verrassend ruim. Hier vindt u een royale derde slaapkamer, die de volledige diepte van de woning beslaat en is voorzien van een vaste kast. Daarnaast is de gehele verdieping uitgerust met knieschotten met schuifdeuren, wat zorgt voor extra veel opbergruimte. Aan de achterzijde bevindt zich een extra werkkamer met uitzicht over de tuin, terwijl op de overloop tevens de cv-installatie is geplaatst.
De kamers op deze verdieping hebben een hoogte van minder dan 2 meter en worden daarom niet meegerekend in de woonoppervlakte, maar bieden wél volop functionele ruimte voor slapen, werken of hobby’s.
Tuin
De voortuin is sprookjesachtig aangelegd met groenborders en een grote volwassen boom in het midden. De boom zorgt voor een groene sfeer, natuurlijke verkoeling en extra privacy. Er is voldoende ruimte om een bankje of zitje te plaatsen, zodat u ook hier kunt genieten van de rust in de straat.
De diepe achtertuin is een waar paradijs voor tuinliefhebbers en biedt volop mogelijkheden om buiten te genieten. Direct achter de woning ligt een ruim terras, ideaal voor een zithoek of buitentafel. Via een breed pad langs het bordes bereikt u de grote stenen berging met een ruime hobby-/bergzolder – perfect voor wie graag klust. Daarnaast biedt deze berging voldoende ruimte voor het stallen van fietsen en motor(en) en is er een vaste wasbak aanwezig. De stenen berging grenst direct aan de achterom en is zo ontworpen dat u gemakkelijk onder de overkapping met fiets of motor de tuin in en uit kunt rijden. Kortom: het ideale tuinhuis.
De tuin is grotendeels betegeld met sierbestrating en omgeven door diverse planten, bloemen, struiken en bomen, waardoor het geheel een natuurlijke en rustige uitstraling heeft. Dankzij de ligging op het zuiden geniet u hier de hele dag door van de zon, met altijd een plekje in de zon of juist in de schaduw.
Bijzonderheden
• Lichte doorzonwoonkamer
• Dubbele dakkapel voor extra ruimte en licht
• Drie slaapkamers + aparte werkkamer
• Ruime stenen berging met bergzolder
• Achterom aanwezig
• Zonnige tuin op het zuiden
• Kamers op de tweede verdieping hebben deels een hoogte < 2 meter en zijn daarom niet meegerekend in de woonoppervlakte
• Twee ramen voor- en achterzijde begane grond vernieuwd in 2025
• Nefit HRC24 (CW4d) cv-ketel (december 2020)
• Rustige, centrale ligging nabij dorpscentrum
• Snelle oplevering mogelijk
DISCLAIMER
Voor onze koopakte gelden de standaard NVM-regels. In alle overeenkomsten bedraagt de waarborgsom/bankgarantie 10% van de koopsom en deze wordt voldaan aan de notaris.
Deze projectinformatie mag niet worden beschouwd als een aanbieding of offerte en wordt verstrekt onder voorbehoud van goedkeuring door verkoper. Wij kunnen geen aansprakelijkheid aanvaarden voor de door ons samengestelde gegevens. Deze informatie, eventuele gesprekken, onderhandelingen etc. zijn alle vrijblijvend. Er is pas overeenstemming bereikt op het moment dat de door Rien Treur Makelaardij opgestelde koopovereenkomst door beide partijen is beoordeeld en ondertekend. Tot dat moment hebben partijen het recht om af te zien van een transactie, zonder kostenvergoeding etc. Alle genoemde maten zijn indicatief, er kunnen geen rechten aan worden ontleend.
In een rustige en kindvriendelijke woonomgeving, op korte afstand van het dorpscentrum van Harmelen, staat deze ruime tussenwoning aan de Batestein 13. De woning biedt een lichte doorzonwoonkamer, open keuken, drie slaapkamers, een extra werkkamer en een dubbele dakkapel. Daarnaast beschikt de woning over een zonnige, diepe achtertuin met grote berging met zolder en kleine aangebouwde berging en is er voldoende parkeergelegenheid in de directe omgeving. Dankzij de rustige ligging én de centrale positie nabij winkels, scholen en sportvoorzieningen, is dit de ideale plek voor gezinnen die comfortabel willen wonen met alles binnen handbereik.
Ligging
Harmelen ligt midden in het Groene Hart, dichtbij Woerden en met uitstekende verbindingen naar de snelwegen A12 en A2. Grote steden zoals Utrecht, Amsterdam, Rotterdam en Den Haag zijn in circa 30 minuten bereikbaar. Het dorp zelf biedt diverse voorzieningen op loopafstand, zoals winkels, basisscholen, kinderdagverblijven, openbaar vervoer, kerken, bibliotheek en sportfaciliteiten. Zo combineert u comfortabel wonen in een rustige omgeving met alle gemak van dichtbij.
Entree
U parkeert uw auto aan de openbare weg en loopt naar de voortuin. De voortuin is sfeervol en groen ingericht, met een grote volwassen boom die voor natuurlijke schaduw en privacy zorgt. Een pad leidt naar de entree van de woning. U komt binnen in de hal waar u het toilet, de trapkast met meterkast, een garderobe en de trapopgang naar de verdieping vindt. Vanuit de hal heeft u toegang tot de eet-/woonkamer.
Woonkamer & keuken
De doorzonwoonkamer is heerlijk licht en biedt volop ruimte voor zowel een gezellige zithoek als een eethoek. Aan de voorzijde geniet u van het uitzicht op de groenblijvende voortuin, terwijl u aan de achterzijde uitkijkt op de zonnige achtertuin. De open keuken bevindt zich aan de achterzijde van de woning en staat in open verbinding met de woonkamer, wat zorgt voor een ruimtelijk en gezellig geheel.
De moderne keuken is in L-vorm opgesteld en voorzien van een 4-pits gaskookplaat, oven, koel-/vriescombinatie, afzuigkap en voldoende kastruimte. In een praktische nis is plaats voor de vaatwasser, koffiezetapparaat of andere keukenapparatuur. Vanuit de keuken loopt u direct door naar de zonnige achtertuin.
Eerste verdieping
Via de vaste trap bereikt u de overloop van de eerste verdieping met toegang tot twee ruime slaapkamers, de badkamer en een aparte wasruimte met wasmachineaansluiting.
De grootste slaapkamer, gelegen aan de achterzijde, beschikt over een vaste kastenwand én openslaande deuren naar het dakterras, een heerlijke plek om buiten te ontspannen met uitzicht over de tuin. De slaapkamer aan de voorzijde heeft eveneens een vaste kast en kijkt uit over de voortuin.
De geheel betegelde badkamer is uitgerust met een douchecabine, ligbad, wastafel en toilet. Kortom een fijne plek om de dag ontspannen te beginnen of juist af te sluiten.
Tweede verdieping
Dankzij de dubbele dakkapel is de tweede verdieping verrassend ruim. Hier vindt u een royale derde slaapkamer, die de volledige diepte van de woning beslaat en is voorzien van een vaste kast. Daarnaast is de gehele verdieping uitgerust met knieschotten met schuifdeuren, wat zorgt voor extra veel opbergruimte. Aan de achterzijde bevindt zich een extra werkkamer met uitzicht over de tuin, terwijl op de overloop tevens de cv-installatie is geplaatst.
De kamers op deze verdieping hebben een hoogte van minder dan 2 meter en worden daarom niet meegerekend in de woonoppervlakte, maar bieden wél volop functionele ruimte voor slapen, werken of hobby’s.
Tuin
De voortuin is sprookjesachtig aangelegd met groenborders en een grote volwassen boom in het midden. De boom zorgt voor een groene sfeer, natuurlijke verkoeling en extra privacy. Er is voldoende ruimte om een bankje of zitje te plaatsen, zodat u ook hier kunt genieten van de rust in de straat.
De diepe achtertuin is een waar paradijs voor tuinliefhebbers en biedt volop mogelijkheden om buiten te genieten. Direct achter de woning ligt een ruim terras, ideaal voor een zithoek of buitentafel. Via een breed pad langs het bordes bereikt u de grote stenen berging met een ruime hobby-/bergzolder – perfect voor wie graag klust. Daarnaast biedt deze berging voldoende ruimte voor het stallen van fietsen en motor(en) en is er een vaste wasbak aanwezig. De stenen berging grenst direct aan de achterom en is zo ontworpen dat u gemakkelijk onder de overkapping met fiets of motor de tuin in en uit kunt rijden. Kortom: het ideale tuinhuis.
De tuin is grotendeels betegeld met sierbestrating en omgeven door diverse planten, bloemen, struiken en bomen, waardoor het geheel een natuurlijke en rustige uitstraling heeft. Dankzij de ligging op het zuiden geniet u hier de hele dag door van de zon, met altijd een plekje in de zon of juist in de schaduw.
Bijzonderheden
• Lichte doorzonwoonkamer
• Dubbele dakkapel voor extra ruimte en licht
• Drie slaapkamers + aparte werkkamer
• Ruime stenen berging met bergzolder
• Achterom aanwezig
• Zonnige tuin op het zuiden
• Kamers op de tweede verdieping hebben deels een hoogte < 2 meter en zijn daarom niet meegerekend in de woonoppervlakte
• Twee ramen voor- en achterzijde begane grond vernieuwd in 2025
• Nefit HRC24 (CW4d) cv-ketel (december 2020)
• Rustige, centrale ligging nabij dorpscentrum
• Snelle oplevering mogelijk
DISCLAIMER
Voor onze koopakte gelden de standaard NVM-regels. In alle overeenkomsten bedraagt de waarborgsom/bankgarantie 10% van de koopsom en deze wordt voldaan aan de notaris.
Deze projectinformatie mag niet worden beschouwd als een aanbieding of offerte en wordt verstrekt onder voorbehoud van goedkeuring door verkoper. Wij kunnen geen aansprakelijkheid aanvaarden voor de door ons samengestelde gegevens. Deze informatie, eventuele gesprekken, onderhandelingen etc. zijn alle vrijblijvend. Er is pas overeenstemming bereikt op het moment dat de door Rien Treur Makelaardij opgestelde koopovereenkomst door beide partijen is beoordeeld en ondertekend. Tot dat moment hebben partijen het recht om af te zien van een transactie, zonder kostenvergoeding etc. Alle genoemde maten zijn indicatief, er kunnen geen rechten aan worden ontleend.