Delen
Aanbieder
Kantoor
Rien Treur Makelaardij
Algemeen
VANWEGE DE VELE BEZICHTIGINGSAANVRAGEN ZITTEN WE MOMENTEEL HELEMAAL VOL EN PLANNEN WE GEEN NIEUWE AFSPRAKEN IN.
Te huur aangeboden: een ruim 3-kamerappartement met prachtig uitzicht, een lichte woonkamer en een zonnig balkon op het zuiden. Het appartement beschikt over een moderne keuken, een nette badkamer en een inpandige berging. Op de begane grond bevindt zich tevens een separate berging... Meer informatie
Te huur aangeboden: een ruim 3-kamerappartement met prachtig uitzicht, een lichte woonkamer en een zonnig balkon op het zuiden. Het appartement beschikt over een moderne keuken, een nette badkamer en een inpandige berging. Op de begane grond bevindt zich tevens een separate berging... Meer informatie
| Kenmerken | |
|---|---|
| Alle kenmerken | |
| Type object | Appartement, portiekflat |
| Bouwjaar | 2001 |
| Status | Nieuw in verhuur |
| Aangeboden sinds | Vrijdag 20 maart 2026 |
Kenmerken
| Overdracht | |
|---|---|
| Prijs | € 1.550,- per maand |
| Status | Nieuw in verhuur |
| Aanvaarding | In overleg |
| Aangeboden sinds | Vrijdag 20 maart 2026 |
| Bouw | |
|---|---|
| Type object | Appartement, portiekflat |
| Woonlaag | 2e woonlaag |
| Soort bouw | Bestaande bouw |
| Bouwjaar | 2001 |
| Dakbedekking | Bitumen |
| Type dak | Platdak |
| Isolatievormen | Dakisolatie Dubbel glas Muurisolatie Vloerisolatie Volledig geïsoleerd |
| Oppervlaktes en inhoud | |
|---|---|
| Woonoppervlakte | 84 m² |
| Woonkameroppervlakte | 26 m² |
| Inhoud | 263 m³ |
| Oppervlakte externe bergruimte | 4 m² |
| Oppervlakte gebouwgebonden buitenruimte | 6 m² |
| Indeling | |
|---|---|
| Aantal bouwlagen | 1 |
| Aantal kamers | 3 (waarvan 2 slaapkamers) |
| Locatie | |
|---|---|
| Ligging | In woonwijk |
| Energieverbruik | |
|---|---|
| Energielabel | A |
| CV ketel | |
|---|---|
| Warmtebron | Gas |
| Combiketel | Ja |
| Eigendom | Eigendom |
| Uitrusting | |
|---|---|
| Aantal parkeerplaatsen | 1 |
| Warm water | CV-ketel |
| Verwarmingssysteem | Centrale verwarming |
| Heeft een balkon | Ja |
| Heeft schuur/berging | Ja |
| Vereniging van Eigenaren | |
|---|---|
| Ingeschreven bij de KvK | Ja |
| Jaarlijkse vergadering | Ja |
| Periodieke bijdrage | Ja |
| Reservefonds | Ja |
| Opstal verzekering | Ja |
| Kadastrale gegevens | |
|---|---|
| Kadastrale aanduiding | Utrecht A 1994 |
| Omvang | Appartementsrecht of complex |
| Eigendomsituatie | Eigen grond |
| Indexnummer | 3 |
Beschrijving
VANWEGE DE VELE BEZICHTIGINGSAANVRAGEN ZITTEN WE MOMENTEEL HELEMAAL VOL EN PLANNEN WE GEEN NIEUWE AFSPRAKEN IN.
Te huur aangeboden: een ruim 3-kamerappartement met prachtig uitzicht, een lichte woonkamer en een zonnig balkon op het zuiden. Het appartement beschikt over een moderne keuken, een nette badkamer en een inpandige berging. Op de begane grond bevindt zich tevens een separate berging. Parkeren kan op uw eigen parkeerplaats.
Het appartement is gelegen in een kleinschalig appartementencomplex aan het water, omgeven door veel groen. Diverse voorzieningen zoals openbaar vervoer, een supermarkt, het Veldhuizerpark en gezondheidsfaciliteiten bevinden zich in de directe omgeving. Daarnaast is de A12 uitstekend bereikbaar.
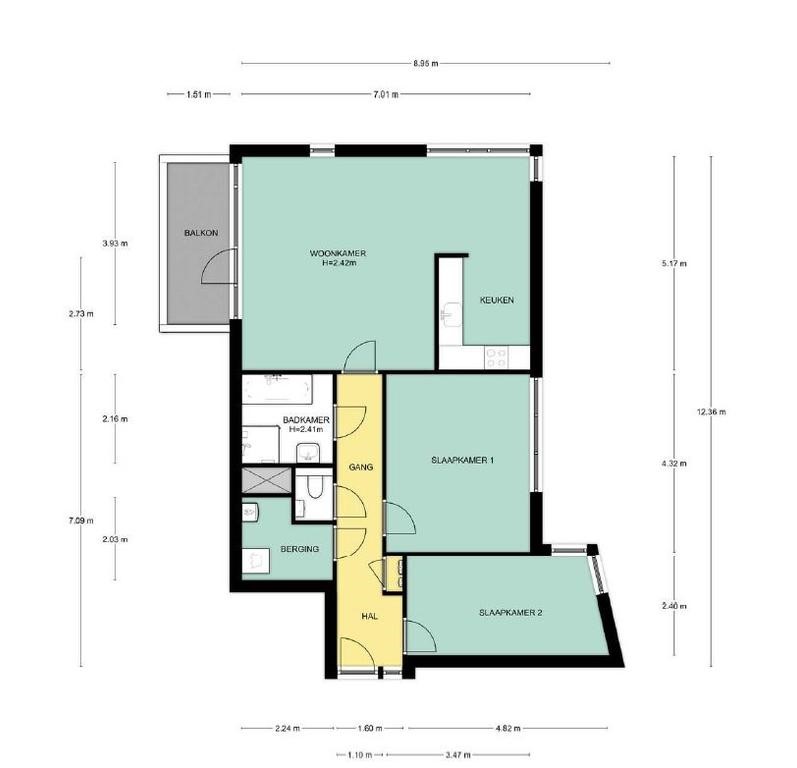
Indeling
Op de begane grond betreedt u het complex via de gezamenlijke entree met brievenbussen en een bellentableau.
Het appartement is gelegen op de eerste verdieping. Via de hal zijn alle vertrekken toegankelijk, waaronder de toiletruimte met fontein en de inpandige berging met aansluiting voor de wasmachine en de cv-installatie.
De ruime woonkamer kenmerkt zich door veel lichtinval dankzij de grote raampartij op het zuiden. Vanuit de woonkamer heeft u via een loopdeur toegang tot het balkon, waar u heerlijk van de zon kunt genieten. De woonkamer biedt voldoende ruimte voor een royale zithoek en biedt een prachtig uitzicht over de velden en het water.
Aangrenzend bevindt zich de halfopen keuken met eethoek. De L-vormige keuken is voorzien van diverse inbouwapparatuur, waaronder een combimagnetron, koelkast, vriezer, vaatwasser en een elektrische kookplaat met afzuigkap.
Het appartement beschikt over twee slaapkamers, beide gelegen aan de voorzijde. De volledig betegelde badkamer is uitgerust met een wastafel, douchecabine en ligbad.
Balkon
Het balkon is gelegen op het zuiden en bereikbaar vanuit de woonkamer.
Bijzonderheden:
- Zonnige woonkamer met prachtig uitzicht en veel lichtinval
- Balkon op het zuiden
- Inpandige berging én separate berging op de begane grond
- Gehele appartement voorzien van een laminaatvloer.
DISCLAIMER
Voor onze huurakte gelden de standaard NVM-regels.
Deze projectinformatie mag niet worden beschouwd als een aanbieding of offerte en wordt verstrekt onder voorbehoud van goedkeuring door verhuurder. Wij kunnen geen aansprakelijkheid aanvaarden voor de door ons samengestelde gegevens. Deze informatie, eventuele gesprekken, onderhandelingen etc. zijn allen vrijblijvend. Er is pas overeenstemming bereikt op het moment dat de door Rien Treur Makelaardij opgestelde huurovereenkomst door beide partijen is beoordeeld en ondertekend. Tot dat moment hebben partijen het recht om af te zien van een transactie, zonder kostenvergoeding etc. Alle genoemde maten zijn indicatief, er kunnen geen rechten aan worden ontleend.
Te huur aangeboden: een ruim 3-kamerappartement met prachtig uitzicht, een lichte woonkamer en een zonnig balkon op het zuiden. Het appartement beschikt over een moderne keuken, een nette badkamer en een inpandige berging. Op de begane grond bevindt zich tevens een separate berging. Parkeren kan op uw eigen parkeerplaats.
Het appartement is gelegen in een kleinschalig appartementencomplex aan het water, omgeven door veel groen. Diverse voorzieningen zoals openbaar vervoer, een supermarkt, het Veldhuizerpark en gezondheidsfaciliteiten bevinden zich in de directe omgeving. Daarnaast is de A12 uitstekend bereikbaar.
Indeling
Op de begane grond betreedt u het complex via de gezamenlijke entree met brievenbussen en een bellentableau.
Het appartement is gelegen op de eerste verdieping. Via de hal zijn alle vertrekken toegankelijk, waaronder de toiletruimte met fontein en de inpandige berging met aansluiting voor de wasmachine en de cv-installatie.
De ruime woonkamer kenmerkt zich door veel lichtinval dankzij de grote raampartij op het zuiden. Vanuit de woonkamer heeft u via een loopdeur toegang tot het balkon, waar u heerlijk van de zon kunt genieten. De woonkamer biedt voldoende ruimte voor een royale zithoek en biedt een prachtig uitzicht over de velden en het water.
Aangrenzend bevindt zich de halfopen keuken met eethoek. De L-vormige keuken is voorzien van diverse inbouwapparatuur, waaronder een combimagnetron, koelkast, vriezer, vaatwasser en een elektrische kookplaat met afzuigkap.
Het appartement beschikt over twee slaapkamers, beide gelegen aan de voorzijde. De volledig betegelde badkamer is uitgerust met een wastafel, douchecabine en ligbad.
Balkon
Het balkon is gelegen op het zuiden en bereikbaar vanuit de woonkamer.
Bijzonderheden:
- Zonnige woonkamer met prachtig uitzicht en veel lichtinval
- Balkon op het zuiden
- Inpandige berging én separate berging op de begane grond
- Gehele appartement voorzien van een laminaatvloer.
DISCLAIMER
Voor onze huurakte gelden de standaard NVM-regels.
Deze projectinformatie mag niet worden beschouwd als een aanbieding of offerte en wordt verstrekt onder voorbehoud van goedkeuring door verhuurder. Wij kunnen geen aansprakelijkheid aanvaarden voor de door ons samengestelde gegevens. Deze informatie, eventuele gesprekken, onderhandelingen etc. zijn allen vrijblijvend. Er is pas overeenstemming bereikt op het moment dat de door Rien Treur Makelaardij opgestelde huurovereenkomst door beide partijen is beoordeeld en ondertekend. Tot dat moment hebben partijen het recht om af te zien van een transactie, zonder kostenvergoeding etc. Alle genoemde maten zijn indicatief, er kunnen geen rechten aan worden ontleend.