Delen
Aanbieder
Kantoor
Rien Treur Makelaardij
Algemeen
Ruime bedrijfsruimte met kantine/vergaderruimte en kantoor te huur in Woerden.
Op bedrijventerrein Barwoutswaarder in Woerden bieden wij deze praktische en uitstekend bereikbare bedrijfsruimte met kantoor en kantine/vergaderruimte te huur aan. Het object beschikt over een totaal verhuurbaar vloeroppervlak van circa 206 m², verdeeld over een bedrijfsruimte op de begane grond van circa 92 m²,... Meer informatie
Op bedrijventerrein Barwoutswaarder in Woerden bieden wij deze praktische en uitstekend bereikbare bedrijfsruimte met kantoor en kantine/vergaderruimte te huur aan. Het object beschikt over een totaal verhuurbaar vloeroppervlak van circa 206 m², verdeeld over een bedrijfsruimte op de begane grond van circa 92 m²,... Meer informatie
| Kenmerken | |
|---|---|
| Alle kenmerken | |
| Type object | Bedrijfshal |
| Bouwjaar | 1981 |
| Status | Nieuw in verhuur |
| Aangeboden sinds | Maandag 8 december 2025 |
Kenmerken
| Overdracht | |
|---|---|
| Prijs | € 2.000,- per maand |
| Status | Nieuw in verhuur |
| Aanvaarding | In overleg |
| Aangeboden sinds | Maandag 8 december 2025 |
| Bouw | |
|---|---|
| Type object | Bedrijfshal |
| Eveneens | Buitenterrein |
| Soort bouw | Bestaande bouw |
| Bouwjaar | 1981 |
| Oppervlaktes en inhoud | |
|---|---|
| Bruto vloeroppervlakte | 92 m² |
| Kantoor oppervlakte | 112 m² |
| Locatie | |
|---|---|
| Ligging | Bedrijventerrein |
| Lokale voorzieningen | Bank op 2000 meter tot 3000 meter Recreatie op 1500 meter tot 2000 meter Restaurant op 1000 meter tot 1500 meter Winkel op 1000 meter tot 1500 meter |
| Bereikbaarheid | Bushalte op 500 meter tot 1000 meter Treinstation op 3000 meter tot 4000 meter Afrit van de snelweg op 4000 meter tot 5000 meter |
| Energieverbruik | |
|---|---|
| Energielabel | A+++++ |
| Kadastrale gegevens | |
|---|---|
| Kadastrale aanduiding | Woerden D 3760 |
| Omvang | Deel perceel |
| Eigendomsituatie | Eigen grond |
Beschrijving
Ruime bedrijfsruimte met kantine/vergaderruimte en kantoor te huur in Woerden.
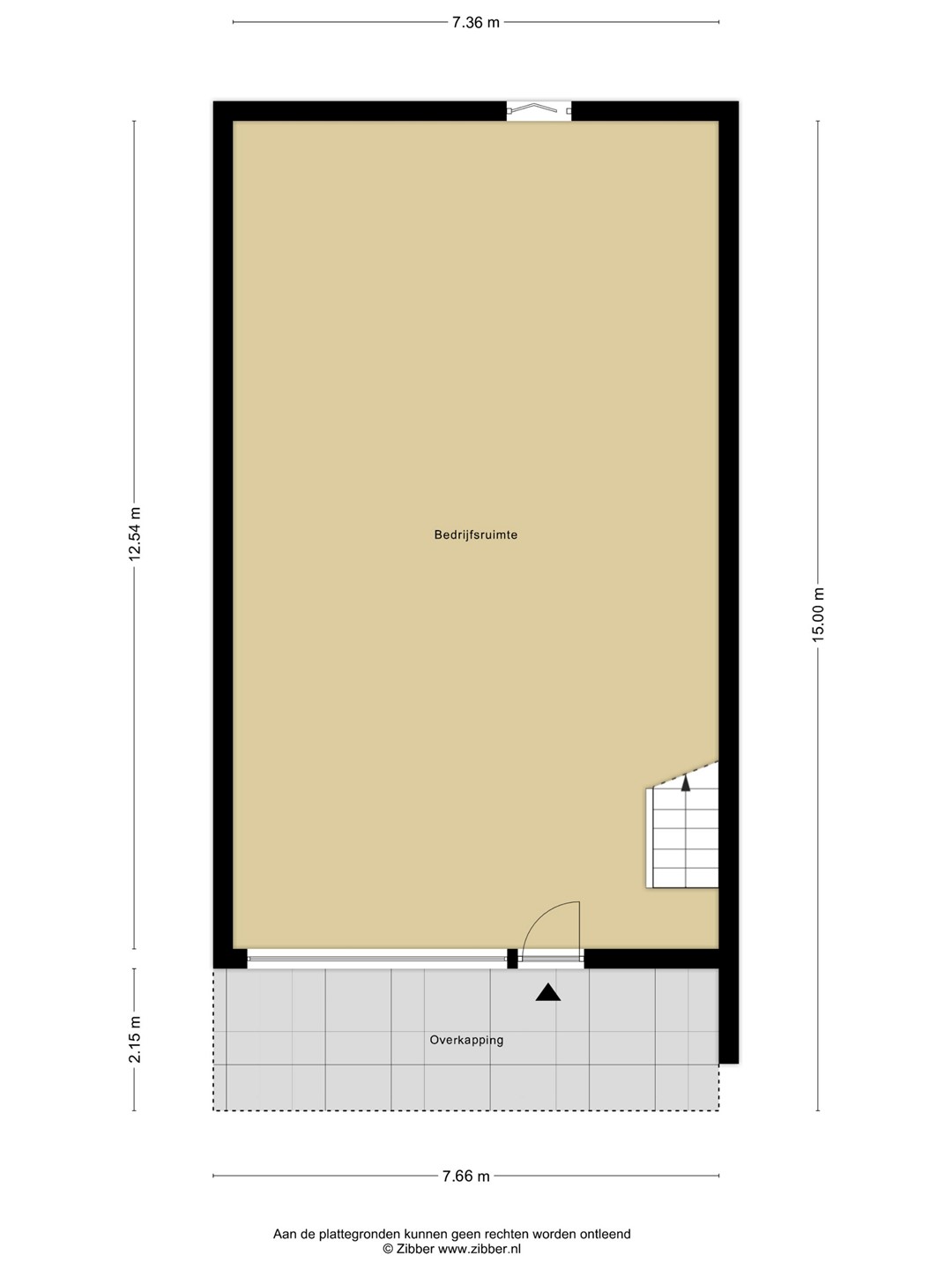
Op bedrijventerrein Barwoutswaarder in Woerden bieden wij deze praktische en uitstekend bereikbare bedrijfsruimte met kantoor en kantine/vergaderruimte te huur aan. Het object beschikt over een totaal verhuurbaar vloeroppervlak van circa 206 m², verdeeld over een bedrijfsruimte op de begane grond van circa 92 m², een kantine van circa 20 m², een vergaderruimte van circa 37 m² en een kantoorruimte van circa 55 m². Daarnaast horen er drie vaste parkeerplaatsen bij het object. De indeling en ruimteverdeling maken deze locatie uitermate geschikt voor uiteenlopende bedrijfsactiviteiten, zoals productie, opslag, ambacht, dienstverlening of combinatiegebruik met kantoor.
De bedrijfsruimte is degelijk en duurzaam gebouwd met een onderheide fundering, gemetselde spouwmuren en een betonnen vloer in de hal. Verder is de bedrijfsruimte voorzien van een elektrisch bedienbare overheaddeur en een separate loopdeur, wat zorgt voor een praktische en toegankelijke indeling. Hoewel het object bouwkundig onderdeel uitmaakt van een groter geheel, is de bedrijfsruimte volledig zelfstandig afsluitbaar en niet toegankelijk voor derden. Alle ruimten zijn uitsluitend bestemd voor de huurder, wat zorgt voor optimale privacy en veiligheid. De combinatie van solide bouwkwaliteit, moderne voorzieningen en een strategische ligging maakt dit een bijzonder aantrekkelijke locatie voor ondernemers.
Uitstekende bereikbaarheid
De locatie is zowel met de auto als met het openbaar vervoer goed bereikbaar. De op- en afritten van de A12 bevinden zich op circa 10 minuten rijafstand. Het treinstation van Woerden is binnen 10 minuten fietsen te bereiken. Daarnaast bevindt zich op loopafstand een bushalte met directe verbindingen naar het station. Ook het gezellige centrum van Woerden is nabijgelegen.
Waarom kiezen voor deze bedrijfsruimte?
• Ruime werkplaats/bedrijfsruimte met kantine/vergaderruimte en kantoor
• Voorzien van elektrische overheaddeur
• Het toilet bevindt zich op de eerste verdieping
• Drie eigen parkeerplaatsen
• Gelegen op een goed bereikbaar representatief bedrijventerrein
• Nabij het gezellige centrum van Woerden
Interesse? Neem contact met ons op voor meer informatie of een bezichtiging!
Entree
U rijdt het afgesloten terrein op via het hekwerk en parkeert uw auto op een van de vaste parkeerplaatsen die bij de bedrijfsruimte behoren. Vanaf het parkeerterrein loopt u naar de voorzijde van de bedrijfshal, welke volledig achter het hek is gelegen. Hier betreedt u het pand via de loopdeur of via de naastgelegen overheaddeur. U komt binnen in een ruime en overzichtelijke bedrijfshal.
Bedrijfsruimte
De bedrijfsruimte is gelegen op de begane grond en is royaal van opzet. Aan de rechterzijde van de bedrijfshal bevindt zich een stalen trap die toegang biedt tot de verdieping.
Kantine/Vergaderruimte
Via de stalen trap bereikt u de overloop van de verdieping, die directe toegang geeft tot de kantine/vergaderruimte. Dit is een royale, sfeervolle ruimte met aan één zijde een hoekkeuken, voorzien van een koelkast, vriezer, vierpits gaskookplaat, magnetron en vaatwasser, evenals een bar. Aan de andere zijde is volop ruimte voor het plaatsen van een grote eet- of vergadertafel, wat deze ruimte zeer geschikt maakt voor zowel pauzes als zakelijke overlegmomenten.
Kantoorruimte
Vanuit de kantine/vergaderruimte heeft u toegang tot de naastgelegen kantoorruimte. Deze ruime kantoorruimte van circa 55 m² biedt volop mogelijkheden voor het creëren van meerdere werkplekken. Dankzij de grote raampartijen aan de voor- en zijkant valt er veel daglicht binnen, wat zorgt voor een aangename, lichte en prettige werkomgeving.
Algemene informatie
Bijzonderheden
• Huurbetalingen: per maand vooruit
• Huurtermijn: in overleg
• Opzegtermijn: uiterlijk 12 maanden voor het aflopen van een huurtermijn
Huurprijsaanpassingen
Jaarlijks, voor het eerst één jaar na huuringangsdatum, op basis van het consumentenprijsindexcijfer voor alle huishoudens (CPI als vastgesteld door het CBS).
Zekerheidsstelling
Afhankelijk van de financiële gegoedheid van de kandidaat, een waarborgsom ter grootte van minimaal drie maanden huur te vermeerderen met de servicekosten en de wettelijk verschuldigde B.T.W.
Servicekosten
Servicekosten nader overeen te komen.
Huurcontract
Gebaseerd op het model kantoorruimte en andere bedrijfsruimte in de zin van artikel 7:230a BW, zoals is vastgesteld door de Raad van Onroerende Zaken (ROZ) in 2025, zoals gehanteerd door de Nederlandse Vereniging van Makelaars (NVM), met bijbehorende algemene bepalingen.
Omzetbelasting
Uitgangspunt is B.T.W. belaste verhuur. Derhalve dient de huursom te worden vermeerderd met het van toepassing zijnde B.T.W. percentage. Indien huurder niet aan het 90% criterium voldoet, zal er van rechtswege sprake zijn van omzetbelasting vrijgestelde verhuur. Alsdan wordt de overeengekomen kale huurprijs, exclusief B.T.W. zodanig verhoogd dat het voor verhuurder ontstane nadeel volledig wordt gecompenseerd.
Disclaimer
Voor onze huurovereenkomst gelden de standaard NVM-regels.
Deze informatie mag niet worden beschouwd als een aanbieding of offerte en wordt verstrekt voorbehoud van goedkeuring door verhuurder. Wij kunnen geen aansprakelijkheid aanvaarden voor de door ons samengestelde gegevens. Deze informatie, eventuele gesprekken, onderhandelingen etc. zijn allen vrijblijvend. Er is overeenstemming bereikt op het moment dat de door Rien Treur Makelaardij opgestelde huurovereenkomst door beide partijen is beoordeeld en ondertekend. Tot dat moment hebben partijen het recht zonder kostenvergoeding etc. af te zien van een transactie. Alle genoemde maten zijn indicatief, er kunnen geen rechten aan worden ontleend.
Op bedrijventerrein Barwoutswaarder in Woerden bieden wij deze praktische en uitstekend bereikbare bedrijfsruimte met kantoor en kantine/vergaderruimte te huur aan. Het object beschikt over een totaal verhuurbaar vloeroppervlak van circa 206 m², verdeeld over een bedrijfsruimte op de begane grond van circa 92 m², een kantine van circa 20 m², een vergaderruimte van circa 37 m² en een kantoorruimte van circa 55 m². Daarnaast horen er drie vaste parkeerplaatsen bij het object. De indeling en ruimteverdeling maken deze locatie uitermate geschikt voor uiteenlopende bedrijfsactiviteiten, zoals productie, opslag, ambacht, dienstverlening of combinatiegebruik met kantoor.
De bedrijfsruimte is degelijk en duurzaam gebouwd met een onderheide fundering, gemetselde spouwmuren en een betonnen vloer in de hal. Verder is de bedrijfsruimte voorzien van een elektrisch bedienbare overheaddeur en een separate loopdeur, wat zorgt voor een praktische en toegankelijke indeling. Hoewel het object bouwkundig onderdeel uitmaakt van een groter geheel, is de bedrijfsruimte volledig zelfstandig afsluitbaar en niet toegankelijk voor derden. Alle ruimten zijn uitsluitend bestemd voor de huurder, wat zorgt voor optimale privacy en veiligheid. De combinatie van solide bouwkwaliteit, moderne voorzieningen en een strategische ligging maakt dit een bijzonder aantrekkelijke locatie voor ondernemers.
Uitstekende bereikbaarheid
De locatie is zowel met de auto als met het openbaar vervoer goed bereikbaar. De op- en afritten van de A12 bevinden zich op circa 10 minuten rijafstand. Het treinstation van Woerden is binnen 10 minuten fietsen te bereiken. Daarnaast bevindt zich op loopafstand een bushalte met directe verbindingen naar het station. Ook het gezellige centrum van Woerden is nabijgelegen.
Waarom kiezen voor deze bedrijfsruimte?
• Ruime werkplaats/bedrijfsruimte met kantine/vergaderruimte en kantoor
• Voorzien van elektrische overheaddeur
• Het toilet bevindt zich op de eerste verdieping
• Drie eigen parkeerplaatsen
• Gelegen op een goed bereikbaar representatief bedrijventerrein
• Nabij het gezellige centrum van Woerden
Interesse? Neem contact met ons op voor meer informatie of een bezichtiging!
Entree
U rijdt het afgesloten terrein op via het hekwerk en parkeert uw auto op een van de vaste parkeerplaatsen die bij de bedrijfsruimte behoren. Vanaf het parkeerterrein loopt u naar de voorzijde van de bedrijfshal, welke volledig achter het hek is gelegen. Hier betreedt u het pand via de loopdeur of via de naastgelegen overheaddeur. U komt binnen in een ruime en overzichtelijke bedrijfshal.
Bedrijfsruimte
De bedrijfsruimte is gelegen op de begane grond en is royaal van opzet. Aan de rechterzijde van de bedrijfshal bevindt zich een stalen trap die toegang biedt tot de verdieping.
Kantine/Vergaderruimte
Via de stalen trap bereikt u de overloop van de verdieping, die directe toegang geeft tot de kantine/vergaderruimte. Dit is een royale, sfeervolle ruimte met aan één zijde een hoekkeuken, voorzien van een koelkast, vriezer, vierpits gaskookplaat, magnetron en vaatwasser, evenals een bar. Aan de andere zijde is volop ruimte voor het plaatsen van een grote eet- of vergadertafel, wat deze ruimte zeer geschikt maakt voor zowel pauzes als zakelijke overlegmomenten.
Kantoorruimte
Vanuit de kantine/vergaderruimte heeft u toegang tot de naastgelegen kantoorruimte. Deze ruime kantoorruimte van circa 55 m² biedt volop mogelijkheden voor het creëren van meerdere werkplekken. Dankzij de grote raampartijen aan de voor- en zijkant valt er veel daglicht binnen, wat zorgt voor een aangename, lichte en prettige werkomgeving.
Algemene informatie
Bijzonderheden
• Huurbetalingen: per maand vooruit
• Huurtermijn: in overleg
• Opzegtermijn: uiterlijk 12 maanden voor het aflopen van een huurtermijn
Huurprijsaanpassingen
Jaarlijks, voor het eerst één jaar na huuringangsdatum, op basis van het consumentenprijsindexcijfer voor alle huishoudens (CPI als vastgesteld door het CBS).
Zekerheidsstelling
Afhankelijk van de financiële gegoedheid van de kandidaat, een waarborgsom ter grootte van minimaal drie maanden huur te vermeerderen met de servicekosten en de wettelijk verschuldigde B.T.W.
Servicekosten
Servicekosten nader overeen te komen.
Huurcontract
Gebaseerd op het model kantoorruimte en andere bedrijfsruimte in de zin van artikel 7:230a BW, zoals is vastgesteld door de Raad van Onroerende Zaken (ROZ) in 2025, zoals gehanteerd door de Nederlandse Vereniging van Makelaars (NVM), met bijbehorende algemene bepalingen.
Omzetbelasting
Uitgangspunt is B.T.W. belaste verhuur. Derhalve dient de huursom te worden vermeerderd met het van toepassing zijnde B.T.W. percentage. Indien huurder niet aan het 90% criterium voldoet, zal er van rechtswege sprake zijn van omzetbelasting vrijgestelde verhuur. Alsdan wordt de overeengekomen kale huurprijs, exclusief B.T.W. zodanig verhoogd dat het voor verhuurder ontstane nadeel volledig wordt gecompenseerd.
Disclaimer
Voor onze huurovereenkomst gelden de standaard NVM-regels.
Deze informatie mag niet worden beschouwd als een aanbieding of offerte en wordt verstrekt voorbehoud van goedkeuring door verhuurder. Wij kunnen geen aansprakelijkheid aanvaarden voor de door ons samengestelde gegevens. Deze informatie, eventuele gesprekken, onderhandelingen etc. zijn allen vrijblijvend. Er is overeenstemming bereikt op het moment dat de door Rien Treur Makelaardij opgestelde huurovereenkomst door beide partijen is beoordeeld en ondertekend. Tot dat moment hebben partijen het recht zonder kostenvergoeding etc. af te zien van een transactie. Alle genoemde maten zijn indicatief, er kunnen geen rechten aan worden ontleend.