Algemeen
Praktisch kantoorpand met kantine op bedrijventerrein Honthorst
Op bedrijventerrein Honthorst in Woerden bieden wij dit praktische en goed bereikbare kantoorpand met kantine te huur aan. Het pand is gelegen aan de Marconiweg 15 en beschikt over een totaal verhuurbaar vloeroppervlak van circa 120 m². De begane grond van circa 31 m² omvat een kantine, toilet, badkamer en bergruimte, terwijl de... Meer informatie
Op bedrijventerrein Honthorst in Woerden bieden wij dit praktische en goed bereikbare kantoorpand met kantine te huur aan. Het pand is gelegen aan de Marconiweg 15 en beschikt over een totaal verhuurbaar vloeroppervlak van circa 120 m². De begane grond van circa 31 m² omvat een kantine, toilet, badkamer en bergruimte, terwijl de... Meer informatie
| Kenmerken | |
|---|---|
| Alle kenmerken | |
| Type object | Kantoor |
| Bouwjaar | 1974 |
| Status | Verhuurd |
| Aangeboden sinds | Donderdag 11 september 2025 |
Kenmerken
| Overdracht | |
|---|---|
| Prijs | € 1.000,- per maand |
| Status | Verhuurd |
| Aanvaarding | In overleg |
| Aangeboden sinds | Donderdag 11 september 2025 |
| Laatste wijziging | Woensdag 12 november 2025 |
| Bouw | |
|---|---|
| Type object | Kantoor |
| Soort bouw | Bestaande bouw |
| Bouwjaar | 1974 |
| Oppervlaktes en inhoud | |
|---|---|
| Bruto vloeroppervlakte | 120 m² |
| Locatie | |
|---|---|
| Ligging | Bedrijventerrein |
| Lokale voorzieningen | Bank op 1500 meter tot 2000 meter Recreatie op 1000 meter tot 1500 meter Restaurant op 1000 meter tot 1500 meter Winkel binnen 500 meter |
| Bereikbaarheid | Bushalte op 1000 meter tot 1500 meter Treinstation op 1000 meter tot 1500 meter Afrit van de snelweg op 2000 meter tot 3000 meter |
| Energieverbruik | |
|---|---|
| Energielabel | A |
Beschrijving
Praktisch kantoorpand met kantine op bedrijventerrein Honthorst
Op bedrijventerrein Honthorst in Woerden bieden wij dit praktische en goed bereikbare kantoorpand met kantine te huur aan. Het pand is gelegen aan de Marconiweg 15 en beschikt over een totaal verhuurbaar vloeroppervlak van circa 120 m². De begane grond van circa 31 m² omvat een kantine, toilet, badkamer en bergruimte, terwijl de verdieping van circa 75 m² is ingericht met meerdere kantoorruimtes en circa 13 m² aan overige verkeersruimte. Deze locatie biedt volop mogelijkheden voor uiteenlopende bedrijfsactiviteiten.
Uitstekende bereikbaarheid
Deze kantoorruimte ligt op bedrijventerrein Honthorst, een dynamische en goed bereikbare werklocatie in het hart van het Groene Hart. Dankzij de centrale ligging nabij de A12 en de N204 is de locatie uitstekend bereikbaar per auto, terwijl station Woerden op slechts enkele minuten afstand ligt. Het terrein heeft een verzorgde uitstraling, biedt diverse voorzieningen en kent een actieve ondernemersvereniging (BIZ) die zich inzet voor veiligheid en onderhoud. Een ideale vestigingsplek voor bedrijven die willen profiteren van een functionele omgeving met uitstekende bereikbaarheid.
Waarom kiezen voor dit kantoorpand?
- Gelegen op een goed bereikbaar bedrijventerrein
- Praktische indeling met kantine, badkamer en toilet op de begane grond
- Lichte en ruime kantoorruimtes op de verdieping met grote raampartijen
- Centrale ligging in het Groene Hart, nabij uitvalswegen en station Woerden
Interesse? Neem contact met ons op voor meer informatie of een bezichtiging!
Entree
Bij aankomst parkeert u uw auto op een openbare parkeerplaats in de directe omgeving. Via de voordeur betreedt u de entree, waar zich de meterkast en een toilet met fontein bevinden. Vanuit de hal bereikt u via de vaste trap de verdieping, of loopt u door naar de kantine op de begane grond.
Kantine
De kantine is ruim van opzet en voorzien van een hoekkeuken met diverse inbouwapparatuur, waaronder een vaatwasser, 4-pits gaskookplaat met afzuigkap, spoelbak, koelkast en voldoende kastruimte. Hier is genoeg plek voor een grote tafel, ideaal voor gezamenlijke lunches of informele overleggen. Onder de trap bevindt zich extra bergruimte, en daarnaast treft u een badkamer met wastafelmeubel met spiegelkast, designradiator en douche.
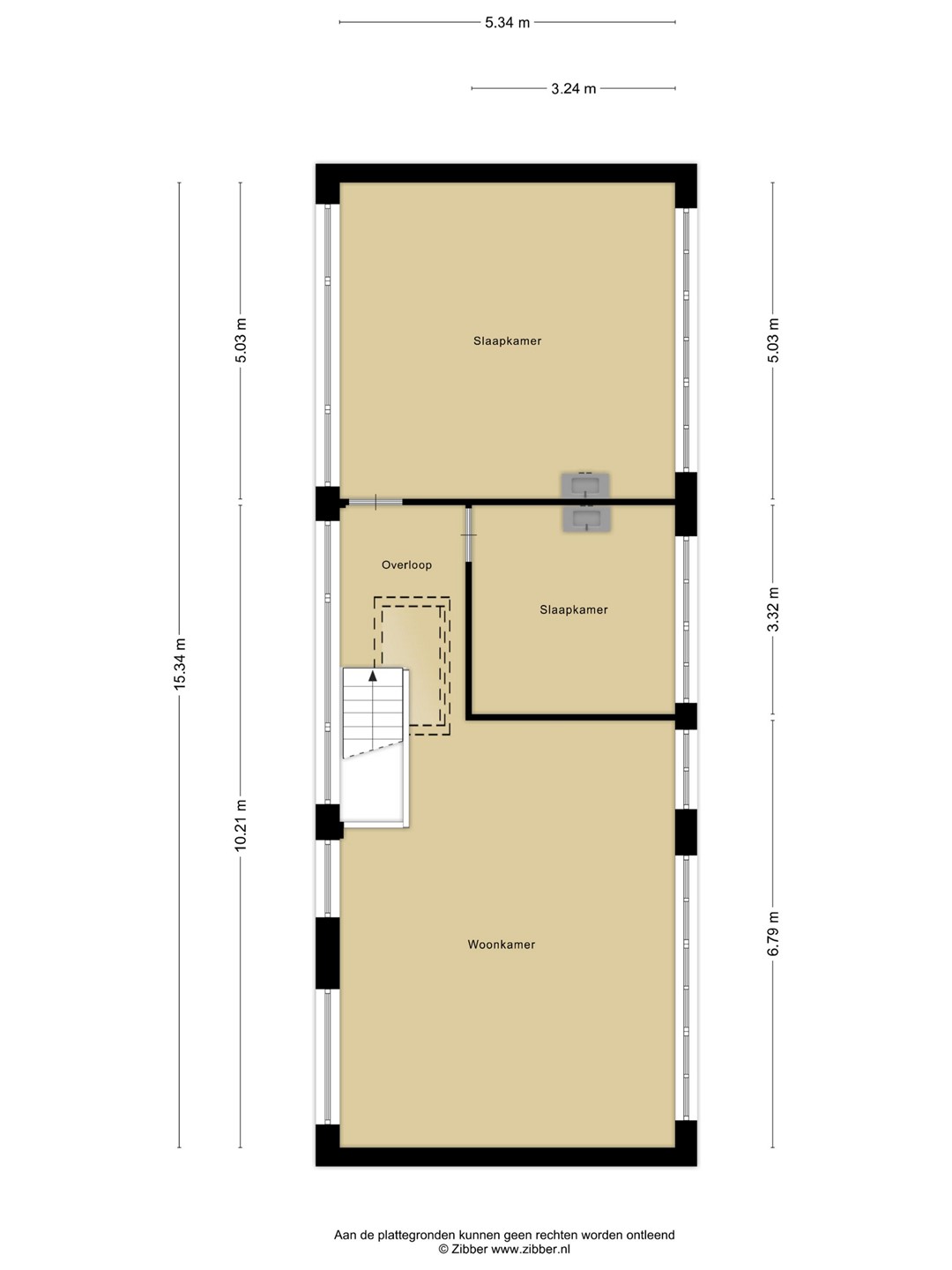
Kantoorruimtes
Via de vaste trap bereikt u de verdieping, die bestaat uit een overloop met een royale, lichte kantoorruimte met aan twee zijden grote raampartijen, waardoor er veel natuurlijk daglicht binnenvalt. Daarnaast zijn er twee separate kantoorruimtes, elk voorzien van een wastafelmeubel met spiegelkast en eveneens ruime lichtinval. De indeling maakt dit pand geschikt voor zowel individueel als gezamenlijk werken, met voldoende privacy en comfort.
Algemene informatie
Bijzonderheden
• Huurbetalingen: per maand vooruit
• Huurtermijn: 5 jaar
• Opzegtermijn: uiterlijk 12 maanden voor het aflopen van een huurtermijn
Huurprijsaanpassingen
Jaarlijks, voor het eerst één jaar na huuringangsdatum, op basis van het consumentenprijsindexcijfer voor alle huishoudens (CPI als vastgesteld door het CBS).
Zekerheidsstelling
Afhankelijk van de financiële gegoedheid van de kandidaat, een waarborgsom ter grootte van minimaal drie maanden huur te vermeerderen met de servicekosten en de wettelijk verschuldigde B.T.W.
Servicekosten
De nutsvoorzieningen worden eens per jaar verrekend.
Huurcontract
Gebaseerd op het model kantoorruimte en andere bedrijfsruimte in de zin van artikel 7:230a BW, zoals is vastgesteld door de Raad van Onroerende Zaken (ROZ) in 2025, zoals gehanteerd door de Nederlandse Vereniging van Makelaars (NVM), met bijbehorende algemene bepalingen.
Omzetbelasting
Uitgangspunt is B.T.W. belaste verhuur. Derhalve dient de huursom te worden vermeerderd met het van toepassing zijnde B.T.W. percentage. Indien huurder niet aan het 90% criterium voldoet, zal er van rechtswege sprake zijn van omzetbelasting vrijgestelde verhuur. Alsdan wordt de overeengekomen kale huurprijs, exclusief B.T.W. zodanig verhoogd dat het voor verhuurder ontstane nadeel volledig wordt gecompenseerd.
Disclaimer
Voor onze huurovereenkomst gelden de standaard NVM-regels.
Deze informatie mag niet worden beschouwd als een aanbieding of offerte en wordt verstrekt voorbehoud van goedkeuring door verhuurder. Wij kunnen geen aansprakelijkheid aanvaarden voor de door ons samengestelde gegevens. Deze informatie, eventuele gesprekken, onderhandelingen etc. zijn allen vrijblijvend. Er is overeenstemming bereikt op het moment dat de door Rien Treur Makelaardij opgestelde huurovereenkomst door beide partijen is beoordeeld en ondertekend. Tot dat moment hebben partijen het recht zonder kostenvergoeding etc. af te zien van een transactie. Alle genoemde maten zijn indicatief, er kunnen geen rechten aan worden ontleend.
Op bedrijventerrein Honthorst in Woerden bieden wij dit praktische en goed bereikbare kantoorpand met kantine te huur aan. Het pand is gelegen aan de Marconiweg 15 en beschikt over een totaal verhuurbaar vloeroppervlak van circa 120 m². De begane grond van circa 31 m² omvat een kantine, toilet, badkamer en bergruimte, terwijl de verdieping van circa 75 m² is ingericht met meerdere kantoorruimtes en circa 13 m² aan overige verkeersruimte. Deze locatie biedt volop mogelijkheden voor uiteenlopende bedrijfsactiviteiten.
Uitstekende bereikbaarheid
Deze kantoorruimte ligt op bedrijventerrein Honthorst, een dynamische en goed bereikbare werklocatie in het hart van het Groene Hart. Dankzij de centrale ligging nabij de A12 en de N204 is de locatie uitstekend bereikbaar per auto, terwijl station Woerden op slechts enkele minuten afstand ligt. Het terrein heeft een verzorgde uitstraling, biedt diverse voorzieningen en kent een actieve ondernemersvereniging (BIZ) die zich inzet voor veiligheid en onderhoud. Een ideale vestigingsplek voor bedrijven die willen profiteren van een functionele omgeving met uitstekende bereikbaarheid.
Waarom kiezen voor dit kantoorpand?
- Gelegen op een goed bereikbaar bedrijventerrein
- Praktische indeling met kantine, badkamer en toilet op de begane grond
- Lichte en ruime kantoorruimtes op de verdieping met grote raampartijen
- Centrale ligging in het Groene Hart, nabij uitvalswegen en station Woerden
Interesse? Neem contact met ons op voor meer informatie of een bezichtiging!
Entree
Bij aankomst parkeert u uw auto op een openbare parkeerplaats in de directe omgeving. Via de voordeur betreedt u de entree, waar zich de meterkast en een toilet met fontein bevinden. Vanuit de hal bereikt u via de vaste trap de verdieping, of loopt u door naar de kantine op de begane grond.
Kantine
De kantine is ruim van opzet en voorzien van een hoekkeuken met diverse inbouwapparatuur, waaronder een vaatwasser, 4-pits gaskookplaat met afzuigkap, spoelbak, koelkast en voldoende kastruimte. Hier is genoeg plek voor een grote tafel, ideaal voor gezamenlijke lunches of informele overleggen. Onder de trap bevindt zich extra bergruimte, en daarnaast treft u een badkamer met wastafelmeubel met spiegelkast, designradiator en douche.
Kantoorruimtes
Via de vaste trap bereikt u de verdieping, die bestaat uit een overloop met een royale, lichte kantoorruimte met aan twee zijden grote raampartijen, waardoor er veel natuurlijk daglicht binnenvalt. Daarnaast zijn er twee separate kantoorruimtes, elk voorzien van een wastafelmeubel met spiegelkast en eveneens ruime lichtinval. De indeling maakt dit pand geschikt voor zowel individueel als gezamenlijk werken, met voldoende privacy en comfort.
Algemene informatie
Bijzonderheden
• Huurbetalingen: per maand vooruit
• Huurtermijn: 5 jaar
• Opzegtermijn: uiterlijk 12 maanden voor het aflopen van een huurtermijn
Huurprijsaanpassingen
Jaarlijks, voor het eerst één jaar na huuringangsdatum, op basis van het consumentenprijsindexcijfer voor alle huishoudens (CPI als vastgesteld door het CBS).
Zekerheidsstelling
Afhankelijk van de financiële gegoedheid van de kandidaat, een waarborgsom ter grootte van minimaal drie maanden huur te vermeerderen met de servicekosten en de wettelijk verschuldigde B.T.W.
Servicekosten
De nutsvoorzieningen worden eens per jaar verrekend.
Huurcontract
Gebaseerd op het model kantoorruimte en andere bedrijfsruimte in de zin van artikel 7:230a BW, zoals is vastgesteld door de Raad van Onroerende Zaken (ROZ) in 2025, zoals gehanteerd door de Nederlandse Vereniging van Makelaars (NVM), met bijbehorende algemene bepalingen.
Omzetbelasting
Uitgangspunt is B.T.W. belaste verhuur. Derhalve dient de huursom te worden vermeerderd met het van toepassing zijnde B.T.W. percentage. Indien huurder niet aan het 90% criterium voldoet, zal er van rechtswege sprake zijn van omzetbelasting vrijgestelde verhuur. Alsdan wordt de overeengekomen kale huurprijs, exclusief B.T.W. zodanig verhoogd dat het voor verhuurder ontstane nadeel volledig wordt gecompenseerd.
Disclaimer
Voor onze huurovereenkomst gelden de standaard NVM-regels.
Deze informatie mag niet worden beschouwd als een aanbieding of offerte en wordt verstrekt voorbehoud van goedkeuring door verhuurder. Wij kunnen geen aansprakelijkheid aanvaarden voor de door ons samengestelde gegevens. Deze informatie, eventuele gesprekken, onderhandelingen etc. zijn allen vrijblijvend. Er is overeenstemming bereikt op het moment dat de door Rien Treur Makelaardij opgestelde huurovereenkomst door beide partijen is beoordeeld en ondertekend. Tot dat moment hebben partijen het recht zonder kostenvergoeding etc. af te zien van een transactie. Alle genoemde maten zijn indicatief, er kunnen geen rechten aan worden ontleend.