Beschrijving

Sfeervol, energiezuinig en verrassend ruim wonen in het groene Bomen- en Bloemenkwartier

Droom je van een huis waar je direct voelt dat je thuis bent? Deze prachtige jaren ’30 tussenwoning combineert moderne luxe met een comfortabele, lichte sfeer en een zonnige tuin waar je kunt ontspannen en genieten. Met een royale serre, ruime keuken met eetkamer en woonkamer, drie dakkapellen, vier slaapkamers, een keurige badkamer en energielabel A is deze woning helemaal klaar voor jouw toekomst.

De woning is zorgvuldig gemoderniseerd, uitstekend geïsoleerd en voorzien van 8 zonnepanelen en vloerverwarming. Hier woon je niet alleen sfeervol, maar ook duurzaam en energiezuinig.

De ligging is ideaal: in het geliefde en kindvriendelijke Bomen- en Bloemenkwartier, op korte afstand van scholen, kinderopvang, een supermarkt en een gezondheidscentrum. Binnen circa 5 minuten fiets je naar het bruisende stadscentrum of het NS-station van Woerden. En dankzij de uitstekende verbindingen naar de Randstad ben je ook met de auto snel onderweg naar Utrecht, Den Haag of Gouda. Een perfecte plek om comfortabel te wonen, te werken en te genieten van alles wat Woerden te bieden heeft.

Woerden
Woerden is een stad met een rijke historie, centraal gelegen in het Groene Hart. Je vindt hier de gezelligheid van een volwaardige stad, gecombineerd met de rust en ruimte van een groene omgeving.

Het vernieuwde stadscentrum biedt een gevarieerd winkelaanbod, horecagelegenheden en terrassen. In het historische hart zijn diverse culturele en monumentale elementen bewaard gebleven, wat zorgt voor een sfeervolle uitstraling. Een fijne plek om te wonen, werken en ontspannen.

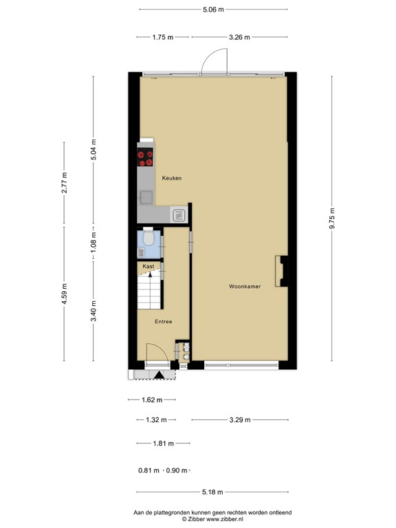
Entree
Je parkeert je auto op een van de openbare parkeerplaatsen in de straat en loopt via de voortuin (gelegen op het zuiden) naar de voordeur. In de hal tref je de trapopgang, trapkast, meterkast, een modern toilet met fontein en toegang tot de woonkamer.

Woonkamer & keuken
De woonkamer en keuken vormen samen een open en lichte leefruimte. Aan de voorzijde creëer je eenvoudig een comfortabele zithoek, waar je heerlijk bij de open haard zit met uitzicht op de voortuin. De open haard vormt het sfeervolle middelpunt van de ruimte. De woonkamer is afgewerkt met een warme houten vloer, wat bijdraagt aan de gezellige en uitnodigende sfeer. Inbouwspots zorgen voor een extra prettige ambiance.

Aan de achterzijde is de woning in 2021 uitgebouwd met een royale serre voorzien van een vierseizoenenpui met harmonicadeuren en dakramen. De serre is afgewerkt met een strakke linoleum vloer, waardoor het een moderne, onderhoudsvriendelijke ruimte is die perfect geschikt is als eetkamer of extra zithoek. Dankzij de volledig open te schuiven deuren in de pui ontstaat er een naadloze verbinding tussen binnen en buiten, ideaal voor zonnige dagen.

De keuken is in een praktische L-opstelling in de hoek geplaatst, waardoor deze vanuit de zithoek grotendeels uit het zicht blijft. Dankzij de uitbouw voelt het als een ruime woonkeuken. De keuken is strak afgewerkt en voorzien van diverse Bosch inbouwapparatuur, waaronder een inductiekookplaat, afzuigkap, koelkast, vaatwasser en combimagnetron. Uiteraard is er volop kastruimte aanwezig.

De serre, het toilet en de badkamer zijn voorzien van vloerverwarming. Daarnaast zijn er speciale lagetemperatuurradiatoren geplaatst, passend bij het energiezuinige karakter van de woning.

Eerste verdieping
Via de vaste trap kom je op de overloop met toegang tot drie slaapkamers en de badkamer.

De masterbedroom ligt aan de achterzijde en is voorzien van een vaste inbouwkast en inbouwspots en andere sfeervolle details. Naast deze kamer bevindt zich een tweede slaapkamer, eveneens met uitzicht op de achtertuin.

Aan de voorzijde ligt de derde slaapkamer, naast de badkamer.

De volledig betegelde badkamer is modern afgewerkt en beschikt over een raam voor daglicht en natuurlijke ventilatie. Verder vind je hier een douche, wastafelmeubel met spiegelkast, designradiator, inbouwspots én vloerverwarming.

Tweede verdieping
Via de vaste trap bereik je de zolderverdieping. Direct naast de trap bevinden zich de aansluitingen voor wasmachine en droger en de opstelplaats van de cv-ketel.

Aan de achterzijde is een ruime dakkapel geplaatst met HR++ glas, wat zorgt voor extra ruimte en veel natuurlijk licht. Momenteel is deze verdieping ingericht als werkkamer, maar je kunt hier ook prima een slaapkamer realiseren. In de dakkapel zijn drie ramen geplaatst en er is praktische bergruimte achter de knieschotten aanwezig. Ook hier zorgen inbouwspots voor een nette afwerking.

Tuin
De voortuin op het zuiden biedt een heerlijke plek om in de zon te zitten met een kop koffie.

De woningbrede achtertuin ligt op het noordwesten, waardoor je in de middag en avond optimaal van de zon geniet. Direct achter de serre ligt een gazon met daarnaast een plantenborder. Achterin is de tuin grotendeels betegeld en vind je een fijne zithoek onder de overkapping, ideaal om zowel in de zon als in de schaduw te ontspannen of bij de sfeervolle buitenhaard.

De berging bevindt zich achterin de tuin en via de extra brede poort achterom is de tuin ook praktisch bereikbaar. Doordat de vierseizoenenpui volledig geopend kan worden, loopt de eetkamer naadloos over in de tuin. Je haalt hier echt buiten naar binnen en andersom.

Bijzonderheden
•	Energielabel A
•	8 zonnepanelen
•	Gevel-, vloer- en dakisolatie
•	Gehele woning voorzien van isolerende beglazing
•	Twee dakkapellen aan de achterzijde en een dakkapel aan de voorzijde
•	Serre met harmonicawand aangebouwd in 2021
•	Vloerverwarming in serre, toilet en badkamer
•	Speciale lagetemperatuurradiatoren
•	De tweede verdieping is aangemerkt als 11 m² overige inpandige ruimte, aangezien de stahoogte minder dan 2 meter bedraagt
•	Momenteel vinden er werkzaamheden plaats in de straat, omdat deze wordt ingericht als eenrichtingsverkeer
•	Gunstig gelegen nabij centrum, scholen, winkels en NS-station van Woerden

DISCLAIMER
Voor onze koopakte gelden de standaard NVM-regels. In alle overeenkomsten bedraagt de waarborgsom/bankgarantie 10% van de koopsom en deze wordt voldaan aan de notaris.

Deze projectinformatie mag niet worden beschouwd als een aanbieding of offerte en wordt verstrekt onder voorbehoud van goedkeuring door verkoper. Wij kunnen geen aansprakelijkheid aanvaarden voor de door ons samengestelde gegevens. Deze informatie, eventuele gesprekken, onderhandelingen etc. zijn alle vrijblijvend. Er is pas overeenstemming bereikt op het moment dat de door Rien Treur Makelaardij opgestelde koopovereenkomst door beide partijen is beoordeeld en ondertekend. Tot dat moment hebben partijen het recht om af te zien van een transactie, zonder kostenvergoeding etc. Alle genoemde maten zijn indicatief, er kunnen geen rechten aan worden ontleend.

Kenmerken