Beschrijving

Een fijne gezinswoning met potentie op een rustige locatie.

In de ruim opgezette en kindvriendelijke wijk Molenvliet-West staat deze tussenwoning aan de Schouw. Een prettige woonomgeving met veel groen, speeltuintjes en voldoende parkeergelegenheid, ook parkeren op eigen terrein behoort tot de mogelijkheden. De woning staat leeg en verdient enige aandacht, maar juist dat biedt de kans om het huis volledig naar eigen wens te moderniseren en er een fijn thuis van te maken.

De woning beschikt over een tuingerichte woonkamer met open keuken, drie ruime slaapkamers, een badkamer en een tweede verdieping met dakkapel aan de achterzijde. Daarnaast heeft u de beschikking over een eigen oprit, twee aangebouwde bergingen en een onderhoudsvriendelijke achtertuin op het zuiden. Een ideale woning voor wie op zoek is naar ruimte, rust én de mogelijkheid om het helemaal naar eigen smaak te maken.

Ligging en omgeving
De woning is gunstig gelegen in de wijk Molenvliet-West, op korte afstand van winkelcentrum Molenvliet voor de dagelijkse boodschappen. Ook het park in Molenvliet, diverse basisscholen, sportvoorzieningen en speeltuinen bevinden zich in de directe omgeving. Binnen enkele minuten fietsen bereikt u het gezellige centrum van Woerden met zijn winkels, horeca en het station. Daarnaast zijn er goede busverbindingen en is de A12 richting Utrecht, Rotterdam en Den Haag snel bereikbaar. Een ideale ligging voor wie rust wil combineren met gemak en bereikbaarheid.

Entree
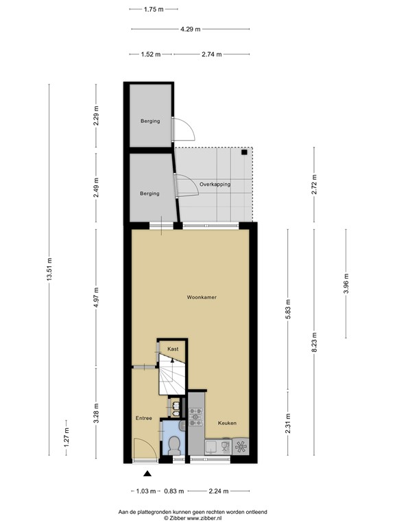
U rijdt de ruim opgezette Schouw in en parkeert uw auto op de eigen oprit in de voortuin of op een van de openbare parkeerplaatsen. Via het pad loopt u naar de voordeur, waar u de woning binnenkomt in de hal. Hier vindt u het toilet met fontein, de meterkast, de trapopgang naar de verdieping en de toegang tot de woonkamer.

Woonkamer en keuken
De tuingerichte woonkamer bevindt zich aan de achterzijde van de woning en biedt, dankzij het grote raam, een prettig uitzicht op de achtertuin. Er is voldoende ruimte voor een comfortabele zithoek en een eethoek in verbinding met de open keuken. Praktisch is ook de trapkast die extra bergruimte biedt. Vanuit de woonkamer is de aangebouwde berging bereikbaar, van waaruit u direct de achtertuin inloopt.

De open keuken aan de voorzijde van de woning kijkt uit op de voortuin en de straat. Deze is geplaatst in een L-opstelling en voorzien van diverse apparatuur en kastruimte. De keuken is eenvoudig uitgevoerd, maar biedt een mooie basis om naar eigen wens te moderniseren.

Verdieping
Via de trap in de hal bereikt u de overloop van de eerste verdieping. Hier bevinden zich twee ruime slaapkamers en de badkamer. Een van de slaapkamers ligt over de volle breedte aan de achterzijde van de woning, terwijl de andere slaapkamer aan de voorzijde is gesitueerd. 

De volledig betegelde badkamer aan de voorzijde is voorzien van een douche, wastafel en toilet.

Tweede verdieping
Een vaste trap leidt naar de tweede verdieping met overloop, waar de cv-installatie en de aansluiting voor de wasmachine zijn geplaatst. Achter de knieschotten vindt u extra bergruimte. Vanaf de overloop is de derde slaapkamer bereikbaar, een verrassend ruime kamer met zowel een dakkapel als een dakraam. Ook hier is bergruimte achter de knieschotten aanwezig.

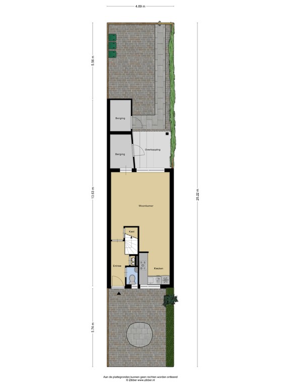
Tuin
De voortuin, gelegen op het noorden, is volledig bestraat en biedt ruimte om de auto te parkeren. De erfafscheiding bestaat aan de rechterzijde uit een groene haag en aan de linkerzijde uit een lage schutting.

De achtertuin, gelegen op het zuiden, is eveneens geheel betegeld en bereikbaar via de berging en een achterom. Dankzij de overkapping aan de achtergevel kunt u hier ook op zonnige dagen heerlijk in de schaduw zitten. De aangebouwde houten berging biedt extra opbergruimte voor bijvoorbeeld fietsen of tuingereedschap.

Bijzonderheden
•	Woning dient gemoderniseerd te worden
•	Voorzien van drie ruime slaapkamers
•	Tuin met dubbele berging en achterom
•	Mogelijkheid tot het plaatsen van een dakkapel aan de voorzijde (vergunningsplichtig)
•	Goede parkeermogelijkheden in de buurt en op eigen terrein
•	Vrijwel alle dagelijkse voorzieningen in de directe omgeving aanwezig
•	Gelegen op korte afstand van winkelcentrum Molenvliet

Laat je verrassen door de mogelijkheden van deze woning. Een ideale plek voor wie rustig wil wonen met alles binnen handbereik!

DISCLAIMER
Voor onze koopakte gelden de standaard NVM-regels. In alle overeenkomsten bedraagt de waarborgsom/bankgarantie 10% van de koopsom en deze wordt voldaan aan de notaris.

Deze projectinformatie mag niet worden beschouwd als een aanbieding of offerte en wordt verstrekt onder voorbehoud van goedkeuring door verkoper. Wij kunnen geen aansprakelijkheid aanvaarden voor de door ons samengestelde gegevens. Deze informatie, eventuele gesprekken, onderhandelingen etc. zijn alle vrijblijvend. Er is pas overeenstemming bereikt op het moment dat de door Rien Treur Makelaardij opgestelde koopovereenkomst door beide partijen is beoordeeld en ondertekend. Tot dat moment hebben partijen het recht om af te zien van een transactie, zonder kostenvergoeding etc. Alle genoemde maten zijn indicatief, er kunnen geen rechten aan worden ontleend.

Kenmerken