Beschrijving

Karaktervol wonen in een voormalig pakhuis midden in het centrum van Woerden

Midden in het levendige centrum van Woerden, tussen winkels, cafés en restaurants, ligt deze unieke gemeentelijke monumentale eindwoning. Het huis is een voormalig pakhuis, prachtig omgebouwd tot sfeervolle woning, en grenst aan de Romeinsteeg die een directe verbinding biedt naar de Rijnstraat en de Voorstraat, zodat je overal in het centrum snel te voet bent. 

Het huis is volledig instapklaar: de keuken en badkamer zijn in 2025 vernieuwd en nog niet gebruikt, de vloeren zijn vervangen door een stijlvolle houtlook PVC vloer en alle wanden zijn strak gestuct en gesaust.

De woning is praktisch ingedeeld en beschikt over een lichte woonkamer met open keuken, een slaapkamer, een moderne badkamer en een separaat toilet. Dankzij de slimme indeling en de grote ramen voelt het verrassend ruim en licht aan, een ideaal plekje om zo in te trekken.

Binnen de centrumring van Woerden geldt betaald parkeren op de openbare parkeerplaatsen en in de parkeergarages. Als bewoner kun je bij de gemeente een parkeervergunning aanvragen, zodat je in de vergunningzone op straat kunt parkeren. Voor je fiets is er direct naast de woning een algemene plek om deze te stallen.

De ligging is ideaal: alles wat u nodig heeft bevindt zich op loopafstand. Denk aan supermarkten, boetiekjes, restaurants, terrassen en overige voorzieningen. Ook het NS-station van Woerden is goed bereikbaar en via de nabijgelegen uitvalswegen, waaronder de A12, bent u snel onderweg richting Utrecht, Den Haag of Rotterdam.

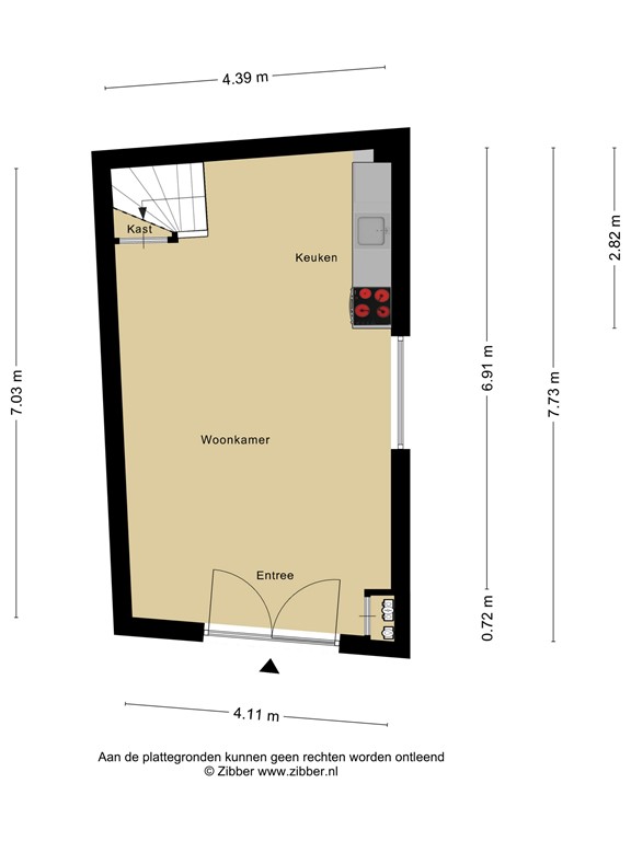
Entree
Je komt binnen via de openslaande deuren aan de voorzijde van de woning. Direct aan de rechterkant vind je de meterkast en voor je ligt de gezellige woonkamer. Hier voel je meteen de sfeer van dit karakteristieke huis.

Woonkamer & keuken
De woonkamer is licht en ruim genoeg om een eettafel en een comfortabele zithoek te plaatsen. In de hoek vind je de rechte keuken, volledig vernieuwd in 2025 en nog niet gebruikt. De keuken is voorzien van een 4-pits gaskookplaat, afzuigkap, oven, koelkast, vriezer, vaatwasser en voldoende kastruimte. Onder de trap is een praktische trapkast, en dankzij de ramen in de zijgevel en de openslaande deuren geniet je van veel natuurlijk daglicht.

Verdieping
Via de vaste trap in de keuken kom je op de overloop van de eerste verdieping. Hier heb je toegang tot de slaapkamer, het toilet en de badkamer. Boven de badkamer bevindt zich een kleine vliering.

De slaapkamer ligt aan de voorzijde en heeft twee grote dakramen, wat zorgt voor veel licht. Aan de kopzijde is een Frans balkon gecreëerd. De zichtbare houten balken geven de kamer karakter en een ruimtelijk gevoel.

De badkamer ligt aan de achterzijde en is voorzien van een rond raam, een douche, wastafelmeubel met wastafel, designradiator en een aansluiting voor je wasmachine. Ook de badkamer is in 2025 vernieuwd en nog niet gebruikt.

Boven de trap vind je een luik met de opstelling van de cv-ketel.

Bijzonderheden 
•	Unieke ligging midden in het stadscentrum van Woerden
•	Karakteristieke eindwoning
•	Keuken en badkamer vernieuwd in 2025 (nog niet gebruikt)
•	Nieuwe houtlook PVC vloeren
•	Alle wanden strak gestuct en gesaust
•	Volledig instapklaar
•	Nabij diverse voorzieningen

DISCLAIMER
Voor onze koopakte gelden de standaard NVM-regels. In alle overeenkomsten bedraagt de waarborgsom/bankgarantie 10% van de koopsom en deze wordt voldaan aan de notaris.

Deze projectinformatie mag niet worden beschouwd als een aanbieding of offerte en wordt verstrekt onder voorbehoud van goedkeuring door verkoper. Wij kunnen geen aansprakelijkheid aanvaarden voor de door ons samengestelde gegevens. Deze informatie, eventuele gesprekken, onderhandelingen etc. zijn alle vrijblijvend. Er is pas overeenstemming bereikt op het moment dat de door Rien Treur Makelaardij opgestelde koopovereenkomst door beide partijen is beoordeeld en ondertekend. Tot dat moment hebben partijen het recht om af te zien van een transactie, zonder kostenvergoeding etc. Alle genoemde maten zijn indicatief, er kunnen geen rechten aan worden ontleend.

Kenmerken