| Prijs | € 675.000,- k.k. |
| Type object | Eengezinswoning, woonhuis, tussenwoning |
| Perceeloppervlakte | 83 m² |
| Woonoppervlakte | 133 m² |
| Aanvaarding | In overleg |
| Status | Nieuw in verkoop |
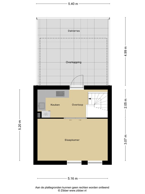
Instapklare moderne grachtenwoning met uitzicht op de natuurplas in Waterrijk! In de woonwijk Waterrijk ligt deze moderne, instapklare grachtenwoning. De woning is volledig afgewerkt en biedt direct een comfortabel thuisgevoel. Op de begane grond vindt u een ruime en luxe open keuken die naadloos overgaat in de woonkamer, een ideale plek voor koken, ontspannen en samen zijn. Op de eerste verdieping zijn twee ruime slaapkamers, waarvan één is voorzien van een praktische walk-in closet, en een moderne badkamer. Via een vaste trap bereikt u de tweede verdieping, waar de ruime masterbedroom is gesitueerd, compleet met een eigen keukenvoorziening en toegang tot een groot, deels overdekt dakterras, een perfecte plek om te ontspannen en van het buitenleven te genieten. De zonnige achtertuin ligt op het zuidwesten en biedt toegang tot een berging en een eigen overdekte parkeerplaats in de achtergelegen parkeergarage. Bovenop de parkeergarage vindt u een afgesloten speelplaats en diverse grote terrassen voor gezamenlijk gebruik. De wijk Waterrijk is kindvriendelijk en ingericht met diverse eilanden, speelgelegenheden en waterpartijen, die zich perfect lenen om met een bootje of kano de omgeving te verkennen. Scholen, winkels, sportfaciliteiten en kinderopvang liggen allemaal op loop- of fietsafstand. Wandelboulevards, wijkhoreca en een veilige, groene omgeving maken het wonen hier compleet. Binnen 20 minuten bent u in Utrecht, en binnen 40 minuten bereikt u Rotterdam, Den Haag, Leiden of Amsterdam. Ook de binnenstad van Woerden, met een gevarieerd aanbod aan restaurants en winkels, is snel bereikbaar. De woning is duurzaam en goed geïsoleerd ontwikkeld. Verwarming en koeling lopen via een warmtepomp (warmte- en koudeopslag), waardoor iedere kamer, ook op de verdiepingen, van vloerverwarming is voorzien. Radiatoren zijn daardoor overbodig en het comfort is hoog: u kunt per kamer de temperatuur regelen, met verwarming in de winter en koeling in de zomer. Er is geen gasaansluiting aanwezig en er is geen eigen cv-ketel nodig, wat bijdraagt aan een energiezuinig en comfortabel woonklimaat. Kortom: een instapklare, moderne grachtenwoning waar u direct kunt gaan wonen, met luxe, comfort en duurzaamheid gecombineerd met een zonnige tuin, eigen parkeerplaats, dakterras en gezamenlijke voorzieningen in een levendige, kindvriendelijke woonomgeving. Entree Uw auto parkeert u op uw eigen overdekte parkeerplaats in de achtergelegen parkeergarage of desgewenst op een van de openbare parkeerplaatsen in de buurt. Via een trapje met twee treden betreedt u de woning en komt u binnen in een ruime, lichte hal. Deze is voorzien van een garderobe en meterkast en geeft toegang tot het toilet met fontein. De hal opent naar de moderne, open keuken – het warme hart van het huis – via een stijlvolle houten scharnierdeur met glas, afgewerkt met de strakke, zwarte uitstraling van staal. Keuken & woonkamer De moderne keuken combineert stijl met functionaliteit en biedt uitzonderlijk veel kast- en laderuimte. De ruimte is uitgerust met een royale mengkraan en spoelbak, een koel-vriescombinatie, vaatwasmachine, oven-magnetron en stoomoven. Het schiereiland met bar vormt het hart van de keuken en verbindt de ruimte op een natuurlijke manier met de woonkamer. Het beschikt over een inductiekookplaat met glazen spatblad en een recirculerende ingebouwde afzuiginstallatie. Bovendien is de keuken sfeervol ingericht, heeft ze uitzicht op de voorzijde en zorgen twee grote ramen voor een fijne natuurlijke lichtinval. Kortom: een eigentijdse, complete leefkeuken met alle comfort en apparatuur die u zich kunt wensen. De ruime, tuingerichte en uitgebouwde woonkamer voelt direct uitnodigend aan en biedt volop mogelijkheden voor een comfortabele zithoek en een sfeervolle eettafel. Dankzij de grote raampartijen aan de achterzijde valt er royaal daglicht naar binnen. Via zowel een loopdeur als een aparte schuifpui heeft u toegang tot de achtertuin, waardoor binnen en buiten op natuurlijke wijze in elkaar overlopen. De woonkamer en keuken zijn volledig voorzien van een hoogwaardige PVC-vloer met vloerverwarming, wat zorgt voor een warm en uniform geheel. Tussen het woongedeelte en de open keuken bevindt zich een bergkast. Daarnaast is via een stijlvolle tweede scharnierdeur de trap naar de verdieping bereikbaar. Eerste verdieping Via de vaste trap met sfeervolle tredeverlichting bereikt u de ruime overloop, die toegang biedt tot een slaapkamer aan de voorzijde, de badkamer, de wasruimte met opstelling van de warmtebron en de mechanische afzuiging en de walk-in-closet. Vanuit de walk-in-closet is tevens de royale tweede slaapkamer aan de achterzijde bereikbaar. In de walk-in-closet zelf bevindt zich bovendien een bergkast. Deze indeling is mogelijk gemaakt door de uitbouw aan de achterzijde, maar het is eenvoudig weer één grote slaapkamer te creëren of desgewenst twee afzonderlijke slaapkamers. De luxe badkamer ligt aan de voorzijde en is uitgerust met een inloopdouche, een stijlvol wastafelmeubel en een tweede toilet. De slaapkamer aan de voorzijde grenst aan de badkamer, terwijl de achterste slaapkamer zich over de volledige breedte van de woning uitstrekt. Tweede verdieping Via de vaste trap bereikt u de overloop van de tweede verdieping. Hier vindt u een praktisch keukenblok, voorzien van afzuigkap, inductiekookplaat, grillplaat en een spoelbak met warm en koud water, gevoed door een elektrische boiler. Vanaf de overloop heeft u via stijlvolle houten schuifdeuren met glas toegang tot de ruime masterbedroom met uitzicht op de natuurplas. Aan de achterzijde bevindt zich het royale, deels overdekte dakterras. Dit heerlijke buitenverblijf biedt volop ruimte om te ontspannen in de zon of de schaduw en te genieten van een drankje of hapje, een ideale plek om helemaal tot rust te komen. Tuin De achtertuin ligt op het zonnige zuidwesten en is volledig bestraat, aan de achterzijde gesloten door een afsluitbaar hekwerk met een deur naar de brandgang, die tevens als achterom dient. Er is ruimte om een zitje te plaatsen en heerlijk van de zon te genieten. Vanuit de tuin heeft u bovendien toegang tot de half overdekte parkeergarage, de gezamenlijke terrassen en de speelplaats, waardoor de tuin zowel privacy als gemak biedt. Parkeerplaats en speelplaats Deze woning heeft een eigen parkeerplaats in de afgesloten parkeergarage achter de woningen. Door het ontwerp met een halfverdiepte garage staan de auto's uit het zicht. Daarboven zijn verschillende grote terrassen gecreëerd voor gezamenlijk gebruik. Op de overkapte delen van de garage zijn speelplekken voor de kinderen gerealiseerd. Voor het onderhoud, verzekeringen en elektraverbruik van de parkeergarage worden servicekosten betaald. Bijzonderheden • Bouwjaar 2009 • Gasloos, voorzien van 9 zonnepanelen • Energielabel A, geldig tot 31 augustus 2030 • Geheel voorzien van vloerverwarming en -koeling • Gehele woning voorzien van PVC-vloer, met uitzondering van badkamer, trapkast en toilet • Ruime en luxe open keuken op de begane grond • Extra keukenvoorziening op de tweede verdieping bij het dakterras • Groot, deels overdekt dakterras • Overdekte parkeerplaats in de achtergelegen parkeergarage (servicekosten €60 per kwartaal) • Aangesloten op glasvezelnet • Heerlijke, zonnige tuin op het zuidwesten • Recreatieplas om de hoek met mogelijkheden tot wandelen, zwemmen, surfen en vissen DISCLAIMER Voor onze koopakte gelden de standaard NVM-regels. In alle overeenkomsten bedraagt de waarborgsom/bankgarantie 10% van de koopsom en deze wordt voldaan aan de notaris. Deze projectinformatie mag niet worden beschouwd als een aanbieding of offerte en wordt verstrekt onder voorbehoud van goedkeuring door verkoper. Wij kunnen geen aansprakelijkheid aanvaarden voor de door ons samengestelde gegevens. Deze informatie, eventuele gesprekken, onderhandelingen etc. zijn alle vrijblijvend. Er is pas overeenstemming bereikt op het moment dat de door Rien Treur Makelaardij opgestelde koopovereenkomst door beide partijen is beoordeeld en ondertekend. Tot dat moment hebben partijen het recht om af te zien van een transactie, zonder kostenvergoeding etc. Alle genoemde maten zijn indicatief, er kunnen geen rechten aan worden ontleend.
| Vraagprijs | € 675.000,- k.k. |
| Status | Nieuw in verkoop |
| Aanvaarding | In overleg |
| Aangeboden sinds | Woensdag 26 november 2025 |
| Type object | Eengezinswoning, woonhuis, tussenwoning |
| Soort bouw | Bestaande bouw |
| Bouwjaar | 2009 |
| Dakbedekking | Bitumen |
| Type dak | Platdak |
| Isolatievormen | Dakisolatie Dubbel glas Muurisolatie Vloerisolatie Volledig geïsoleerd |
| Perceeloppervlakte | 83 m² |
| Woonoppervlakte | 133 m² |
| Woonkameroppervlakte | 33 m² |
| Inhoud | 471 m³ |
| Oppervlakte externe bergruimte | 5 m² |
| Oppervlakte gebouwgebonden buitenruimte | 27 m² |
| Tuinoppervlakte | 49 m² |
| Aantal bouwlagen | 3 |
| Aantal kamers | 5 (waarvan 3 slaapkamers) |
| Ligging | Aan rustige weg Beschutte ligging In woonwijk Open ligging |
| Type | Achtertuin |
| Hoofdtuin | Ja |
| Oriëntering | Zuid-west |
| Heeft een achterom | Ja |
| Staat | Normaal |
| Tuin 2 - Type | Achtertuin |
| Tuin 2 - Staat | Normaal |
| Tuin 3 - Type | Zonneterras |
| Tuin 3 - Staat | Normaal |
| Energielabel | A |
| Aantal parkeerplaatsen | 1 |
| Warm water | Centrale voorziening Elektrische boiler |
| Verwarmingssysteem | Blokverwarming Vloerverwarming |
| Badkamervoorzieningen | Douche Toilet Wastafel |
| Glasvezelaansluiting aanwezig | Ja |
| Tuin aanwezig | Ja |
| Heeft schuur/berging | Ja |
| Heeft een schuifpui | Ja |
| Heeft zonwering | Ja |
| Heeft zonnecollectoren | Ja |
| Heeft ventilatie | Ja |
| Kadastrale aanduiding | Woerden A 7392 |
| Perceeloppervlakte | 83 m² |
| Omvang | Geheel perceel |
| Eigendomsituatie | Eigen grond |