Beschrijving

Vrijstaande woning met ruime tuin, eigen oprit en grote garage in Waarder.

Op zoek naar een ruime vrijstaande woning met volop mogelijkheden, een royale tuin en een grote garage? Dan is deze woning in Waarder zeker een bezichtiging waard. De woning beschikt over meerdere leefruimtes, een kelder die is ingericht als bruincafé, een gesloten keuken, vier slaapkamers, een badkamer en een tuin aan de voor- zij- en achterzijde van de woning. Dankzij de combinatie van ruimte, lichtinval en de praktische indeling is dit een heerlijke gezinswoning met tal van mogelijkheden. Daarbij zijn de parkeervoorzieningen uitstekend: u kunt parkeren op de eigen lange oprit, in de garage of op de openbare parkeerplaatsen in de directe omgeving.

De woning is gelegen in het landelijke dorp Waarder, waar u kunt genieten van rust en groen, maar toch alle voorzieningen binnen handbereik hebt. Het dorp beschikt over een basisschool, sportvoorzieningen, een dorpshuis en de eerste volledig groene Plus supermarkt, tank en oplaadstation. Voor uitgebreide voorzieningen bent u binnen enkele minuten in Bodegraven of Woerden. De centrale ligging is bovendien ideaal: via de A12 bent u binnen korte tijd in Utrecht, Gouda of Den Haag, en met het openbaar vervoer zijn omliggende dorpen en steden eveneens goed bereikbaar.

Entree
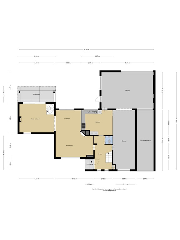
De woning is zowel via de voor- als de achterzijde bereikbaar. Komt u via de voorzijde, dan parkeert u uw auto aan de openbare weg en loopt u door de fraai aangelegde voortuin naar de voordeur. Hier betreedt u de ruime hal, die is voorzien van een meterkast, een toilet met fontein en de trapopgang. Vanuit de hal heeft u toegang tot de woonkamer, de gesloten keuken en de geïsoleerde garage.

Kiest u voor de achterzijde, dan rijdt u vanaf de Prins Bernhardstraat de eigen lange oprit op. Hier is voldoende ruimte om meerdere auto’s te parkeren. Daarnaast kunt u uw auto kwijt in de garage, waar zelfs plek is voor meerdere voertuigen. Vanuit de garage heeft u bovendien direct toegang tot de woning, zowel via de keuken als via de hal.

Woonkamer 
De woonkamer is royaal opgezet en biedt plaats aan zowel een gezellige zithoek als een ruime eethoek. Grote raampartijen aan de voor- en achterzijde zorgen voor veel natuurlijk daglicht en geven prachtig uitzicht op zowel de voor- als achtertuin. Een sfeervolle open haard vormt het warme middelpunt van de ruimte. De vloer is afgewerkt met parket, wat de kamer een warme uitstraling geeft.

Aan de woonkamer grenst een tweede woonruimte, die met en-suite deuren van elkaar te scheiden zijn. Hierdoor kunt u eenvoudig kiezen voor een open of juist meer besloten indeling. Deze ruimte is multifunctioneel inzetbaar, bijvoorbeeld als tweede woonruimte, televisiekamer, speelkamer of werkruimte. Hier is een schuifpui, die toegang biedt tot de achtertuin met overkapping. De ruimte is verder voorzien van een open haard en een sfeervol glas-in-loodraam aan de voorzijde. De vloer is afgewerkt met sfeervolle grote tegels.

Via een spiltrap in de hoek van de tweede woonruimte bereikt u de kelder, die volledig is ingericht als gezellig bruincafé en wijnkelder. Met een bar met geluids-/muziekinstallatie, ramen en een plavuizenvloer is dit de ideale plek voor een borrel of feestavond.
Keuken

De gesloten keuken is ruim opgezet in een praktische L-opstelling en uitgerust met diverse inbouwapparatuur, waaronder een gasfornuis, oven, afzuigkap, koelkast, vriezer en vaatwasser. De keuken beschikt over een karakteristieke vloer in visgraatverband, die zowel stijlvol als onderhoudsvriendelijk is. Er is voldoende ruimte voor een eettafel en dankzij het grote raam geniet u hier van veel licht en een fijn uitzicht op de tuin. Vanuit de keuken is er bovendien toegang tot de garage.

Garages
De garage is bereikbaar vanuit de keuken en vanuit de achtertuin via een loopdeur en een overheaddeur. Vanuit de garage bereikt u de overkapte aangebouwde berging en de tweede garage. Deze tweede garage is voorheen in gebruik geweest als kantoor en biedt toegang tot de hal. Beide garages zijn volledig geïsoleerd, waardoor ze zich uitstekend lenen om omgebouwd te worden voor gebruik als kantoor, hobbyruimte of zelfs extra woonruimte.

Verdieping
Via de vaste trap bereikt u de overloop met vide, die toegang biedt tot vier slaapkamers, de badkamer en de wasruimte. In de wasruimte bevinden zich de aansluitingen voor wasmachine en droger en de opstelplaats van de verwarmingsinstallatie. Vanuit hier is ook de bergzolder bereikbaar via een vlizotrap. Daarnaast heeft u vanuit een van de slaapkamers eveneens toegang tot de bergzolder.

Aan de rechterzijde van de woning bevinden zich twee ongeveer even grote slaapkamers. In het midden, aan de achterzijde, is een dakkapel geplaatst, waardoor een derde slaapkamer en de badkamer zijn gerealiseerd. De dakkapel zorgt bovendien voor extra licht en ruimte.

De vierde slaapkamer beslaat de gehele linkerzijde van de woning en is bijzonder ruim. Vanuit deze kamer bereikt u via een schuifpui het balkon, waar u geniet van uitzicht op de zijtuin.

De badkamer is uitgerust met een ligbad met douche, een dubbele wastafel met meubel en een toilet.

Tuin
De voortuin ligt op het oosten en is strak en verzorgd aangelegd. Een hoge groene heg zorgt voor privacy en vormt een natuurlijke afscheiding. Via een opening in de heg bereikt u de tuin, die is ingericht met een grindgedeelte, een gazon en betegeling rondom de woning. 

De achtertuin ligt op het westen en biedt veel privacy dankzij de omlijsting van hagen, struiken en bomen. De tuin is grotendeels bestraat en beschikt over een overkapping met verhoogd terras. Hier kunt u heerlijk buiten zitten en zowel van de zon als van de schaduw genieten. 

Daarnaast zijn er volop mogelijkheden om meerdere zitplekken te creëren. Via de oprit aan de achterzijde bereikt u de Prins Bernhardstraat.

Bijzonderheden
•	Vrijstaande woning met royale tuin rondom
•	Toegang via de voorzijde (voetpad) en via de achterzijde met eigen oprit
•	Lange oprit met parkeergelegenheid voor meerdere auto’s
•	Dubbele garage, volledig geïsoleerd en geschikt te maken voor diverse doeleinden (bijv. kantoor of praktijkruimte)
•	Gezellige kelder, ingericht als bruincafé met bar
•	Vier slaapkamers, waarvan één met balkon
•	Dakkapel aan de achterzijde, voor extra licht en ruimte
•	En-suite deuren tussen woonkamer en tweede woonruimte
•	Meerdere schuifpuien naar de tuin en balkon
•	Sfeervolle open haard in woonkamer en tweede woonruimte 
•	Tuin met veel privacy, overkapping en diverse zitmogelijkheden
•	Centraal gelegen ten opzichte van de A12 en openbaar vervoer

DISCLAIMER
Voor onze koopakte gelden de standaard NVM-regels. In alle overeenkomsten bedraagt de waarborgsom/bankgarantie 10% van de koopsom en deze wordt voldaan aan de notaris.

Deze projectinformatie mag niet worden beschouwd als een aanbieding of offerte en wordt verstrekt onder voorbehoud van goedkeuring door verkoper. Wij kunnen geen aansprakelijkheid aanvaarden voor de door ons samengestelde gegevens. Deze informatie, eventuele gesprekken, onderhandelingen etc. zijn alle vrijblijvend. Er is pas overeenstemming bereikt op het moment dat de door Rien Treur Makelaardij opgestelde koopovereenkomst door beide partijen is beoordeeld en ondertekend. Tot dat moment hebben partijen het recht om af te zien van een transactie, zonder kostenvergoeding etc. Alle genoemde maten zijn indicatief, er kunnen geen rechten aan worden ontleend.

Kenmerken