Beschrijving

Instapklare, energiezuinige gezinswoning in het groene hart.

Welkom aan de Hoefsmid 3 in Nieuwerbrug aan den Rijn, een moderne en energiezuinige tussenwoning uit 2023, waar comfort en duurzaamheid hand in hand gaan. Deze woning is volledig voorzien van vloerverwarming én -koeling, wordt verwarmd met een aardwarmtepomp en heeft een gebalanceerd ventilatiesysteem.

Binnen geniet u van een lichte, woningbrede woonkamer met schuifpui naar de zonnige tuin op het westen. De moderne open keuken is in 2023 geplaatst en van alle gemakken voorzien. Met maar liefst zes slaapkamers, twee volwaardige verdiepingen én een praktische berging is dit een ideale woning voor een (groeiend) gezin of voor wie graag ruim woont.

De ligging is bovendien uitstekend: in een rustige, kindvriendelijke wijk met parkeergelegenheid op eigen terrein en een vrij uitzicht over de achtergelegen watergang. Daarnaast zijn er in de directe omgeving voldoende openbare parkeerplaatsen beschikbaar, zodat ook uw gasten gemakkelijk kunnen parkeren.

De woning is gelegen in het landelijke Nieuwerbrug aan den Rijn, een charmant buurtschap tussen Bodegraven en Woerden. Ondanks de landelijke ligging zijn alle dagelijkse voorzieningen goed bereikbaar, zoals scholen, winkels en zorgfaciliteiten in de naburige dorpen en steden. De gezellige steden Woerden en Bodegraven liggen beide op circa 10 minuten rijden, terwijl de uitvalswegen naar Utrecht, Rotterdam, Den Haag en Leiden snel bereikbaar zijn. Ook het openbaar vervoer is nabij. Voor ontspanning en recreatie biedt de omgeving volop mogelijkheden: het dorp ligt midden in het Groene Hart, op fietsafstand van de Nieuwkoopse- en Reeuwijkse plassen, ideaal voor wandelen, fietsen of varen, en in de directe omgeving zijn diverse sport- en wandelverenigingen actief.

Kortom, een instapklare, moderne woning die helemaal klaar is voor de toekomst!

Entree
U parkeert uw auto op de oprit, vanwaar u via de voordeur of direct via de berging de woning kunt betreden. In de ruime hal vindt u het toilet met fontein, de meterkast, de technische ruimte met de warmte-unit en de trapopgang naar de verdieping. Vanuit de hal is er toegang tot de sfeervolle woon-/eetkamer én tot de berging, waar voldoende ruimte is om uw fietsen te stallen. De berging beschikt over openslaande deuren naar de oprit/voortuin, waar zich tevens het buffervat van de warmtepompinstallatie bevindt.

Woonkamer & keuken 
Aan de achterzijde van de woning bevindt zich de royale, woningbrede en tuingerichte woonkamer. Dankzij de grote schuifpui in de achtergevel geniet u van veel lichtinval en heeft u direct toegang tot de zonnige achtertuin. De woonkamer is ruim van opzet en biedt volop plaats voor zowel een comfortabele zithoek als een gezellige eethoek. Inbouwspots zorgen hier voor een warme en sfeervolle verlichting, waardoor het geheel een prettige en huiselijke uitstraling heeft.

De open keuken (2023) sluit naadloos aan op de woonkamer en is voorzien van moderne inbouwapparatuur, waaronder een inductiekookplaat met geïntegreerde afzuiging, een koelkast en een vaatwasser. De opstelling maakt het gemakkelijk om de eethoek dichtbij de keuken te plaatsen, wat het koken en tafelen extra gezellig maakt.

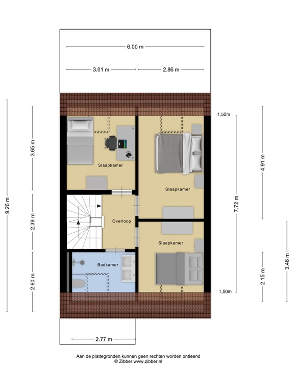
Eerste verdieping
Via de vaste trap bereikt u de overloop met toegang tot drie ruime slaapkamers en de badkamer. 

Eén slaapkamer bevindt zich aan de voorzijde van de woning, terwijl de andere twee aan de achterzijde liggen. Alle kamers zijn voorzien van een Velux dakraam, inbouwspots en een fraaie PVC-vloer met zowel vloerverwarming als -koeling, wat zorgt voor optimaal wooncomfort het hele jaar door. 

De modern uitgevoerde badkamer ligt aan de voorzijde en is uitgerust met een inloopdouche, een dubbel wastafelmeubel met bijpassende spiegel en een toilet. Ook hier zorgt een Velux dakraam voor aangenaam daglicht en natuurlijke ventilatie.

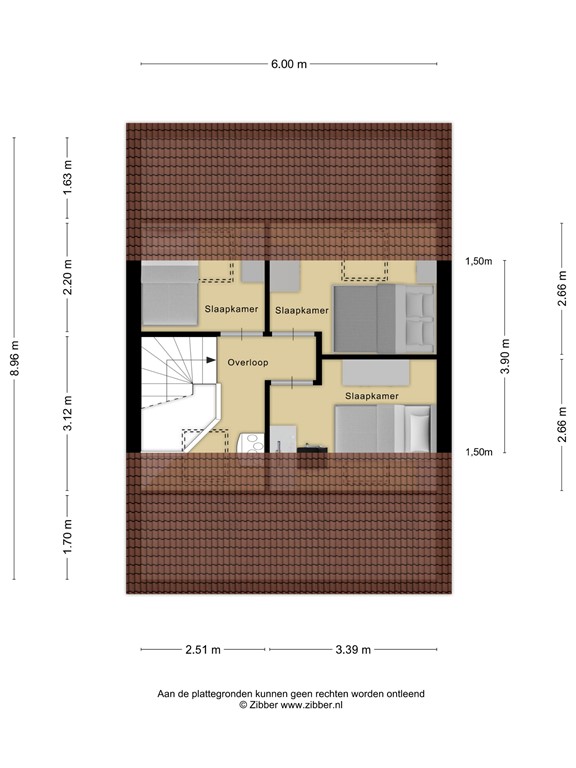
Tweede verdieping
Ook de tweede verdieping is via een vaste trap bereikbaar. Hier vindt u de opstelplaats van het WTW-systeem en drie (slaap)kamers, elk voorzien van een Velux-dakraam, inbouwspots en een PVC-vloer met vloerverwarming en -koeling. De kamers kunnen desgewenst eenvoudig worden samengevoegd tot één of twee royale slaapkamers, waardoor deze verdieping flexibel kan worden ingericht naar uw wensen.

Tuin
De voortuin is volledig betegeld en biedt ruimte om een auto op eigen terrein te parkeren. Voor de tuin ligt nog een groenstrook van de gemeente, wat zorgt voor een prettige en open uitstraling. De achtertuin ligt op het westen, is onderhoudsarm en volledig betegeld. U geniet hier van een vrij uitzicht over een watergang en bent eigenaar van het perceel tot aan de sloot. Enkel uw rechterburen hebben een recht van voetpad over het achtergelegen pad.

Bijzonderheden
•	Verwarming via een aardwarmtepomp
•	Gebalanceerd ventilatiesysteem
•	Alle verdiepingen voorzien van vloerverwarming én koeling
•	Woning in 2023 opgeleverd
•	Alle keukenapparatuur stamt uit 2023
•	Alle vloeren voorzien van eenzelfde PVC-afwerking
•	Parkeren op eigen terrein mogelijk
•	Voorzien van inpandige berging
•	Parkeren in de omgeving is ook goed mogelijk
•	Bij de koop is een niet-bewonersclausule van toepassing; de koper heeft de woning niet zelf bewoond

DISCLAIMER
Voor onze koopakte gelden de standaard NVM-regels. In alle overeenkomsten bedraagt de waarborgsom/bankgarantie 10% van de koopsom en deze wordt voldaan aan de notaris. 

Deze projectinformatie mag niet worden beschouwd als een aanbieding of offerte en wordt verstrekt onder voorbehoud van goedkeuring door verkoper. Wij kunnen geen aansprakelijkheid aanvaarden voor de door ons samengestelde gegevens. Deze informatie, eventuele gesprekken, onderhandelingen etc. zijn alle vrijblijvend. Er is pas overeenstemming bereikt op het moment dat de door Rien Treur Makelaardij opgestelde koopovereenkomst door beide partijen is beoordeeld en ondertekend. Tot dat moment hebben partijen het recht om af te zien van een transactie, zonder kostenvergoeding etc. Alle genoemde maten zijn indicatief, er kunnen geen rechten aan worden ontleend.

Kenmerken