| Prijs | € 775.000,- k.k. |
| Type object | Eengezinswoning, woonhuis, hoekwoning |
| Perceeloppervlakte | 229 m² |
| Woonoppervlakte | 143 m² |
| Aanvaarding | In overleg |
| Status | Verkocht |
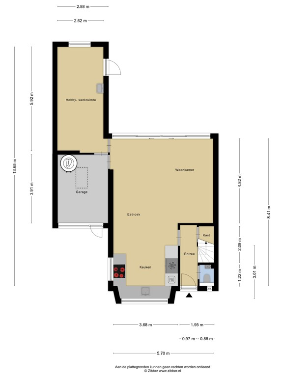
Sfeervolle, uitgebouwde gezinswoning nabij het dorpscentrum van Harmelen Instapklaar wonen met verrassend veel ruimte, comfort en een uitstekende ligging. Je woont hier in een moderne en sfeervolle woning die zowel op de begane grond als op de eerste verdieping is uitgebouwd. Hierdoor is er volop leefruimte ontstaan. De woning is met zorg onderhouden, stijlvol afgewerkt en van alle gemakken voorzien. Met onder andere een royale woonkamer, een moderne open keuken, vier slaapkamers, twee badkamers, een hobby-/werkkamer, garage én een heerlijke tuin op het westen is dit een ideale gezinswoning waar je zó in kunt trekken. Ligging & voorzieningen De woning ligt op loopafstand van het gezellige dorpscentrum van Harmelen. Hier vind je een gevarieerd aanbod aan winkels, horecagelegenheden, basisscholen, sportvoorzieningen en het groene Koningspark. Daarnaast zijn er goede openbaar-vervoersverbindingen richting Woerden en Utrecht. Met de auto bereik je binnen vijf minuten de op- en afrit van de A12, waardoor steden als Utrecht, Amsterdam, Rotterdam en Den Haag snel en eenvoudig bereikbaar zijn. Entree Je parkeert je auto op de eigen oprit voor de garage of in de rustige straat voor de woning. Via de keurig aangelegde en ruime voortuin bereik je de voordeur. In de hal tref je het toilet met fontein, de meterkast, trapkast en de vaste trap naar de verdieping. Via een stijlvolle industriële deur heb je toegang tot de keuken en woonkamer. Keuken & woonkamer Aan de voorzijde van de woning bevindt zich de ruime open keuken. Deze moderne keuken met industriële uitstraling is geplaatst in een hoekopstelling en aangevuld met een royale kastenwand. De keuken is uitgerust met diverse inbouwapparatuur, waaronder een 4-pits inductiekookplaat met geïntegreerde afzuiging, spoelbak, vaatwasser, Amerikaanse koelkast, oven, apothekerskast en volop bergruimte. Dankzij de twee grote ramen geniet je hier van veel natuurlijk daglicht en een prettig uitzicht op de voortuin. De inbouwspots zorgen voor een gezellige sfeer. De keuken loopt naadloos over in de uitgebouwde woonkamer. Deze royale leefruimte biedt meer dan voldoende plek voor zowel een comfortabele zithoek als een ruime eethoek. Aan de achterzijde zorgen grote raampartijen en een schuifpui voor een fijne lichtinval en direct contact met de tuin. Vanuit de woonkamer heb je toegang tot zowel de garage als de hobbykamer. De hobbykamer is afsluitbaar en multifunctioneel in te richten, bijvoorbeeld als werkruimte, speelkamer of extra slaapkamer. De ruimte is voorzien van een wasbak met kraan en biedt directe toegang tot de achtertuin. De garage is bereikbaar vanaf de voorzijde van de woning en vanuit de woonkamer. Hier bevinden zich een tweede meterkast en de boiler van de warmtepomp. Via een vlizotrap bereik je de bergzolder, die zich uitstrekt over de lengte van de garage en hobbykamer. De garage biedt voldoende ruimte voor fietsen en extra opslag. Verdieping Via de vaste trap kom je op de overloop van de eerste verdieping. Vanaf hier heb je toegang tot drie slaapkamers, de badkamer, een separate toiletruimte en een wasruimte. Aan de achterzijde bevinden zich twee slaapkamers, waarvan één met een vaste kast. Beide kamers hebben een prettig uitzicht op de achtertuin. Aan de voorzijde ligt de derde slaapkamer, die beschikt over een balkon. Ook de badkamer is aan de voorzijde gesitueerd en volledig betegeld. Deze is uitgerust met inbouwspots, een douche en een wastafelmeubel met wastafel en spiegelkast. Het raam zorgt voor natuurlijke ventilatie en daglicht. Centraal op de verdieping is een aparte wasruimte gerealiseerd met aansluitingen voor de wasmachine en droger. Hier bevindt zich tevens de cv-opstelling, een vaste kast en een aanrechtblad, wat zorgt voor extra comfort en bergruimte. Tweede verdieping De vaste trap brengt je direct in de sfeervolle masterbedroom. Deze speels ingedeelde ruimte voelt ruim en licht dankzij de ramen in de achtergevel en de schuine kap. De kamer is aan de ene zijde voorzien van een inbouwkast en aan de andere zijde van lage kastruimte over de volledige lengte van de woning. Aan de achterzijde bevindt zich de open badkamer, die is uitgerust met een douche, ligbad en een wastafelmeubel met dubbele wastafel en spiegel. Vanuit deze ruimte heb je toegang tot het balkon aan de voorzijde. Tuin De voortuin is gelegen op het oosten en grotendeels betegeld. Voor het keukenraam staat een palmboom die zorgt voor privacy en een sfeervol accent. Op de oprit is ruimte om je auto te parkeren en vanuit de voortuin heb je directe toegang tot de garage. De achtertuin is ruim, verzorgd en gelegen op het westen, waardoor je hier tot in de avond van de zon kunt genieten. De tuin beschikt over een achterom via de naastgelegen steeg, ideaal voor fietsen. De tuin is grotendeels betegeld en biedt voldoende ruimte voor een eettafel. Achterin de tuin, onder de veranda, kun je een gezellige zithoek creëren. Een strook kunstgras zorgt voor extra kleur en sfeer. Bijzonderheden • Instapklare, sfeervolle en uitgebouwde woning • Uitbouw op begane grond én verdieping • Moderne open keuken met complete inbouwapparatuur • Royale woonkamer met veel lichtinval en schuifpui • Multifunctionele hobby-/werkkamer • Garage met bergzolder • Vier slaapkamers en twee badkamers • Balkon op zowel de eerste als tweede verdieping • Zonnige achtertuin op het westen met veranda en achterom • Gas loze woning • Gelegen nabij dorpscentrum, scholen, sportvoorzieningen en uitvalswegen DISCLAIMER Voor onze koopakte gelden de standaard NVM-regels. In alle overeenkomsten bedraagt de waarborgsom/bankgarantie 10% van de koopsom en deze wordt voldaan aan de notaris. Deze projectinformatie mag niet worden beschouwd als een aanbieding of offerte en wordt verstrekt onder voorbehoud van goedkeuring door verkoper. Wij kunnen geen aansprakelijkheid aanvaarden voor de door ons samengestelde gegevens. Deze informatie, eventuele gesprekken, onderhandelingen etc. zijn alle vrijblijvend. Er is pas overeenstemming bereikt op het moment dat de door Rien Treur Makelaardij opgestelde koopovereenkomst door beide partijen is beoordeeld en ondertekend. Tot dat moment hebben partijen het recht om af te zien van een transactie, zonder kostenvergoeding etc. Alle genoemde maten zijn indicatief, er kunnen geen rechten aan worden ontleend.
| Vraagprijs | € 775.000,- k.k. |
| Status | Verkocht |
| Aanvaarding | In overleg |
| Aangeboden sinds | Vrijdag 20 maart 2026 |
| Laatste wijziging | Donderdag 7 mei 2026 |
| Type object | Eengezinswoning, woonhuis, hoekwoning |
| Soort bouw | Bestaande bouw |
| Bouwjaar | 1960 |
| Dakbedekking | Dakpannen |
| Type dak | Zadeldak |
| Isolatievormen | Dakisolatie Muurisolatie Vloerisolatie Volledig geïsoleerd |
| Perceeloppervlakte | 229 m² |
| Woonoppervlakte | 143 m² |
| Woonkameroppervlakte | 30 m² |
| Inhoud | 552 m³ |
| Oppervlakte overige inpandige ruimten | 13 m² |
| Oppervlakte gebouwgebonden buitenruimte | 5 m² |
| Tuinoppervlakte | 125 m² |
| Aantal bouwlagen | 3 |
| Aantal kamers | 6 (waarvan 4 slaapkamers) |
| Ligging | Aan rustige weg Beschutte ligging In centrum In woonwijk |
| Type | Achtertuin |
| Hoofdtuin | Ja |
| Oriëntering | West |
| Heeft een achterom | Ja |
| Staat | Goed onderhouden |
| Tuin 2 - Type | Achtertuin |
| Tuin 2 - Staat | Goed onderhouden |
| Tuin 3 - Type | Voortuin |
| Tuin 3 - Staat | Goed onderhouden |
| Energielabel | A |
| Aantal parkeerplaatsen | 2 |
| Verwarmingssysteem | Vloerverwarming Warmtepomp Warmterecuperatiesysteem |
| Badkamervoorzieningen Badkamer 1 | Douche Wastafelmeubel |
| Badkamervoorzieningen Badkamer 2 | Douche Ligbad Toilet Wastafelmeubel |
| Heeft een balkon | Ja |
| Glasvezelaansluiting aanwezig | Ja |
| Tuin aanwezig | Ja |
| Heeft schuur/berging | Ja |
| Heeft zonwering | Ja |
| Heeft zonnecollectoren | Ja |
| Heeft ventilatie | Ja |
| Kadastrale aanduiding | Harmelen B 1472 |
| Perceeloppervlakte | 229 m² |
| Omvang | Geheel perceel |
| Eigendomsituatie | Eigen grond |