Algemeen
Wilt u wonen en werken combineren? Dan is dit een prachtige kans om op het bedrijventerrein van Harmelen deze vrijstaande bedrijfswoning met bedrijfshal te betrekken!
Op industrieterrein “de Putkop”, op ca. 2 km afstand van het dorp Harmelen, vindt u deze ruime, vrijstaande bedrijfswoning met bedrijfshal van ca. 110 m2 met een tweede hal van ca. 65 m2, een ruime garage van ca. 30 m2 en een r... Meer informatie
Op industrieterrein “de Putkop”, op ca. 2 km afstand van het dorp Harmelen, vindt u deze ruime, vrijstaande bedrijfswoning met bedrijfshal van ca. 110 m2 met een tweede hal van ca. 65 m2, een ruime garage van ca. 30 m2 en een r... Meer informatie
| Kenmerken | |
|---|---|
| Alle kenmerken | |
| Type object | Bedrijfsdienstwoning, eengezinswoning, woonhuis, vrijstaande woning |
| Bouwjaar | 1986 |
| Status | Verkocht |
| Aangeboden sinds | Woensdag 24 januari 2024 |
Kenmerken
| Overdracht | |
|---|---|
| Koopsom | € 895.000,- k.k. |
| Status | Verkocht |
| Aanvaarding | In overleg |
| Aangeboden sinds | Woensdag 24 januari 2024 |
| Laatste wijziging | Donderdag 22 januari 2026 |
| Bouw | |
|---|---|
| Type object | Bedrijfsdienstwoning, eengezinswoning, woonhuis, vrijstaande woning |
| Soort bouw | Bestaande bouw |
| Bouwjaar | 1986 |
| Dakbedekking | Dakpannen |
| Type dak | Zadeldak |
| Isolatievormen | Dubbel glas Vloerisolatie |
| Oppervlaktes en inhoud | |
|---|---|
| Perceeloppervlakte | 1.200 m² |
| Woonoppervlakte | 214 m² |
| Woonkameroppervlakte | 34 m² |
| Inhoud | 912 m³ |
| Oppervlakte overige inpandige ruimten | 38 m² |
| Oppervlakte externe bergruimte | 263 m² |
| Oppervlakte gebouwgebonden buitenruimte | 66 m² |
| Tuinoppervlakte | 263 m² |
| Indeling | |
|---|---|
| Aantal bouwlagen | 2 |
| Aantal kamers | 8 (waarvan 6 slaapkamers) |
| Tuin | |
|---|---|
| Type | Voortuin |
| Hoofdtuin | Ja |
| Oriëntering | West |
| Staat | Prachtig aangelegd |
| Tuin 2 - Type | Achtertuin |
| Tuin 2 - Staat | Prachtig aangelegd |
| Tuin 3 - Type | Voortuin |
| Tuin 3 - Staat | Prachtig aangelegd |
| Tuin 4 - Type | Zijtuin |
| Tuin 4 - Staat | Prachtig aangelegd |
| Energieverbruik | |
|---|---|
| Energielabel | A |
| CV ketel | |
|---|---|
| CV ketel | Remeha Tzeera CWS |
| Warmtebron | Gas |
| Bouwjaar | 2017 |
| Combiketel | Ja |
| Eigendom | Eigendom |
| Uitrusting | |
|---|---|
| Aantal parkeerplaatsen | 6 |
| Warm water | CV-ketel Zonneboiler |
| Verwarmingssysteem | Centrale verwarming Elektrische verwarming Houtkachel Vloerverwarming (gedeeltelijk) |
| Badkamervoorzieningen Badkamer 1 | Douche Toilet Wastafel |
| Badkamervoorzieningen Badkamer 2 | Douche Ligbad Toilet Wastafel |
| Heeft airco | Ja |
| Heeft een alarm | Ja |
| Heeft een rookkanaal | Ja |
| Tuin aanwezig | Ja |
| Heeft schuur/berging | Ja |
| Heeft zonnecollectoren | Ja |
| Heeft ventilatie | Ja |
| Kadastrale gegevens | |
|---|---|
| Kadastrale aanduiding | Harmelen L 1762 |
| Perceeloppervlakte | 413 m² |
| Omvang | Geheel perceel |
| Eigendomsituatie | Eigen grond |
| Kadastrale aanduiding | Harmelen L 1763 |
| Perceeloppervlakte | 74 m² |
| Omvang | Geheel perceel |
| Eigendomsituatie | Eigen grond |
| Kadastrale aanduiding | Harmelen L 1765 |
| Perceeloppervlakte | 31 m² |
| Omvang | Geheel perceel |
| Eigendomsituatie | Eigen grond |
| Kadastrale aanduiding | Harmelen L 2017 |
| Perceeloppervlakte | 495 m² |
| Omvang | Geheel perceel |
| Eigendomsituatie | Eigen grond |
| Kadastrale aanduiding | Harmelen L 2019 |
| Perceeloppervlakte | 187 m² |
| Omvang | Geheel perceel |
| Eigendomsituatie | Eigen grond |
Beschrijving
Wilt u wonen en werken combineren? Dan is dit een prachtige kans om op het bedrijventerrein van Harmelen deze vrijstaande bedrijfswoning met bedrijfshal te betrekken!
Op industrieterrein “de Putkop”, op ca. 2 km afstand van het dorp Harmelen, vindt u deze ruime, vrijstaande bedrijfswoning met bedrijfshal van ca. 110 m2 met een tweede hal van ca. 65 m2, een ruime garage van ca. 30 m2 en een riant buitenterrein op ca. 1.200 m2 eigen grond.
De woning is in 1986 gebouwd en de huidige eigenaren hebben de woning tussen 2016 en heden gemoderniseerd en verduurzaamd. In de woning krijgt u op de begane grond de beschikking over een ruime woonkamer, een woonkeuken, twee slaapkamers en een badkamer. Op de verdieping krijgt u de beschikking over vier ruime slaapkamers, een badkamer, bergkast en een vliering. De woning is voorzien van veel leef- en bergruimte.
Vanuit de woonkamer en de woonkeuken heeft u een prachtig uitzicht over het achterterrein en de daarachter liggende weilanden. De locatie van de bedrijfswoning heeft de bestemming ‘Bedrijventerrein met de functieaanduiding bedrijfswoning’. Hier mogen bedrijven zich vestigen tot en met categorie 3.2. voorkomend op de lijst behorend bij het bestemmingsplan.
Harmelen is centraal gelegen, waardoor het een aantrekkelijke gemeente is om te wonen. De woonwijken zijn ruim opgezet en kennen veel groen. In het dorp zijn een groot aantal voorzieningen zoals: winkels, basisscholen, openbare busverbindingen, het sociaal cultureel centrum, een bibliotheek, kerken en meerdere kinderdagverblijven, sportvoorzieningen zoals een zwembad, tennisbanen, sporthal, paardenmanege etc. Verder kent Harmelen een rijk verenigingsleven. Op ca. 500 meter afstand van de woning bevindt zich natuurgebied ‘Het Vijverbos’. Kortom een prachtig dorp om te wonen en/of te werken.
Entree
U parkeert uw auto of uw fiets op het naastgelegen erf of op de openbare weg en loopt door het sierhek aan de voorzijde over het aangelegde looppad door de voortuin naar de voordeur.
U komt binnen in de ruime hal, vanwaar u toegang heeft tot de meterkast, het toilet met fontein, een vaste kast, de vaste trap naar de eerste verdieping en de woonkamer.
Woonkamer
De L-vormige woonkamer is ruim van opzet en biedt door de vele raampartijen uitzicht aan de voorzijde op de voortuin, aan de zijkant op de naastgelegen oprit en aan de achterzijde op de achtertuin/binnenplaats met de daarachter liggende weilanden.
Er is voldoende ruimte aanwezig om een zithoek te creëren rondom de sfeervolle openhaard met schouw en om een eettafel te plaatsen. Vanuit de zithoek heeft u middels een karakteristiek raam zicht op de hal.
Keuken
Vanuit de woonkamer loopt u via een doorloop naar de open woonkeuken. Aan de linkerzijde is de keuken geplaatst en aan de rechterzijde is er voldoende plaats voor een grote eettafel. In deze ruimte zijn voorzieningen getroffen om een kachel te plaatsen in de nis.
De keuken is ruim van opzet en voorzien van een landelijke stijl, wat goed bij de woning past. In de keuken krijgt u de beschikking over een vaatwasser, magnetron, inductie kooktoestel van het merk SMEG met oven, afzuigkap, een dubbele spoelbak en een Amerikaanse koel-/vrieskast en veel kastruimte. Tevens is er een bar gecreëerd, waar u heerlijk uw ontbijt kunt eten.
Vanuit de woonkeuken heeft u middels openslaande deuren toegang tot de veranda en de afgesloten voortuin.
Tevens heeft u vanuit de woonkeuken toegang een tussenhal, die u toegang geeft tot de bijkeuken met de opstelplaats van de cv-ketel en de wasmachine en droger aansluiting. Vanuit de bijkeuken heeft u tevens toegang tot de veranda en de voortuin.
Slaapkamers & badkamer
Wanneer u verder de hal in loopt, treft u de achterdeur naar de achtertuin en heeft u toegang tot twee slaapkamers en een badkamer.
Beide slaapkamers kunnen gekoeld en verwarmd worden via een airco.
De badkamer is voorzien van een douchecabine, wastafel met meubel, designradiator en toilet.
Eerste verdieping
Via de vaste trap komt u op de overloop met vide. Via de overloop heeft u toegang tot vier slaapkamers, een badkamer, een ruime bergkast. Middels een vlizo trap komt u vanaf de overloop op de ruime bergzolder.
Aan beide zijden van de woning heeft u de beschikking over twee ruime slaapkamers. De masterbedroom is voorzien van een vaste kastenwand achter het knieschot. Alle slaapkamers op deze verdieping zijn voorzien van een airco.
De modern ingerichte badkamer is in het midden van de woning gelegen en voorzien van wastafelmeubel met voldoende bergruimte, een half vrijstaand bad, een douche, designradiator en een toilet. De badkamer is volledig betegeld en voorzien van een raam in de dakkapel, wat voor voldoende ventilatie en daglicht in de badkamer zorgt.
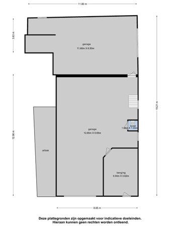
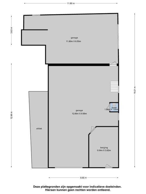
Bedrijfsruimte
Via de oprit aan de noordzijde van de woning komt u op het achterterrein bij de bedrijfshal en de garage. De bedrijfshal is een ruime hal van ca. 110 m2. In de voorzijde van de hal zit een overheaddeur en de hal is voor twee derde voorzien van een zolder. Aan de achterkant van de hal is een tweede hal van ca. 65 m2 gebouwd voor het opslaan van materialen. De hal is voorzien van een toilet en verdeeld in drie ruimtes; een berging, hal met toegang tot de verdieping en een tweede hal.
De bedrijfshal is in maart 2021 voorzien van geïsoleerde wanden en geïsoleerde dakplaten.
Garage
De garage is aan de woning vast gebouwd en voorzien van twee overheaddeuren. Het is mogelijk twee auto’s in de garage te parkeren. Direct aan de garage is een carport gebouwd, waar u een derde auto kunt parkeren.
Voor-/zijtuin
De voortuin is ingericht op een manier waardoor er feitelijk twee tuinen ontstaan. Direct naast de oprit, aan de linkerzijde van de woning, is de eerste tuin gelegen. Deze tuin loopt door tot de linkerzijde van de woning en is grotendeels voorzien van een gazon met plantenborders, een sierhek rondom het perceel en een looppad van de openbare weg naar de voordeur en langs de woning.
Aan de rechterzijde is de tweede tuin gelegen. Middels een sierhek naast de voordeur, komt u in de besloten tuin. Het besloten gedeelte is omringd door hoge hagen en is op het westen gelegen. Deze tuin is grotendeels voorzien van grind. In dit gedeelte van de tuin is een grote veranda gemaakt, met afsluitbaar zeil, waardoor u hier heerlijk kunt vertoeven. Deze tuin is zowel vanuit de keuken als vanuit de bijkeuken toegankelijk. De tuinen zijn beide keurig aangelegd, goed onderhouden en praktisch in gebruik.
Achterterrein
Op het achterterrein is ook een zithoek gecreëerd. Middels een verhoging is dit afgescheiden van de rest van het terrein. Deze zithoek is via de oprit of via de woning middels de achterdeur bereikbaar.
Bijzonderheden
• Veranda vernieuwd in 2018
• Slaapkamers en badkamer begane grond gerealiseerd in 2016/2022
• Screens aan voor- en achterzijde 2021/2022
• Zonnepanelen woonhuis sinds 2017 (26 stuks) en bedrijfsloods sinds 2021 (30 stuks)
• Airco in alle slaapkamers om te verwarmen en te koelen (2022)
• Gehele achterterrein in 2022 opnieuw bestraat
• Bedrijfshal voorzien van 380 volt aansluiting en elektrische overheaddeur
• Buitenzijde woning geschilderd in 2022
• Twee rookkanalen voor openhaard aanwezig
• Woonkamer en keuken voorzien van massieve Frans eiken vloer
• Cv-installatie met zonneboiler (2017)
• Laadpaal voor een elektrische auto is aanwezig
• De bereikbaarheid naar de A12 is zeer goed te noemen. Harmelen heeft een directe aansluiting op de A12.
DISCLAIMER
Voor onze koopakte gelden de standaard NVM-regels. In alle overeenkomsten bedraagt de waarborgsom/bankgarantie 10% van de koopsom en deze wordt voldaan aan de notaris.
Deze projectinformatie mag niet worden beschouwd als een aanbieding of offerte en wordt verstrekt onder voorbehoud van goedkeuring door verkoper. Wij kunnen geen aansprakelijkheid aanvaarden voor de door ons samengestelde gegevens. Deze informatie, eventuele gesprekken, onderhandelingen etc. zijn alle vrijblijvend. Er is pas overeenstemming bereikt op het moment dat de door Rien Treur Makelaardij opgestelde koopovereenkomst door beide partijen is beoordeeld en ondertekend. Tot dat moment hebben partijen het recht om af te zien van een transactie, zonder kostenvergoeding etc. Alle genoemde maten zijn indicatief, er kunnen geen rechten aan worden ontleend.
Op industrieterrein “de Putkop”, op ca. 2 km afstand van het dorp Harmelen, vindt u deze ruime, vrijstaande bedrijfswoning met bedrijfshal van ca. 110 m2 met een tweede hal van ca. 65 m2, een ruime garage van ca. 30 m2 en een riant buitenterrein op ca. 1.200 m2 eigen grond.
De woning is in 1986 gebouwd en de huidige eigenaren hebben de woning tussen 2016 en heden gemoderniseerd en verduurzaamd. In de woning krijgt u op de begane grond de beschikking over een ruime woonkamer, een woonkeuken, twee slaapkamers en een badkamer. Op de verdieping krijgt u de beschikking over vier ruime slaapkamers, een badkamer, bergkast en een vliering. De woning is voorzien van veel leef- en bergruimte.
Vanuit de woonkamer en de woonkeuken heeft u een prachtig uitzicht over het achterterrein en de daarachter liggende weilanden. De locatie van de bedrijfswoning heeft de bestemming ‘Bedrijventerrein met de functieaanduiding bedrijfswoning’. Hier mogen bedrijven zich vestigen tot en met categorie 3.2. voorkomend op de lijst behorend bij het bestemmingsplan.
Harmelen is centraal gelegen, waardoor het een aantrekkelijke gemeente is om te wonen. De woonwijken zijn ruim opgezet en kennen veel groen. In het dorp zijn een groot aantal voorzieningen zoals: winkels, basisscholen, openbare busverbindingen, het sociaal cultureel centrum, een bibliotheek, kerken en meerdere kinderdagverblijven, sportvoorzieningen zoals een zwembad, tennisbanen, sporthal, paardenmanege etc. Verder kent Harmelen een rijk verenigingsleven. Op ca. 500 meter afstand van de woning bevindt zich natuurgebied ‘Het Vijverbos’. Kortom een prachtig dorp om te wonen en/of te werken.
Entree
U parkeert uw auto of uw fiets op het naastgelegen erf of op de openbare weg en loopt door het sierhek aan de voorzijde over het aangelegde looppad door de voortuin naar de voordeur.
U komt binnen in de ruime hal, vanwaar u toegang heeft tot de meterkast, het toilet met fontein, een vaste kast, de vaste trap naar de eerste verdieping en de woonkamer.
Woonkamer
De L-vormige woonkamer is ruim van opzet en biedt door de vele raampartijen uitzicht aan de voorzijde op de voortuin, aan de zijkant op de naastgelegen oprit en aan de achterzijde op de achtertuin/binnenplaats met de daarachter liggende weilanden.
Er is voldoende ruimte aanwezig om een zithoek te creëren rondom de sfeervolle openhaard met schouw en om een eettafel te plaatsen. Vanuit de zithoek heeft u middels een karakteristiek raam zicht op de hal.
Keuken
Vanuit de woonkamer loopt u via een doorloop naar de open woonkeuken. Aan de linkerzijde is de keuken geplaatst en aan de rechterzijde is er voldoende plaats voor een grote eettafel. In deze ruimte zijn voorzieningen getroffen om een kachel te plaatsen in de nis.
De keuken is ruim van opzet en voorzien van een landelijke stijl, wat goed bij de woning past. In de keuken krijgt u de beschikking over een vaatwasser, magnetron, inductie kooktoestel van het merk SMEG met oven, afzuigkap, een dubbele spoelbak en een Amerikaanse koel-/vrieskast en veel kastruimte. Tevens is er een bar gecreëerd, waar u heerlijk uw ontbijt kunt eten.
Vanuit de woonkeuken heeft u middels openslaande deuren toegang tot de veranda en de afgesloten voortuin.
Tevens heeft u vanuit de woonkeuken toegang een tussenhal, die u toegang geeft tot de bijkeuken met de opstelplaats van de cv-ketel en de wasmachine en droger aansluiting. Vanuit de bijkeuken heeft u tevens toegang tot de veranda en de voortuin.
Slaapkamers & badkamer
Wanneer u verder de hal in loopt, treft u de achterdeur naar de achtertuin en heeft u toegang tot twee slaapkamers en een badkamer.
Beide slaapkamers kunnen gekoeld en verwarmd worden via een airco.
De badkamer is voorzien van een douchecabine, wastafel met meubel, designradiator en toilet.
Eerste verdieping
Via de vaste trap komt u op de overloop met vide. Via de overloop heeft u toegang tot vier slaapkamers, een badkamer, een ruime bergkast. Middels een vlizo trap komt u vanaf de overloop op de ruime bergzolder.
Aan beide zijden van de woning heeft u de beschikking over twee ruime slaapkamers. De masterbedroom is voorzien van een vaste kastenwand achter het knieschot. Alle slaapkamers op deze verdieping zijn voorzien van een airco.
De modern ingerichte badkamer is in het midden van de woning gelegen en voorzien van wastafelmeubel met voldoende bergruimte, een half vrijstaand bad, een douche, designradiator en een toilet. De badkamer is volledig betegeld en voorzien van een raam in de dakkapel, wat voor voldoende ventilatie en daglicht in de badkamer zorgt.
Bedrijfsruimte
Via de oprit aan de noordzijde van de woning komt u op het achterterrein bij de bedrijfshal en de garage. De bedrijfshal is een ruime hal van ca. 110 m2. In de voorzijde van de hal zit een overheaddeur en de hal is voor twee derde voorzien van een zolder. Aan de achterkant van de hal is een tweede hal van ca. 65 m2 gebouwd voor het opslaan van materialen. De hal is voorzien van een toilet en verdeeld in drie ruimtes; een berging, hal met toegang tot de verdieping en een tweede hal.
De bedrijfshal is in maart 2021 voorzien van geïsoleerde wanden en geïsoleerde dakplaten.
Garage
De garage is aan de woning vast gebouwd en voorzien van twee overheaddeuren. Het is mogelijk twee auto’s in de garage te parkeren. Direct aan de garage is een carport gebouwd, waar u een derde auto kunt parkeren.
Voor-/zijtuin
De voortuin is ingericht op een manier waardoor er feitelijk twee tuinen ontstaan. Direct naast de oprit, aan de linkerzijde van de woning, is de eerste tuin gelegen. Deze tuin loopt door tot de linkerzijde van de woning en is grotendeels voorzien van een gazon met plantenborders, een sierhek rondom het perceel en een looppad van de openbare weg naar de voordeur en langs de woning.
Aan de rechterzijde is de tweede tuin gelegen. Middels een sierhek naast de voordeur, komt u in de besloten tuin. Het besloten gedeelte is omringd door hoge hagen en is op het westen gelegen. Deze tuin is grotendeels voorzien van grind. In dit gedeelte van de tuin is een grote veranda gemaakt, met afsluitbaar zeil, waardoor u hier heerlijk kunt vertoeven. Deze tuin is zowel vanuit de keuken als vanuit de bijkeuken toegankelijk. De tuinen zijn beide keurig aangelegd, goed onderhouden en praktisch in gebruik.
Achterterrein
Op het achterterrein is ook een zithoek gecreëerd. Middels een verhoging is dit afgescheiden van de rest van het terrein. Deze zithoek is via de oprit of via de woning middels de achterdeur bereikbaar.
Bijzonderheden
• Veranda vernieuwd in 2018
• Slaapkamers en badkamer begane grond gerealiseerd in 2016/2022
• Screens aan voor- en achterzijde 2021/2022
• Zonnepanelen woonhuis sinds 2017 (26 stuks) en bedrijfsloods sinds 2021 (30 stuks)
• Airco in alle slaapkamers om te verwarmen en te koelen (2022)
• Gehele achterterrein in 2022 opnieuw bestraat
• Bedrijfshal voorzien van 380 volt aansluiting en elektrische overheaddeur
• Buitenzijde woning geschilderd in 2022
• Twee rookkanalen voor openhaard aanwezig
• Woonkamer en keuken voorzien van massieve Frans eiken vloer
• Cv-installatie met zonneboiler (2017)
• Laadpaal voor een elektrische auto is aanwezig
• De bereikbaarheid naar de A12 is zeer goed te noemen. Harmelen heeft een directe aansluiting op de A12.
DISCLAIMER
Voor onze koopakte gelden de standaard NVM-regels. In alle overeenkomsten bedraagt de waarborgsom/bankgarantie 10% van de koopsom en deze wordt voldaan aan de notaris.
Deze projectinformatie mag niet worden beschouwd als een aanbieding of offerte en wordt verstrekt onder voorbehoud van goedkeuring door verkoper. Wij kunnen geen aansprakelijkheid aanvaarden voor de door ons samengestelde gegevens. Deze informatie, eventuele gesprekken, onderhandelingen etc. zijn alle vrijblijvend. Er is pas overeenstemming bereikt op het moment dat de door Rien Treur Makelaardij opgestelde koopovereenkomst door beide partijen is beoordeeld en ondertekend. Tot dat moment hebben partijen het recht om af te zien van een transactie, zonder kostenvergoeding etc. Alle genoemde maten zijn indicatief, er kunnen geen rechten aan worden ontleend.