Algemeen
Ruime, uitgebouwde eengezinswoning met sfeervolle veranda in het groene Harmelen
Deze keurig onderhouden tussenwoning, gelegen in een rustige en groene woonomgeving, is de ideale plek voor wie comfortabel en sfeervol wil wonen. De woning is strak afgewerkt, beschikt over een uitbouw aan de zijkant en biedt bovendien nog uitbreidingsmogelijkheden op de verdieping. Met een zonnig gelegen achte... Meer informatie
Deze keurig onderhouden tussenwoning, gelegen in een rustige en groene woonomgeving, is de ideale plek voor wie comfortabel en sfeervol wil wonen. De woning is strak afgewerkt, beschikt over een uitbouw aan de zijkant en biedt bovendien nog uitbreidingsmogelijkheden op de verdieping. Met een zonnig gelegen achte... Meer informatie
| Kenmerken | |
|---|---|
| Alle kenmerken | |
| Type object | Eengezinswoning, woonhuis, tussenwoning |
| Bouwjaar | 1960 |
| Status | Verkocht |
| Aangeboden sinds | Dinsdag 2 september 2025 |
Kenmerken
| Overdracht | |
|---|---|
| Vraagprijs | € 525.000,- k.k. |
| Status | Verkocht |
| Aanvaarding | In overleg |
| Aangeboden sinds | Dinsdag 2 september 2025 |
| Laatste wijziging | Dinsdag 21 oktober 2025 |
| Bouw | |
|---|---|
| Type object | Eengezinswoning, woonhuis, tussenwoning |
| Soort bouw | Bestaande bouw |
| Bouwjaar | 1960 |
| Dakbedekking | Bitumen |
| Type dak | Platdak |
| Isolatievormen | Dakisolatie Dubbel glas Muurisolatie Vloerisolatie |
| Oppervlaktes en inhoud | |
|---|---|
| Perceeloppervlakte | 167 m² |
| Woonoppervlakte | 115 m² |
| Woonkameroppervlakte | 37 m² |
| Inhoud | 452 m³ |
| Oppervlakte overige inpandige ruimten | 12 m² |
| Oppervlakte externe bergruimte | 16 m² |
| Tuinoppervlakte | 86 m² |
| Indeling | |
|---|---|
| Aantal bouwlagen | 2 |
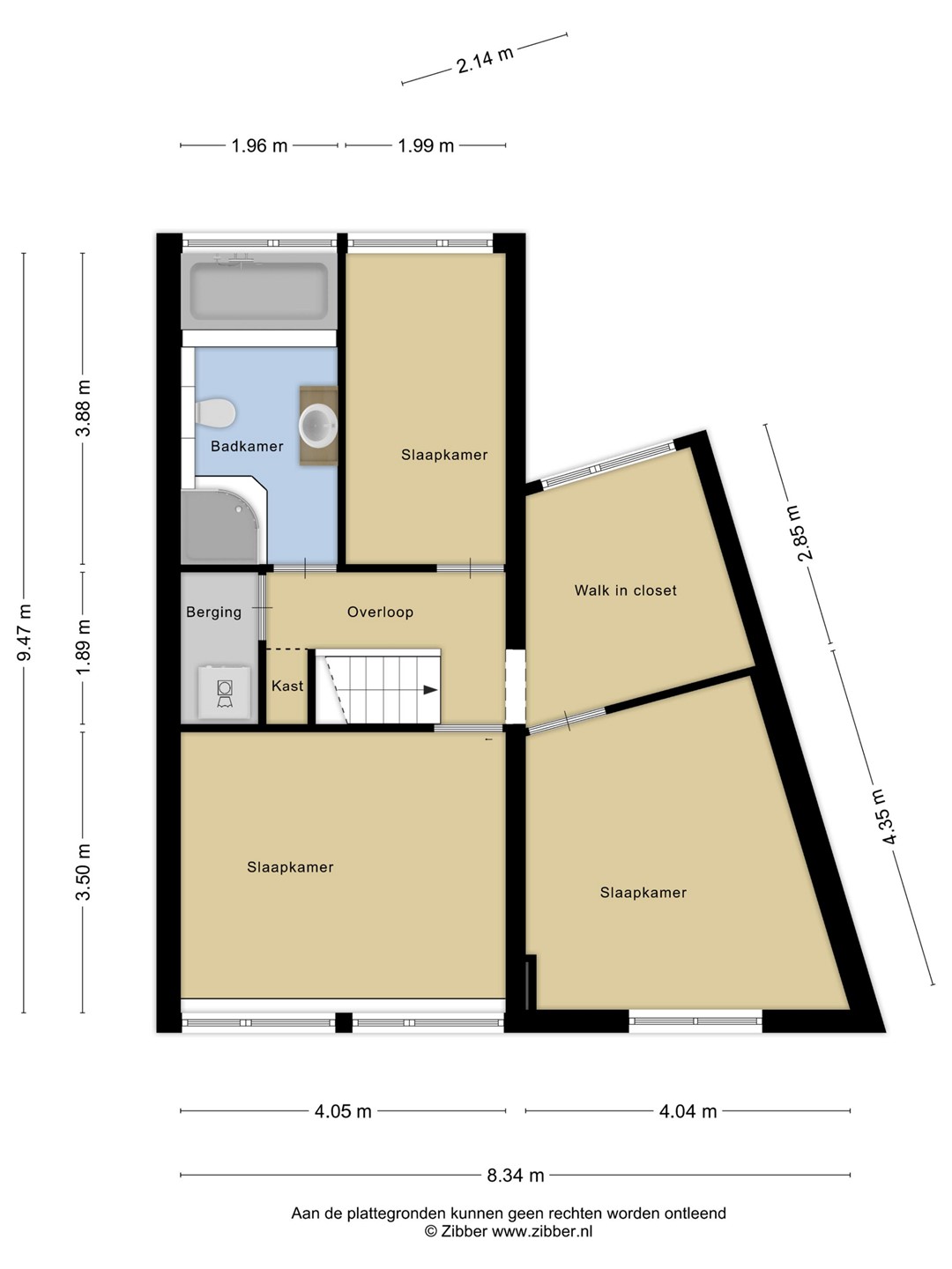
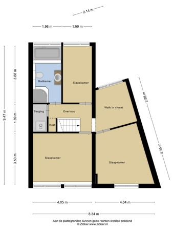
| Aantal kamers | 4 (waarvan 3 slaapkamers) |
| Locatie | |
|---|---|
| Ligging | Aan rustige weg Beschutte ligging In woonwijk |
| Tuin | |
|---|---|
| Type | Achtertuin |
| Hoofdtuin | Ja |
| Oriëntering | West |
| Staat | Goed onderhouden |
| Tuin 2 - Type | Achtertuin |
| Tuin 2 - Staat | Goed onderhouden |
| Tuin 3 - Type | Voortuin |
| Tuin 3 - Staat | Goed onderhouden |
| Energieverbruik | |
|---|---|
| Energielabel | D |
| CV ketel | |
|---|---|
| CV ketel | Remeha |
| Warmtebron | Gas |
| Bouwjaar | 2008 |
| Combiketel | Ja |
| Eigendom | Eigendom |
| Uitrusting | |
|---|---|
| Warm water | CV-ketel |
| Verwarmingssysteem | Centrale verwarming |
| Badkamervoorzieningen | Douche Toilet Wastafelmeubel Whirlpool |
| Heeft airco | Ja |
| Heeft kabel-tv | Ja |
| Glasvezelaansluiting aanwezig | Ja |
| Tuin aanwezig | Ja |
| Heeft schuur/berging | Ja |
| Heeft ventilatie | Ja |
| Kadastrale gegevens | |
|---|---|
| Kadastrale aanduiding | Harmelen B 1325 |
| Perceeloppervlakte | 167 m² |
| Omvang | Geheel perceel |
| Eigendomsituatie | Eigen grond |
Beschrijving
Ruime, uitgebouwde eengezinswoning met sfeervolle veranda in het groene Harmelen
Deze keurig onderhouden tussenwoning, gelegen in een rustige en groene woonomgeving, is de ideale plek voor wie comfortabel en sfeervol wil wonen. De woning is strak afgewerkt, beschikt over een uitbouw aan de zijkant en biedt bovendien nog uitbreidingsmogelijkheden op de verdieping. Met een zonnig gelegen achtertuin mét veranda, een ruime voortuin en een praktische indeling binnen, is dit een heerlijk huis waar u direct kunt intrekken.
De woning ligt in een kindvriendelijke straat met voldoende parkeergelegenheid in de omgeving en bevindt zich op korte afstand van het gezellige dorpscentrum van Harmelen. Binnen treft u een lichte en ruime uitgebouwde woon- en eetkamer met halfopen keuken. Op de eerste verdieping bevinden zich drie slaapkamers, een walk-in closet, een badkamer en een aparte wasruimte.
Harmelen ligt midden in het Groene Hart, dichtbij Woerden en met uitstekende verbindingen naar de snelwegen A12 en A2. Grote steden zoals Utrecht, Amsterdam, Rotterdam en Den Haag zijn met de auto in circa 30 minuten bereikbaar. Het dorp zelf biedt volop voorzieningen op loopafstand, zoals winkels, basisscholen, kinderdagverblijven, openbaar vervoer, kerken, bibliotheek en sportfaciliteiten.
Kortom: een perfect huis voor wie op zoek is naar comfortabel en praktisch wonen in een rustige én centrale omgeving.
Entree
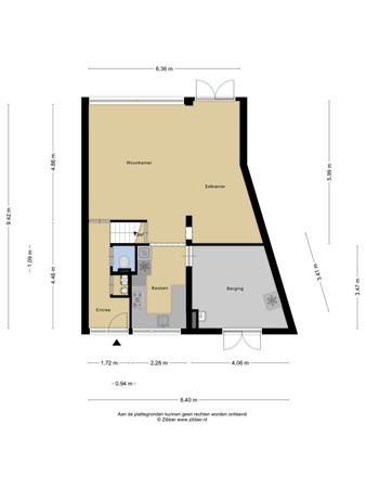
U parkeert uw auto aan de openbare weg en loopt vervolgens via een looppad naar de voortuin van de woning. Vanuit de strak aangelegde voortuin bereikt u de voordeur en komt u binnen in de ruime hal, voorzien van meterkast, garderobe, toilet, de trapopgang naar de verdieping en toegang tot de woonkamer.
Woonkamer & keuken
De woning is aan de zijkant uitgebouwd, waardoor de woonkamer een royale leefruimte heeft gekregen. De tuingerichte woonkamer is heerlijk licht dankzij de grote raampartijen en de openslaande deuren naar de achtertuin. De uitbouw is voorzien van een verlaagd plafond met inbouwspots, wat zorgt voor een gezellige sfeer. Hier is voldoende plek voor een ruime zithoek én een royale eethoek. De eethoek beschikt over een elektrische verwarming en een fraaie industriële lamp, welke beide achterblijven.
De halfopen keuken is aan de voorzijde gesitueerd en kijkt uit op de voortuin. De keuken is in U-vorm opgesteld en beschikt daarnaast over een praktische kastenwand. Aan apparatuur vindt u onder meer een 5-pits gaskookplaat, afzuigkap, koel-vriescombinatie, vaatwasser, oven en magnetron. Vanuit de keuken bereikt u de inpandige berging, die tevens via de voortuin toegankelijk is.
Verdieping
Via de vaste trap komt u op de overloop met toegang tot twee slaapkamers, de walk-in closet met aansluitend een derde slaapkamer, de badkamer, een kast en de separate wasruimte.
De masterbedroom bevindt zich aan de voorzijde en is opvallend licht door de brede raampartij. De tweede slaapkamer ligt aan de achterzijde en kijkt uit over de tuin. De derde slaapkamer, gelegen boven de zij-aanbouw, is bereikbaar via de walk-in-closet en beschikt eveneens over inbouwspots.
De geheel betegelde badkamer is gelegen aan de achterzijde en voorzien van een wastafelmeubel, douchecabine, whirlpool (kraan links defect), toilet en designradiator.
Tuin
De voortuin is keurig aangelegd in moderne antraciettinten en biedt voldoende ruimte voor een gezellig zitje. Vanuit hier is ook de inpandige berging met dubbele deuren bereikbaar.
De brede achtertuin is gelegen op het westen en biedt de hele middag en avond zon. De tuin is strak aangelegd met grote antraciet tegels en aan de zijkanten voorzien van schuttingen. Aan de achtergevel is een elektrisch zonnescherm bevestigd, waarmee u op warme dagen eenvoudig voor een fijne schaduwplek zorgt. Achterin de tuin bevindt zich een riante, volledig geïsoleerde en onderheide veranda met glazen schuifwand. Hierdoor kunt u hier zowel in de zomer als in de winter genieten. De veranda is bovendien voorzien van verlichting en elektra: de perfecte plek om te ontspannen of gezellig te borrelen. Aansluitend aan de veranda is nog een praktische berging gerealiseerd, ideaal voor het opbergen van bijvoorbeeld tuingereedschap.
Bijzonderheden
• Woning aan de zijkant uitgebouwd (begane grond en verdieping)
• Mogelijkheid tot realiseren van een tweede verdieping
• Voorzien van een elektrisch zonnescherm aan de achtergevel
• Veranda volledig geïsoleerd en onderheid
• Kozijnen uitbouw en openslaande deuren in kunststof
• Bestaande bouw voorzien van betonnen kozijnen met houten ramen
• Airconditioning aanwezig
• Elektrische verwarming en lamp bij de eethoek blijven achter
• Gelegen in een rustige, kindvriendelijke straat nabij het centrum van Harmelen
DISCLAIMER
Voor onze koopakte gelden de standaard NVM-regels. In alle overeenkomsten bedraagt de waarborgsom/bankgarantie 10% van de koopsom en deze wordt voldaan aan de notaris.
Deze projectinformatie mag niet worden beschouwd als een aanbieding of offerte en wordt verstrekt onder voorbehoud van goedkeuring door verkoper. Wij kunnen geen aansprakelijkheid aanvaarden voor de door ons samengestelde gegevens. Deze informatie, eventuele gesprekken, onderhandelingen etc. zijn alle vrijblijvend. Er is pas overeenstemming bereikt op het moment dat de door Rien Treur Makelaardij opgestelde koopovereenkomst door beide partijen is beoordeeld en ondertekend. Tot dat moment hebben partijen het recht om af te zien van een transactie, zonder kostenvergoeding etc. Alle genoemde maten zijn indicatief, er kunnen geen rechten aan worden ontleend.
Deze keurig onderhouden tussenwoning, gelegen in een rustige en groene woonomgeving, is de ideale plek voor wie comfortabel en sfeervol wil wonen. De woning is strak afgewerkt, beschikt over een uitbouw aan de zijkant en biedt bovendien nog uitbreidingsmogelijkheden op de verdieping. Met een zonnig gelegen achtertuin mét veranda, een ruime voortuin en een praktische indeling binnen, is dit een heerlijk huis waar u direct kunt intrekken.
De woning ligt in een kindvriendelijke straat met voldoende parkeergelegenheid in de omgeving en bevindt zich op korte afstand van het gezellige dorpscentrum van Harmelen. Binnen treft u een lichte en ruime uitgebouwde woon- en eetkamer met halfopen keuken. Op de eerste verdieping bevinden zich drie slaapkamers, een walk-in closet, een badkamer en een aparte wasruimte.
Harmelen ligt midden in het Groene Hart, dichtbij Woerden en met uitstekende verbindingen naar de snelwegen A12 en A2. Grote steden zoals Utrecht, Amsterdam, Rotterdam en Den Haag zijn met de auto in circa 30 minuten bereikbaar. Het dorp zelf biedt volop voorzieningen op loopafstand, zoals winkels, basisscholen, kinderdagverblijven, openbaar vervoer, kerken, bibliotheek en sportfaciliteiten.
Kortom: een perfect huis voor wie op zoek is naar comfortabel en praktisch wonen in een rustige én centrale omgeving.
Entree
U parkeert uw auto aan de openbare weg en loopt vervolgens via een looppad naar de voortuin van de woning. Vanuit de strak aangelegde voortuin bereikt u de voordeur en komt u binnen in de ruime hal, voorzien van meterkast, garderobe, toilet, de trapopgang naar de verdieping en toegang tot de woonkamer.
Woonkamer & keuken
De woning is aan de zijkant uitgebouwd, waardoor de woonkamer een royale leefruimte heeft gekregen. De tuingerichte woonkamer is heerlijk licht dankzij de grote raampartijen en de openslaande deuren naar de achtertuin. De uitbouw is voorzien van een verlaagd plafond met inbouwspots, wat zorgt voor een gezellige sfeer. Hier is voldoende plek voor een ruime zithoek én een royale eethoek. De eethoek beschikt over een elektrische verwarming en een fraaie industriële lamp, welke beide achterblijven.
De halfopen keuken is aan de voorzijde gesitueerd en kijkt uit op de voortuin. De keuken is in U-vorm opgesteld en beschikt daarnaast over een praktische kastenwand. Aan apparatuur vindt u onder meer een 5-pits gaskookplaat, afzuigkap, koel-vriescombinatie, vaatwasser, oven en magnetron. Vanuit de keuken bereikt u de inpandige berging, die tevens via de voortuin toegankelijk is.
Verdieping
Via de vaste trap komt u op de overloop met toegang tot twee slaapkamers, de walk-in closet met aansluitend een derde slaapkamer, de badkamer, een kast en de separate wasruimte.
De masterbedroom bevindt zich aan de voorzijde en is opvallend licht door de brede raampartij. De tweede slaapkamer ligt aan de achterzijde en kijkt uit over de tuin. De derde slaapkamer, gelegen boven de zij-aanbouw, is bereikbaar via de walk-in-closet en beschikt eveneens over inbouwspots.
De geheel betegelde badkamer is gelegen aan de achterzijde en voorzien van een wastafelmeubel, douchecabine, whirlpool (kraan links defect), toilet en designradiator.
Tuin
De voortuin is keurig aangelegd in moderne antraciettinten en biedt voldoende ruimte voor een gezellig zitje. Vanuit hier is ook de inpandige berging met dubbele deuren bereikbaar.
De brede achtertuin is gelegen op het westen en biedt de hele middag en avond zon. De tuin is strak aangelegd met grote antraciet tegels en aan de zijkanten voorzien van schuttingen. Aan de achtergevel is een elektrisch zonnescherm bevestigd, waarmee u op warme dagen eenvoudig voor een fijne schaduwplek zorgt. Achterin de tuin bevindt zich een riante, volledig geïsoleerde en onderheide veranda met glazen schuifwand. Hierdoor kunt u hier zowel in de zomer als in de winter genieten. De veranda is bovendien voorzien van verlichting en elektra: de perfecte plek om te ontspannen of gezellig te borrelen. Aansluitend aan de veranda is nog een praktische berging gerealiseerd, ideaal voor het opbergen van bijvoorbeeld tuingereedschap.
Bijzonderheden
• Woning aan de zijkant uitgebouwd (begane grond en verdieping)
• Mogelijkheid tot realiseren van een tweede verdieping
• Voorzien van een elektrisch zonnescherm aan de achtergevel
• Veranda volledig geïsoleerd en onderheid
• Kozijnen uitbouw en openslaande deuren in kunststof
• Bestaande bouw voorzien van betonnen kozijnen met houten ramen
• Airconditioning aanwezig
• Elektrische verwarming en lamp bij de eethoek blijven achter
• Gelegen in een rustige, kindvriendelijke straat nabij het centrum van Harmelen
DISCLAIMER
Voor onze koopakte gelden de standaard NVM-regels. In alle overeenkomsten bedraagt de waarborgsom/bankgarantie 10% van de koopsom en deze wordt voldaan aan de notaris.
Deze projectinformatie mag niet worden beschouwd als een aanbieding of offerte en wordt verstrekt onder voorbehoud van goedkeuring door verkoper. Wij kunnen geen aansprakelijkheid aanvaarden voor de door ons samengestelde gegevens. Deze informatie, eventuele gesprekken, onderhandelingen etc. zijn alle vrijblijvend. Er is pas overeenstemming bereikt op het moment dat de door Rien Treur Makelaardij opgestelde koopovereenkomst door beide partijen is beoordeeld en ondertekend. Tot dat moment hebben partijen het recht om af te zien van een transactie, zonder kostenvergoeding etc. Alle genoemde maten zijn indicatief, er kunnen geen rechten aan worden ontleend.