Beschrijving

Uitstekend geïsoleerde en uitgebouwde tussenwoning met twee slaapkamers en een zonnige achtertuin op het westen.

Deze verzorgde eengezinswoning ligt in een rustige, kindvriendelijke straat in het hart van Harmelen. Parkeren kan gemakkelijk op de openbare parkeervakken in de directe omgeving. De woning is goed onderhouden, uitgebouwd en voorzien van uitstekende isolatie, waaronder dak-, vloer- en gevelisolatie, HR++ beglazing en deels triple glas. Bovendien biedt de woning toekomstmogelijkheden: er is een vergunning aanwezig voor het realiseren van een dakopbouw, waarmee extra woonruimte gecreëerd kan worden.

Op loopafstand bevindt zich het gezellige dorpscentrum van Harmelen, met een gevarieerd aanbod aan winkels, horecagelegenheden, basisscholen, sportfaciliteiten en het Koningspark. De locatie biedt bovendien goede openbaar-vervoersverbindingen richting Woerden en Utrecht. Met de auto bent u binnen vijf minuten bij de op- en afrit van de A12, waardoor steden als Amsterdam, Utrecht, Rotterdam en Den Haag snel bereikbaar zijn.

Entree
U parkeert uw auto op de openbare parkeervakken in de nabije omgeving en bereikt via een looppad de voortuin. Voorin de voortuin staat de stenen berging met elektra-aansluiting. Langs de berging loopt u via een trapsgewijs aangelegd pad naar de voordeur.

Bij binnenkomst treft u een ruime hal met garderobe, meterkast, toilet met fontein, trapopgang en toegang tot de woonkamer. Het raam met structuurglas in de hal zorgt voor extra lichtinval richting de keuken.

Woonkamer & keuken
De uitgebouwde, tuingerichte woonkamer is strak afgewerkt en geniet van veel daglicht dankzij de grote raampartij aan de achterzijde. Achterin de woonkamer is ruimte voor een comfortabele zithoek, terwijl aan de voorzijde een eettafel geplaatst kan worden die direct in verbinding staat met de keuken. Vloerverwarming in de woonkamer draagt bij aan het wooncomfort.

Via een stijlvolle toog aan de linkerzijde van de woonkamer bereikt u de halfopen keuken. Onder de toog bevindt zich een praktische trapkast, ideaal voor extra bergruimte. De keuken zelf ligt aan de voorzijde en is aan beide zijden voorzien van werkbladen, kastruimte en diverse inbouwapparatuur, waaronder een koelkast, 4-pits gaskookplaat, afzuigkap, oven en vaatwasser.

Verdieping
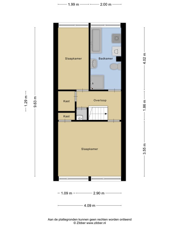
De vaste trap leidt naar de overloop van de eerste verdieping, die toegang biedt tot twee slaapkamers, de badkamer, een vaste bergkast en de cv-kast met cv-ketel.

De hoofdslaapkamer bevindt zich aan de voorzijde, strekt zich over de volledige breedte van de woning en beschikt over een vaste inbouwkast. De tweede slaapkamer ligt aan de achterzijde en biedt een prettig uitzicht op de tuin.

De badkamer is ruim opgezet en voorzien van een ligbad, douchecabine, wastafel, toilet en aansluitingen voor de wasmachine.

Tuin
De voortuin is gelegen op het oosten en grotendeels betegeld met marmeren tegels, gecombineerd met beplanting langs de berging. Er is genoeg ruimte om een gezellige zithoek te creëren, waar u heerlijk beschut kunt zitten en in alle rust van een kopje koffie of thee kunt genieten.

De onderhoudsvriendelijke achtertuin is gelegen op het westen en is verzorgd en speels aangelegd met een combinatie van bestrating en een gazon. Dit zorgt voor een speels en levendig geheel. Direct aan de achtergevel bevindt zich een terras met zonnescherm, waar u optimaal kunt genieten van de middag- en avondzon. De tuin is rondom voorzien van verlichting, wat zorgt voor een sfeervol geheel in de avonduren. Achter in de tuin staat een houten berging en is een tweede zit plek gecreëerd. Daarnaast beschikt de tuin over een achterom met poortdeur.

Bijzonderheden
-	Keukenraam aan de voorzijde voorzien van kunststof kozijnen met triple glas en rolluik
-	Overige ramen voorzien van HR++ beglazing
-	Uitbouw voorzien van nieuwe bitumen laag (2022)
-	Buitenschilderwerk uitgevoerd in 2022
-	Achterpui op de verdieping (slaapkamer/badkamer) vernieuwd in oktober 2024
-	Rolluiken op de eerste verdieping aan voor- en achterzijde en bij de keuken
-	Vloer aan de onderzijde geïsoleerd
-	Glasvezelaansluiting aanwezig
-	Gevels aan buitenzijde geïsoleerd met tempex platen en Keralit gevelpanelen
-	Zowel de voor- als achtertuin zijn voorzien van een waterkraan
-	Vergunning aanwezig voor een dakopbouw

DISCLAIMER
Voor onze koopakte gelden de standaard NVM-regels. In alle overeenkomsten bedraagt de waarborgsom/bankgarantie 10% van de koopsom en deze wordt voldaan aan de notaris.

Deze projectinformatie mag niet worden beschouwd als een aanbieding of offerte en wordt verstrekt onder voorbehoud van goedkeuring door verkoper. Wij kunnen geen aansprakelijkheid aanvaarden voor de door ons samengestelde gegevens. Deze informatie, eventuele gesprekken, onderhandelingen etc. zijn alle vrijblijvend. Er is pas overeenstemming bereikt op het moment dat de door Rien Treur Makelaardij opgestelde koopovereenkomst door beide partijen is beoordeeld en ondertekend. Tot dat moment hebben partijen het recht om af te zien van een transactie, zonder kostenvergoeding etc. Alle genoemde maten zijn indicatief, er kunnen geen rechten aan worden ontleend.

Kenmerken