Beschrijving

Een object met mogelijkheden!

Aan de Nieuwstraat 42 in Bodegraven bieden wij een voormalig kaaspakhuis te koop aan, dat zich kenmerkt door een bijzonder fraaie gevel. Het pand is rechthoekig van vorm, heeft drie bouwlagen en een zadeldak. Aan de achterzijde beschikt het pand over een geheel bestraatte plaats. Zowel aan de voor- als achterzijde zijn deuropeningen en ramen aanwezig.

Volgens de Basis Administratie Gebouwen (BAG) is het pand in 1895 gebouwd als kaaspakhuis. Het wordt leeg en ontruimd opgeleverd, met behoud van de bestaande staanders, maar zonder de kaasplanken. De begane grond heeft een betonnen vloer, terwijl de verdiepings-vloeren van hout zijn.

Op dit moment heeft het gebouw de bestemming: “bedrijf”; hier mogen zich bedrijven vestigen indien deze behoren tot de categorieën 1 en/of 2 als opgenomen in de staat van bedrijfsactiviteiten en uitsluitend voor zover deze in de kolom ‘verkeer’ een ‘1’scoren, tevens met de nadere aanduiding voor een groothandel in vlees, vleeswaren, zuivelproducten, eisen en spijsoliën en de nadere aanduiding; waarde – monument. 

De gemeente heeft in het bestemmingsplan regels opgenomen die de mogelijkheid bieden om in dit monumentale pand een zelfstandige wooneenheid toe te staan. (Zie verderop: Omgevingsvergunning voor het realiseren van een zelfstandige wooneenheid in een monumentaal object.)

Entree
Via de openbare weg bereikt u de dubbele voordeur van het pand, vanwaar u direct het kaaspakhuis binnenkomt.

Begane grond
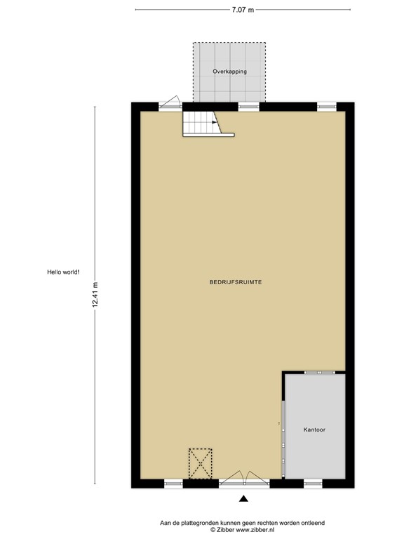
Aan de voorzijde van het pand bevindt zich de ruimte die wordt gebruikt als kaaspakhuis. Aan de rechterzijde vindt u een eenvoudig kantoor, waar ook de gasmeter is geplaatst. Aan de linkerzijde is een speciale kaaslift geïnstalleerd, met daarnaast de meter voor de elektra-aansluiting. Aan de zijgevel zit een waterkraan. De begane grond wordt momenteel gebruikt voor de opslag van kaas. Via de achterzijde bereikt u een trap naar de eerste verdieping, evenals een loopdeur naar de geheel bestraatte achterplaats. Er is geen recht van overpad via het buurperceel naar de Nieuwstraat. Zowel de voor- als achtergevel zijn voorzien van ramen met enkel glas en roedeverdeling. De ramen, deuren en kozijnen zijn van hout. De hoogte onder de hoofdbalk is ca. 2,60 meter, en onder het vloerhout ca. 3 meter.

Eerste verdieping
Via de trap bereikt u de eerste verdieping, die eveneens in gebruik is als kaaspakhuis. De ruimte heeft ramen met roedeverdeling in de voor- en achtergevel, en in de voorgevel bevindt zich een deur. De hoogte onder de hoofdbalk is ca. 2 meter, en onder het vloerhout ca. 2,35 meter.

Tweede verdieping
Via de trap bereikt u de eerste verdieping, die eveneens in gebruik is als kaaspakhuis. De ruimte heeft ramen met roedeverdeling in de voor- en achtergevel, en in de voorgevel bevindt zich een deur. De hoogte onder de hoofdbalk is ca. 2 meter, en onder het vloerhout ca. 2,35 meter.

Algemene informatie
Het voormalig kaaspakhuis ligt nabij het centrum van Bodegraven, op loopafstand van diverse winkels en restaurants. Het station van Bodegraven is eveneens op korte afstand bereikbaar, en vanuit hier bereikt u in slechts twintig minuten steden als Utrecht of Leiden met de trein. Daarnaast ligt het pand op een korte afstand van de A12 en de N11, waardoor de grote omliggende steden goed bereikbaar zijn.

Bijzonderheden:
•	10.4% overdrachtsbelasting
•	Monumentaal pand
•	Een object met veel mogelijkheden
•	Parkeren in de omgeving is mogelijk
•	Vloeroppervlakte ca. 225 m2 
•	Aansluiting voor gas, elektra en water zijn aanwezig
•	De airco’s aan de achtergevel blijven achter, maar zijn defect

Omgevingsvergunning voor toevoeging zelfstandige wooneenheid in monumentaal object

Het bevoegd gezag kan met een omgevingsvergunning afwijken van het bepaalde artikel 22.1 t/m 22.3, teneinde de toevoeging van een zelfstandige wooneenheid in een gebouw met een cultuurhistorische waarde toe te staan, met inachtneming van het volgende:

a.	voorafgaand aan de verlening van de omgevingsvergunning schriftelijk advies bij de Erfgoedcommissie van de 
        gemeente Bodegraven-Reeuwijk is ingewonnen of wanneer het initiatief betrekking heeft op een Rijksmonument schriftelijk advies is ingewonnen bij de Rijksdienst voor het Cultureel Erfgoed;
b.	in de objecten opgenomen in Bijlage 2 Objecten binnen het winkelgebied van Bodegraven centrum – is het niet toegestaan wooneenheden op de begane grond te realiseren die georiënteerd zijn op de straatzijde;
c.	de wijziging wordt uitsluitend toegepast indien de zelfstandige wooneenheid bijdraagt aan het behoud of verbetering van het oorspronkelijke en cultuurhistorische waardevolle karakter van de bebouwing;
d.	na toevoeging van een zelfstandige wooneenheid, voor zover gelegen buiten de bebouwde kom, bedraagt het aantal wooneenheden maximaal 2 met uitzondering van de percelen waar een zomerhuis aanwezig is; in die gevallen bedraagt het aantal zelfstandige wooneenheden, maximaal 3, waarbij het 
        zomerhuis 1 zelfstandige wooneenheid bevat;
e.	het hergebruik dient plaats te vinden binnen het bestaande bouwvolume: het uitwendige karakter van het hoofdgebouw en het zomerhuis- zoals dit bepaald is door hoofdafmetingen, onderlinge maatverhoudingen, dakvorm en nokrichting - dient behouden te blijven;
f.	de inpandige verbouwingen die noodzakelijk zijn voor het hergebruik mogen geen afbreuk doen aan de cultuurhistorische waarde van het bouwwerk;
g.	in het geval van woningsplitsing van het hoofdgebouw dient het dak afgedekt te blijven met één aaneengesloten dak;
h.	de toevoeging van een zelfstandige wooneenheid mag niet leiden tot beperkingen voor omliggende (agrarische) bedrijven (dit betreft zowel de bestaande bedrijfsvoering als de uitbreidings- en ontwikkelingsmogelijkheden);
i.	er is sprake van voldoende parkeergelegenheid;
j.	ter plaatse van de nieuwe woning(en) dient sprake te zijn van een aanvaardbaar woon- en leefklimaat.

DISCLAIMER
Voor onze koopakte gelden de standaard NVM-regels. In alle overeenkomsten bedraagt de waarborgsom/bankgarantie 10% van de koopsom en deze wordt voldaan aan de notaris.

Deze projectinformatie mag niet worden beschouwd als een aanbieding of offerte en wordt verstrekt onder voorbehoud van goedkeuring door verkoper. Wij kunnen geen aansprakelijkheid aanvaarden voor de door ons samengestelde gegevens. Deze informatie, eventuele gesprekken, onderhandelingen etc. zijn alle vrijblijvend. Er is pas overeenstemming bereikt op het moment dat de door Rien Treur Makelaardij opgestelde koopovereenkomst door beide partijen is beoordeeld en ondertekend. Tot dat moment hebben partijen het recht om af te zien van een transactie, zonder kostenvergoeding etc. Alle genoemde maten zijn indicatief, er kunnen geen rechte

Kenmerken