Beschrijving

Ontdek de perfecte combinatie van werk en wonen! Dit bedrijfspand met bijbehorende bedrijfswoning is gelegen in het buitengebied van Woerden aan de rand van het bedrijventerrein ‘Snel en Polanen’, direct aan de A12. Deze unieke combinatie biedt uitstekende toegankelijkheid en een ideale balans tussen zakelijk en privé.

Deze ruime, vrijstaande bedrijfswoning met bedrijfshal is gelegen op een perceel grond van ca. 1.768 m2. De bedrijfswoning en de bedrijfshal zijn aan elkaar verbonden, maar hebben ook ieder een eigen ontsluiting. De bedrijfshal is toegankelijk vanaf de M.A. Reinaldaweg 10 te Woerden en de woning is toegankelijk vanaf de Polanerzandweg 5 te Woerden.

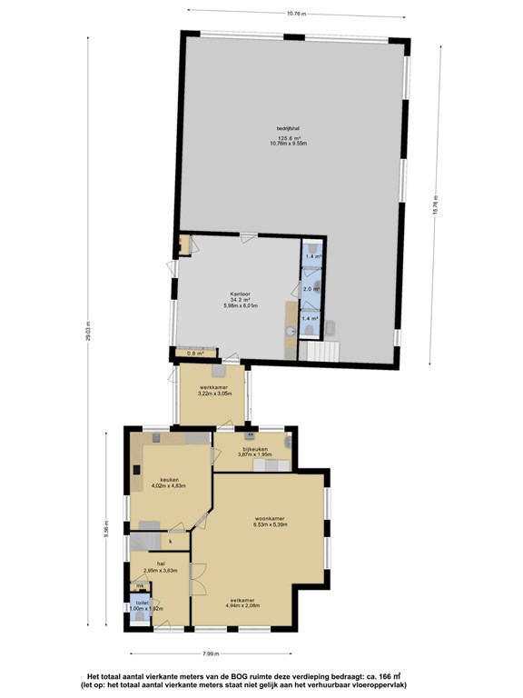
De bedrijfswoning is ruim van opzet en geeft u op de begane grond de beschikking over een ruime woon-/eetkamer, een gesloten woonkeuken met aansluitend de bijkeuken en een werkkamer. Vanuit de werkkamer heeft u toegang tot de aangebouwde bedrijfshal en komt u binnen in de kantoorruimte, voorzien van pantry. Achter de kantoorruimte is een grote loods gelegen.

Op de verdiepingen heeft de woning zes slaapkamers en een badkamer.
De bedrijfshal heeft op de verdieping de beschikking over een kantoorruimte, een archiefruimte en een bergruimte.

Zowel de bedrijfswoning als de bedrijfshal zijn in het bestemmingsplan landelijk gebied Woerden, Kamerik en Zegveld gelegen en heeft de bestemming Bedrijfsdoeleinden met de nadere functie aanduiding “ Bergingsbedrijf” met maximaal toegestaan oppervlakte gebouwen van 200 m2. Burgemeester en wethouders zijn bevoegd vrijstelling te verlenen voor een ander soort bedrijf. 

Woerden staat bekend om zijn dynamische zakelijke omgeving, rijke geschiedenis en groene omgeving. Dit pand combineert functionele efficiëntie met een aangename werkomgeving en een comfortabele woonruimte, perfect voor ondernemers die het beste van beide willen combineren.

Entree
Vanaf de Polanerzandweg rijdt u de oprit op bij de woning, waar u uw auto of fiets naast de woning parkeert. U loopt naar de voorzijde van de woning, waar u de woning betreedt via de voordeur. Hier komt u binnen in een ruime hal met toegang tot het toilet met fontein, de meterkast, de trapopgang naar de verdiepingen en de woonkamer.

Woonkamer & keuken
De woonkamer is via openslaande deuren vanuit de hal bereikbaar. Dit is een heerlijk ruime, lichte ruimte die uitnodigt tot ontspanning en gezelligheid. In de woonkamer is voldoende plaats om een royale zithoek te plaatsen en er is voldoende ruimte om een eethoek te creëren en een grote eettafel te plaatsen. De openslaande deuren geven toegang tot het terras.

Grenzend aan de woonkamer vindt u de gesloten woonkeuken, uitgerust met een praktische L-opstelling. Deze moderne keuken beschikt over een 6-pits gaskookplaat, een afzuigkap, een vaatwasser, een Quooker, een magnetron, een oven en een koelkast. Alles wat u nodig heeft om culinair aan de slag te gaan! In de keuken is voldoende ruimte om een eettafel te plaatsen.

Vanuit de keuken loopt u door naar de bijkeuken, waar de cv-ketel en de wasmachine-aansluiting zich bevinden. De bijkeuken biedt bovendien toegang tot een kantoorruimte (voorzien van een screen) en de achtergelegen bedrijfsruimte. Deze veelzijdige ruimtes maken het huis perfect geschikt voor zowel woon- als werkdoeleinden.

Eerste verdieping
Via de vaste trap komt u op de overloop die toegang biedt tot vier ruime slaapkamers, een trapkast, een vaste kast, een badkamer en een separaat toilet.

Aan de voorzijde van de woning bevinden zich de eerste twee slaapkamers, beide voorzien van een charmant Frans balkon met screens. Aan de achterzijde van de woning vindt u de masterbedroom, compleet met een vaste inbouwkast. Direct naast de masterbedroom ligt de luxe badkamer.

De badkamer is een royale, geheel betegelde ruimte, uitgerust met een dubbele wastafel, een douche en een ligbad. Voor extra gemak is er naast de badkamer een separaat toilet met fontein. 

De vierde slaapkamer is gelegen aan de tuinzijde.

Tweede verdieping
Via de vaste trap komt u op de overloop van de tweede verdieping met toegang tot twee slaapkamers. 

De eerste slaapkamer is voorzien van een vaste schuifkast, ideaal voor al uw opbergbehoeften. Beide kamers zijn uitgerust met een handig knieschot met een luik, wat extra bergruimte creëert en het geheel een knusse, efficiënte indeling geeft.

Tuin
Aan de rechterzijde van de woning is een terras gelegen, waar u heerlijk beschut kunt zitten. Het terras is op het zuiden gelegen, wat een ideale ligging is bij zonnig weer. Naast de woning en de hal is er voldoende mogelijkheid om uw auto te parkeren. 

Aan de linkerkant van de woning staat een berging, waar u uw fietsen kunt stallen. Aan deze zijde van de woning heeft u tevens toegang tot het kantoor van de bedrijfshal en kunt u tevens langs de bedrijfshal lopen om aan de voorzijde van de bedrijfshal te komen. 

Bedrijfsruimte
Achter de woning staat een ruime loods, die vanuit de woning en vanaf de M.A. Reinaldaweg 10 te Woerden bereikbaar is. De loods heeft een groot buitenterrein met een aparte toegang. De loods is bereikbaar via de woning via de werkkamer en vanaf het voorterrein via twee grote overheaddeuren en via twee loopdeuren.  

Aan de voorzijde van de loods treft u een grote bedrijfshal van circa. 126 m2. Vanuit de bedrijfshal heeft u toegang tot een ruime kantoorruimte van circa 34 m2 voorzien van pantry en met toegang tot de toiletten.
Vanuit de hal heeft u via de vaste trap toegang tot de verdieping, waar u via de hal toegang hebt tot een archiefruimte en een kantoorruimte van circa 12 m2. Vanuit de kantoorruimte heeft u toegang tot de bergruimte met open balustrade. Vanaf deze ruimte heeft u uitzicht op de hal.

Bijzonderheden
•	De meeste ramen van de bedrijfswoning zijn voorzien van horren
•	De ramen aan de voorzijde op de begane grond, de Franse balkons zijn voorzien van screens 
•	De openslaande deuren zijn voorzien van een knikarmscherm 
•	Velux dakramen voorzien van rolluiken
•	Alle zonwering is elektrisch bedienbaar 
•	24 zonnepanelen op het dak van de bedrijfshal t.b.v. de bedrijfswoning 
•	In 2021 is het bedrijfspand volledig voorzien van ledverlichting en aluminium kozijnen met HR++ glas 
•	De bedrijfsruimte (loods en kantoor) is voorzien van een elektronische inbraakbeveiliging
•	De moderne elektrische verdeelinrichting in de meterkast is tevens voorzien van 3 krachtstroom groepen. 
•	Flexibele ruimte voor kantoor, opslag of productie
•	Woonhuis en bedrijfsruimte hebben een eigen adres, een eigen meterkast en een eigen aansluiting
•	Uitstekende Bereikbaarheid: Directe toegang tot snelwegen en openbaar vervoer
•	Ruime, goed onderhouden woonruimte met alle moderne gemakken
•	Ideale scheiding tussen werk- en privéruimtes voor optimale productiviteit en comfort
•	Gelegen in een groene, rustige omgeving, perfect voor ontspanning na een werkdag
•	Op het buitenterrein is een wasplaats/vloeistofdichte vloer met olie-vet afscheider aanwezig

DISCLAIMER
Voor onze koopakte gelden de standaard NVM-regels. In alle overeenkomsten bedraagt de waarborgsom/bankgarantie 10% van de koopsom en deze wordt voldaan aan de notaris.

Deze projectinformatie mag niet worden beschouwd als een aanbieding of offerte en wordt verstrekt onder voorbehoud van goedkeuring door verkoper. Wij kunnen geen aansprakelijkheid aanvaarden voor de door ons samengestelde gegevens. Deze informatie, eventuele gesprekken, onderhandelingen etc. zijn alle vrijblijvend. Er is pas overeenstemming bereikt op het moment dat de door Rien Treur Makelaardij opgestelde koopovereenkomst door beide partijen is beoordeeld en ondertekend. Tot dat moment hebben partijen het recht om af te zien van een transactie, zonder kostenvergoeding etc. Alle genoemde maten zijn indicatief, er kunnen geen rechten aan worden ontleend.

Kenmerken