Beschrijving

Een bijzondere uitdaging!

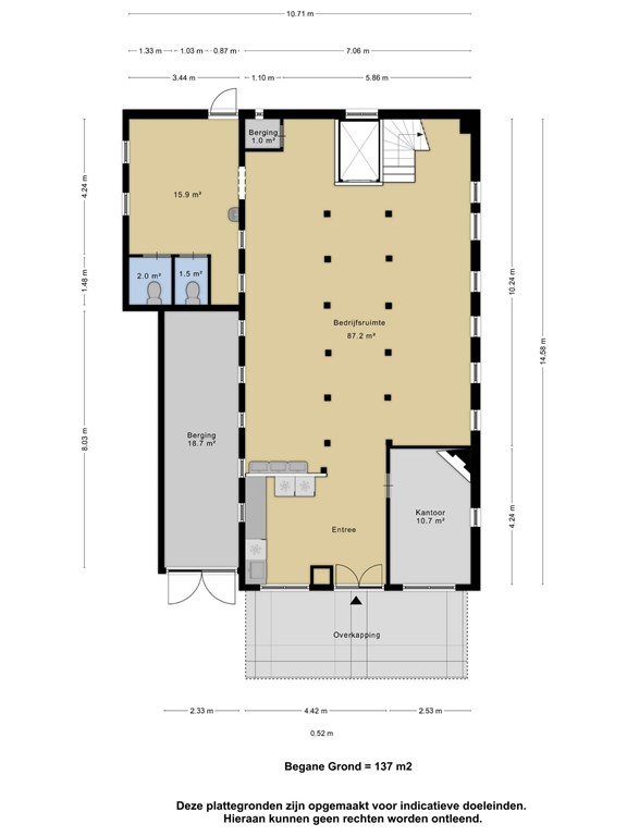
Dit is een object vol mogelijkheden! Gelegen aan de Gedempte Binnengracht 23 in Woerden bieden wij een voormalig kaaspakhuis met een prachtige gevel te koop aan. Het pand heeft een rechthoekige vorm en aan de noordzijde is een eenvoudige aanbouw toegevoegd, die momenteel als garage fungeert. Achter de garage vindt u een ruimte met de toiletten en de achterdeur.

Het pand werd oorspronkelijk gebouwd als kaaspakhuis en staat op dit moment leeg. De begane grond heeft een betonnen vloer en de verdiepingsvloeren zijn van hout. De kaasplanken zijn verwijderd, maar de karakteristieke staanders zijn nog steeds aanwezig en blijven achter. 

Op dit moment heeft het gebouw de bestemming: “Bedrijf”; hier mogen zich bedrijven vestigen indien deze behoren tot de categorieën 1 en/of 2 als opgenomen in de staat van bedrijfsactiviteiten. De bedrijfsruimte is ook opgenomen in het Monumenten inventarisatie boekwerk Provincie Utrecht (MIP) als beeld ondersteunend. 

De eigenaar heeft een principe verzoek ingediend bij de gemeente Woerden met het verzoek of de gemeente bereid is mee te werken aan een wijziging van het bestemmingsplan naar Wonen. Op 14 januari 2025 heeft de gemeente Woerden beantwoord dat het verzoek als wenselijk wordt gezien, als er voldaan worden aan een aantal nader toegelichte voorwaarden. Vraag de makelaar naar de mogelijkheden en de inhoud van het antwoord op het principe verzoek. 

Om een idee te geven van de mogelijkheden om dit pand om te toveren tot een woning, hebben we een artist impression toegevoegd van een mogelijke woonkamer en keuken. Hiermee hopen we een duidelijk beeld te schetsen van de potentie van het pand. Uiteraard is er op de verdiepingen voldoende ruimte om één of meerdere slaapkamers te creëren.

Entree
Via de openbare weg bereikt u de voordeur van het pand, waarmee u direct het kaaspakhuis betreedt. Voor het pand heeft u ruime parkeermogelijkheden op eigen grond, en daarnaast biedt de garage naast het pand plaats voor twee auto’s.

Begane grond
Bij binnenkomst vindt u aan de voorzijde het kaaspakhuis. Aan de linkerzijde bevindt zich de meterkast en een eenvoudige keuken en aan de rechterzijde is een kantoor ingericht met laminaatvloer en veel daglichttoetreding. De ruimte zelf is leeg, maar de originele staanders, die ooit de kaasplanken ondersteunden, zijn nog aanwezig als onderdeel van de constructie. 

Achterin het pakhuis bevindt zich een goederenlift, die momenteel buiten gebruik is. Links achterin de ruimte vindt u een voorraadkast en de doorgang naar de uitbouw, waar twee toiletten en een spoelbak te vinden zijn. Hier is ook de achterdeur, die toegang biedt tot de achterliggende steeg en de Van Loonstraat. Aan de rechterzijde van de lift vindt u de trap naar de eerste verdieping.

Eerste verdieping
De trap leidt naar de eerste verdieping, die eveneens een open ruimte herbergt, voorheen in gebruik als pakhuis. Hier vindt u de liftschacht en een gesloten kast waar de opstelling van de cv-ketel (Nefit) is ondergebracht. Bij de lift is er een vaste trap die toegang biedt tot de zolderverdieping.

Tweede verdieping
De zolderverdieping werd eveneens gebruikt voor de opslag van kaas en is nog steeds voorzien van de originele staanders en de liftschacht. De nok van het dak bevindt zich op een hoogte van ongeveer 2,92 meter, terwijl de doorloophoogte onder de spanten circa 1,78 meter is. Het dak is van binnenuit geïsoleerd.

Algemene informatie
Het voormalig pakhuis ligt direct in het centrum van Woerden binnen de singel, nabij diverse winkels en restaurants. Het centrum van Woerden is op loopafstand bereikbaar en ook het station is op enkele fietsminuten bereikbaar vanuit hier bent u met de trein in twintig minuten in Utrecht of Leiden. Tevens is het pand gelegen op korte afstand van de A-12. De grote omliggende steden zijn daardoor goed bereikbaar. 

Bijzonderheden:
•	MIP pand met één ster
•	Een object met veel mogelijkheden
•	Parkeren op eigen grond is mogelijk, betaald parkeren in de omgeving
•	Vloeroppervlakte ca. 216 m2 
•	Aansluiting voor gas, elektra en water zijn aanwezig
•	Er zijn twee artist impressions toegevoegd om een beeld te schetsen van de mogelijkheden het pand om te bouwen tot woning

DISCLAIMER
Voor onze koopakte gelden de standaard NVM-regels. In alle overeenkomsten bedraagt de waarborgsom/bankgarantie 10% van de koopsom en deze wordt voldaan aan de notaris.

Deze projectinformatie mag niet worden beschouwd als een aanbieding of offerte en wordt verstrekt onder voorbehoud van goedkeuring door verkoper. Wij kunnen geen aansprakelijkheid aanvaarden voor de door ons samengestelde gegevens. Deze informatie, eventuele gesprekken, onderhandelingen etc. zijn alle vrijblijvend. Er is pas overeenstemming bereikt op het moment dat de door Rien Treur Makelaardij opgestelde koopovereenkomst door beide partijen is beoordeeld en ondertekend. Tot dat moment hebben partijen het recht om af te zien van een transactie, zonder kostenvergoeding etc. Alle genoemde maten zijn indicatief, er kunnen geen rechten aan worden ontleend.

Kenmerken