Beschrijving

Barwoutswaarder 17a en Kuipersweg 2r te Woerden

Wilt u wonen en werken combineren? Dan is dit een prachtige kans om op bedrijventerrein ‘Barwoutswaarder’ in Woerden, deze vrijstaande bedrijfswoning met aangebouwde bedrijfshal te betrekken!

Op bedrijventerrein ‘Barwoutswaarder’ aan de rand van Woerden staat deze ruime bedrijfswoning met aangebouwde en luxe bedrijfsruimte. Op het bedrijventerrein zijn diverse woningen en bedrijven gevestigd. Middels diverse uitvalswegen is deze locatie goed bereikbaar. De op- en afritten van de A12 bevinden zich op 10 minuten afstand en zorgen voor een uitstekende verbinding met de A2, A27 en A20.

Deze bedrijfswoning met bedrijfshal is in 2009 gebouwd. De bedrijfswoning heef een woonoppervlakte van circa 193 m2 en is gelegen op een perceel grond van circa 605 m2. De bedrijfshal heeft een oppervlakte van circa 181 m2. 

Het is mogelijk meerdere auto’s te parkeren op eigen terrein voor of achter de bedrijfshal. 

In de woning krijgt u op de begane grond de beschikking over een ruime woon-/eetkamer met open keuken en bijkeuken. Op de eerste verdieping krijgt u de beschikking over vier slaapkamers, een badkamer en separaat toilet en op de tweede verdieping krijgt u de beschikking over een ruime slaapkamer, badkamer en dakterras. De woning is voorzien van veel leef- en bergruimte.

De bedrijfsruimte is op de begane grond is voorzien van een entreeruimte met toilet, pantry, berging/archiefruimte en een bedrijfshal. Op de verdieping is de bedrijfsruimte voorzien van een kantoortuin en vergaderruimte.

Bestemmingsplan
De locatie van de bedrijfswoning en de bedrijfsruimte ligt in het bestemmingsplan ‘Barwoutswaarder, Polanen en Putkop’, vastgesteld op 29 november 2012 en heeft de bestemming ‘bedrijventerrein met de functieaanduiding bedrijfswoning, waarde - Archeologie 4’. maximale bouwhoogte 10 meter. Hier mogen zich bedrijven vestigen tot en met categorie 2 voorkomend op de lijst behorend bij het bestemmingsplan.

Entree
U parkeert uw auto op de oprit voor de bedrijfshal aan de Kuiperweg 2r te Woerden of achter de bedrijfshal. De entree van de woning is bereikbaar via de voortuin. Bij de voordeur staat u droog onder de overkapping voorzien van lichtkoepel.

U betreedt de woning en komt binnen in de ruime hal met toilet, meterkast, de trapopgang naar de verdiepingen en toegang tot de woonkamer en keuken.

Woonkamer & keuken
De woonkamer ligt aan de voorzijde van de woning en biedt voldoende ruimte om een zithoek te plaatsen. De woonkamer is ruim van opzet en biedt veel daglicht door de grote ramen in zowel de voor- als zijgevel. Tussen de woonkamer en keuken in is voldoende ruimte om een eettafel te plaatsen, die in verbinding staat met de keuken.

De modern ingerichte keuken is voorzien van een kookeiland met een inductiekookplaat en een magnetron en oven. De afzuigkap is in het verlaagde plafond weggewerkt, net als een aantal inbouwspots, wat voor een gezellige sfeer zorgt. Tegenover het kookeiland is een vaste kastenwand met de koelkast en vriezer geplaatst met daarnaast een aanrecht met spoelbak en vaatwasser.

Vanuit de keuken heeft u toegang tot de achtertuin en tot de bijkeuken. Vanuit de bijkeuken heeft u toegang tot het bedrijfsgebouw.

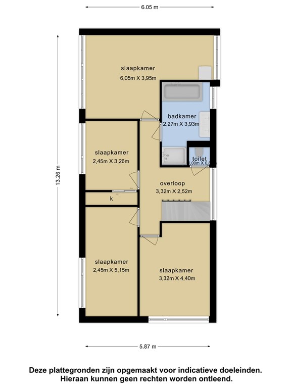
Eerste verdieping
Via de vaste trap komt u op de overloop van de eerste verdieping met toegang tot een separaat toilet, vier slaapkamers en een badkamer.

De slaapkamer aan de achterzijde is ruim van opzet, heeft veel daglicht doordat er ramen aan beide zijden van de kamer aanwezig zijn en is voorzien van een pantry met oven en afzuigkap. Tegenover de pantry is een kleine bar gecreëerd. 

Aan de voorzijde van de woning zijn ook twee ruime slaapkamers gelegen en de vierde slaapkamer ligt in het midden aan de zijgevel. Deze laatste kamer is voorzien van een vaste kast. 

De geheel betegelde badkamer is voorzien van een inloopdouche, een wastafelmeubel met dubbele kraan, een ligbad en een designradiator.

Tweede verdieping
Via de vaste trap komt u op de overloop van de tweede verdieping, vanwaar u toegang heeft tot de cv-kast met opstelplaats van de CV en MV, de badkamer, een slaapkamer en het dakterras.

De ruime slaapkamer is circa 21,5 m2 groot en aan één zijde voorzien van een vaste kast onder het raam. Deze kamer is aan drie zijden voorzien van ramen, waardoor er veel daglicht naar binnen komt. 

De badkamer is voorzien van douchecabine en wastafel.

Het dakterras is circa 43 m2 groot en ligt op het zuiden. Bij zonnig weer is het dus heerlijk vertoeven op dit terras.

Tuin
De keurig aangelegde tuin is voor- en naast de woning gelegen en in zijn geheel omringd door een groene haag. Ter hoogte van de keuken is een vlonder geplaatst, waar u een eethoek kunt plaatsen, zodat deze in verbinding staat met de keuken. Verder is de tuin speels aangelegd, gedeeltelijk voorzien van antraciet grind, wat overloopt in een gazon met een rechthoekige vijver, plantenborders, een tweede vlonder en diverse bomen. Het geheel ziet er keurig en verzorgd uit en biedt voldoende mogelijkheid om een lekker plekje in de schaduw of de zon te vinden. De tuin ligt op het noordoosten. 

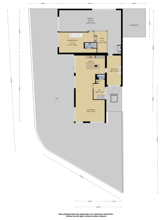
Bedrijfsruimte
De bedrijfsruimte is via de bijkeuken in de woning bereikbaar, maar heeft ook een eigen oprit aan de Kuipersweg 2r te Woerden. U rijdt de oprit op en parkeert uw auto voor de bedrijfshal. 

Via de entree komt u in de ruime hal, vanwaar u toegang heeft tot de toiletruimte, de panty, een berging/archiefruimte, de bedrijfshal en de vaste trap met toegang tot de verdieping.

De bedrijfshal is ruim van opzet, circa 64 m2 groot en bereikbaar vanuit de bijkeuken en via een overheaddeur aan de zij- en aan de voorgevel van het pand. In de bedrijfshal is de meterkast met cv-ketel aanwezig.

Via de vaste trap in de hal komt u direct in de open kantoorruimte met vide. De kantoorruimte is ruim van opzet en is momenteel in gebruik als kantoortuin met vier werkplekken. De ruimte beschikt over een vaste inbouwkast. Via een schuifdeur heeft u toegang tot een vergaderruimte. Beide ruimtes zijn voorzien van een airco.

Bijzonderheden
•	Luxe uitgevoerde woning met bedrijfs- en kantoorruimte
•	54 zonnepanelen
•	4 parkeerplaatsen op eigen grond
•	Gelegen op industrieterrein ‘Barwoutswaarder’
•	Veel leef- en bergruimte aanwezig
•	Energielabel woning				A
•	Energielabel kantoorruimte			A+++

DISCLAIMER
Voor onze koopakte gelden de standaard NVM-regels. In alle overeenkomsten bedraagt de waarborgsom/bankgarantie 10% van de koopsom en deze wordt voldaan aan de notaris.

Deze projectinformatie mag niet worden beschouwd als een aanbieding of offerte en wordt verstrekt onder voorbehoud van goedkeuring door verkoper. Wij kunnen geen aansprakelijkheid aanvaarden voor de door ons samengestelde gegevens. Deze informatie, eventuele gesprekken, onderhandelingen etc. zijn alle vrijblijvend. Er is pas overeenstemming bereikt op het moment dat de door Rien Treur Makelaardij opgestelde koopovereenkomst door beide partijen is beoordeeld en ondertekend. Tot dat moment hebben partijen het recht om af te zien van een transactie, zonder kostenvergoeding etc. Alle genoemde maten zijn indicatief, er kunnen geen rechten aan worden ontleend.

Kenmerken