Beschrijving

Modern en representatief kantoorpand met zes eigen parkeerplaatsen op goede locatie in Woerden

Dit moderne en uitstekend onderhouden kantoorpand is gelegen aan de Barwoutswaarder 3h te Woerden. Het object is momenteel in gebruik als kantoorruimte en is daarnaast zeer geschikt voor bijvoorbeeld praktijk- of dienstverlenend gebruik. Het pand beschikt over zes parkeerplaatsen op eigen terrein, is verdeeld over twee bouwlagen en is voorzien van alle hedendaagse faciliteiten zoals verwarming, airconditioning en uitgebreide netwerkbekabeling.

Verder is het kantoorpand voorzien van een representatieve ontvangstruimte en een kantine op de begane grond en vijf afzonderlijke kantoorruimten, verdeeld over twee verdiepingen.

Bestemming
Het object is gelegen binnen het bestemmingsplan “Bedrijventerrein Barwoutswaarder, Polanen en Putkop”, vastgesteld op 29 november 2012, en heeft de bestemming “Bedrijventerrein”.
Binnen deze bestemming zijn bedrijven toegestaan tot en met categorie 2 van de bijbehorende Staat van Bedrijfsactiviteiten, alsmede kantoren ondergeschikt aan de bedrijfsfunctie en productiegebonden detailhandel, eveneens ondergeschikt aan de bedrijfsfunctie.

Gemeentelijke informatie over Woerden
Woerden is een stad met een rijke historie en een sterke regionale functie, centraal gelegen in het Groene Hart. De gemeente Woerden omvat tevens de dorpskernen Kamerik, Harmelen en Zegveld. Dankzij haar centrale ligging en goede voorzieningen is Woerden een aantrekkelijke vestigingsplaats voor ondernemers.

De stad is uitstekend bereikbaar, zowel met de auto als met het openbaar vervoer. Woerden ligt direct aan Rijksweg A12 en beschikt over een NS-station met rechtstreekse treinverbindingen naar onder andere Utrecht, Amsterdam, Den Haag en Rotterdam.

Ligging
Het object is gelegen op het bedrijventerrein “Barwoutswaarder”, aan de rand van Woerden. Dit bedrijventerrein kenmerkt zich door een mix van kleinschalige en middelgrote bedrijven, voornamelijk actief in opslag, productie en dienstverlening.

De locatie is uitstekend bereikbaar en ligt op korte afstand van de op- en afritten van de A12, wat zorgt voor een snelle verbinding met de Randstad.

Entree
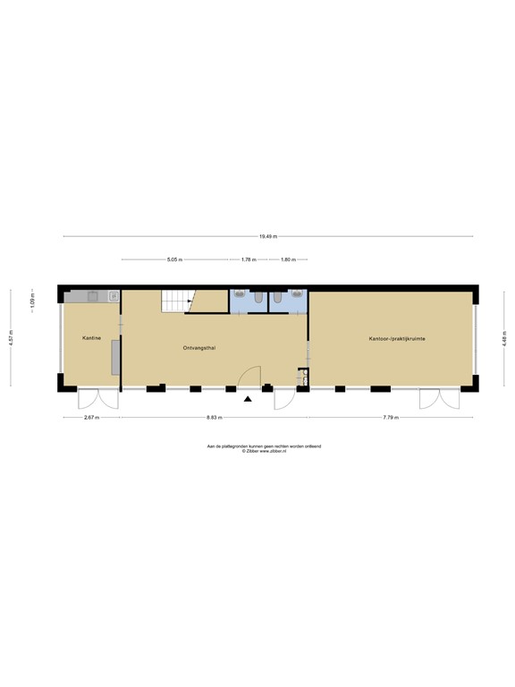
U parkeert uw auto op één van de zes parkeerplaatsen voor het gebouw en betreedt het pand via de centrale entree. Vanuit hier komt u in een ruime en lichte ontvangstruimte met toegang tot twee toiletruimten, de meterkast en de vaste trap naar de verdieping. Vanuit de ontvangsthal heeft u tevens toegang tot een kantoorruimte op de begane grond en de kantine.


Begane grond
Aan de linkerzijde van de ontvangstruimte bevindt zich de kantine, voorzien van pantry en via twee openslaande deuren direct verbonden met de voorzijde van het pand.

Aan de andere zijde is een moderne ruimte van circa 35 m², ideaal te gebruiken als kantoor, spreekkamer of showroom. Deze ruimte beschikt over veel daglicht en eveneens twee openslaande deuren, wat zorgt voor een prettige en representatieve uitstraling.

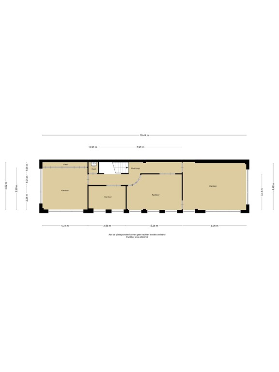
Eerste verdieping
Op de eerste verdieping bevindt zich een gang die toegang biedt tot vier afzonderlijke kantoorkamers van circa 27, 17, 17  en 8 m².

De kantoorruimte aan de linkerzijde is voorzien van een vaste kast. De twee hoekkamers beschikken over ramen in zowel de voor- als zijgevel, wat zorgt voor extra lichtinval. Vanuit de gang is tevens de cv-ruimte met mechanische ventilatie bereikbaar.

Bijzonderheden
•	Zes parkeerplaatsen op eigen terrein
•	Volledig voorzien van uitgebreide netwerk- en internetbekabeling
•	Aluminium ramen en kozijnen
•	Dubbele beglazing
•	Raambekleding en vloerbedekking aanwezig
•	Moderne en representatieve uitstraling
•	Begane grond voorzien van plavuizenvloer
•	Eerste verdieping voorzien van vloerbedekking
•	Alle ruimtes voorzien van systeemplafonds met verlichtingsarmaturen
•	Diverse ruimtes uitgerust met airconditioning

Algemene informatie
Milieu
Voor zover verhuurder bekend is de onroerende zaak niet verontreinigd op een wijze die het gebruik als bedrijfs- of kantoorpand belemmert of die heeft geleid, dan wel kan leiden, tot een saneringsverplichting.
Voor zover bekend zijn er geen ondergrondse opslagtanks voor vloeistoffen aanwezig.

Parkeren
Voor het pand zijn zes parkeerplaatsen beschikbaar op eigen terrein.

Oplevering
Beschikbaar per juli 2026.

Huurtermijn
Uitgangspunt is een huurtermijn van 5 jaar, met een verlengingsperiode van 5 jaar. Afwijkende of flexibelere huurtermijnen zijn bespreekbaar.

Servicekosten 
De nutsvoorzieningen dient huurder zelf te regelen met de nutsbedrijven. 

Betalingen
Huur en BTW dienen per maand vooruit te worden voldaan.

Btw-heffing
Uitgangspunt is BTW-belaste verhuur. Indien BTW-belaste verhuur op basis van de geldende regelgeving niet mogelijk blijkt, zal de huurprijs worden verhoogd.

Huurprijsaanpassing
Jaarlijks per 1 januari, voor het eerst op 1 januari 2027, wordt de huurprijs geïndexeerd op basis van het maandprijsindexcijfer volgens de Consumentenprijsindex (CPI), alle huishoudens (2015 = 100), zoals gepubliceerd door het CBS, met dien verstande dat dit nimmer tot een huurverlaging zal leiden.

Zekerheidstelling
Bankgarantie ter grootte van een betalingsverplichting van drie maanden huur.

Overige conditie
De huurovereenkomst zal worden opgesteld conform het standaard ROZ-model, zoals gehanteerd door de NVM (Nederlandse Vereniging van Makelaars).

DISCLAIMER
Deze projectinformatie mag niet worden beschouwd als een aanbieding of offerte en wordt verstrekt onder voorbehoud van goedkeuring door verhuurder. Wij kunnen geen aansprakelijkheid aanvaarden voor de door ons samengestelde gegevens. Deze informatie, eventuele gesprekken, onderhandelingen etc. zijn allen vrijblijvend. Er is pas overeenstemming bereikt op het moment dat de door Rien Treur Makelaardij opgestelde huurovereenkomst door beide partijen is beoordeeld en ondertekend. Tot dat moment hebben partijen het recht zonder kostenvergoeding etc. af te zien van een transactie.

Kenmerken