Beschrijving

Ruime en representatieve kantoorruimte te huur in Breukelen

Op een strategische locatie tussen Amsterdam en Utrecht, op het verzorgde bedrijventerrein aan de Keulschevaart in Breukelen, bieden wij deze ruime en functionele kantoorruimte te huur aan. Het object is gelegen op de begane grond van een kantoorgebouw en beschikt over een totaal verhuurbaar vloeroppervlak van circa 350 m². Dankzij de flexibele indeling, uitstekende bereikbaarheid en professionele uitstraling is deze kantoorruimte zeer geschikt voor diverse kantoorhoudende en dienstverlenende bedrijven.

Ligging
Het kantoorgebouw is gelegen op het bedrijventerrein Merwedeweg / Keulschevaart in Breukelen. Dit is een actief werkgebied met een gevarieerde mix van kantoren, zakelijke dienstverlening en logistieke bedrijven. De omgeving kenmerkt zich door een professionele uitstraling en biedt diverse voorzieningen in de directe nabijheid, zoals horeca- en lunchgelegenheden en zakelijke faciliteiten.

Bereikbaarheid
De bereikbaarheid van het object is uitstekend. Met de auto is de locatie binnen enkele minuten bereikbaar vanaf de A2, waardoor Amsterdam en Utrecht snel en eenvoudig te bereiken zijn. Ook met het openbaar vervoer is de ligging zeer gunstig: NS-station Breukelen bevindt zich op korte afstand en biedt frequente treinverbindingen richting onder andere Amsterdam Centraal en Utrecht Centraal. Daarnaast zijn er in de omgeving voldoende parkeermogelijkheden beschikbaar, inclusief 8 eigen parkeerplekken bij het pand.

Waarom kiezen voor deze kantoorruimte?
•	Totaal verhuurbaar vloeroppervlak van circa 350 m²
•	Circa 284 m² kantoorruimte met flexibele indelingsmogelijkheden
•	Representatieve entree en centrale hal (gezamenlijk gebruik met huurders van de bovenverdieping)
•	Gelegen op een professioneel en goed bereikbaar bedrijventerrein
•	Strategische ligging tussen Amsterdam en Utrecht
•	Geschikt voor uiteenlopende kantoor- en dienstverlenende functies
•	Inclusief 8 eigen parkeerplekken
•	Optioneel is de bovenverdieping bij te huren (vraag naar de mogelijkheden bij de makelaar)

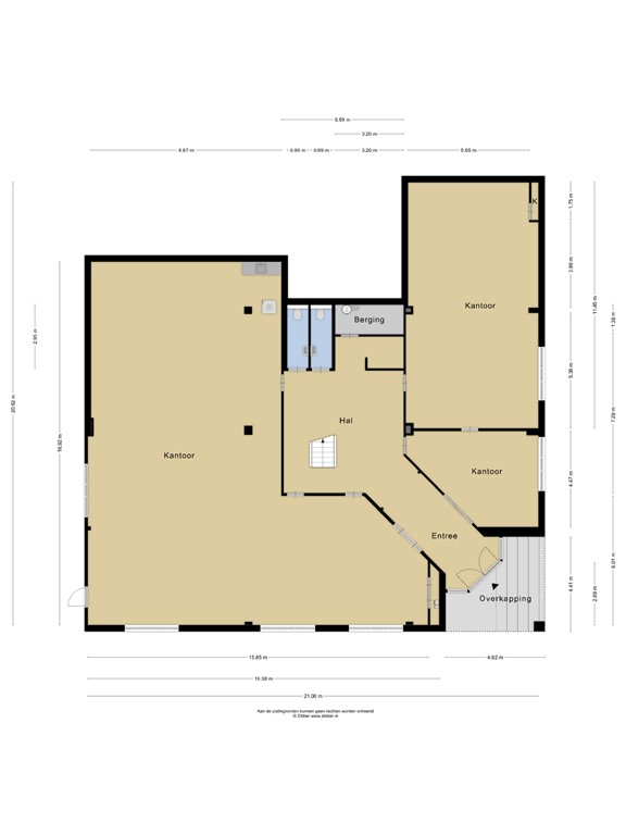
Entree en centrale hal
Via de representatieve entree betreedt u het kantoorgebouw en komt u in de centrale hal. Deze hal fungeert als verkeersruimte en vormt het hart van de begane grond. Vanuit hier is er directe toegang tot alle kantoorruimten. Tevens bevinden zich in de hal de toiletten en de facilitaire ruimte. De aanwezige trap biedt toegang tot de bovenverdieping en zorgt voor een logische en overzichtelijke routing binnen het gebouw. De entree en centrale hal bieden een professionele uitstraling en een prettige ontvangst voor medewerkers en bezoekers.

Kantoorruimtes
De kantoorruimte bestaat uit drie afzonderlijke ruimtes met een praktische en flexibele indeling, waardoor ze geschikt zijn voor diverse werkvormen. In totaal bedraagt de kantoorruimte circa 284 m², aangevuld met circa 47 m² verkeersruimte en circa 19 m² toilet- en facilitaire ruimte.

De grootste kantoorruimte heeft een oppervlakte van circa 188 m² en is bij uitstek geschikt als kantoortuin of open werkvloer. Dankzij de royale afmetingen en goede daglichttoetreding biedt deze ruimte eenvoudig plek voor meerdere werkplekken. Hier bevindt zich tevens een pantry, wat bijdraagt aan het dagelijkse comfort.

Daarnaast is er een tweede kantoorruimte van circa 69 m², ideaal in te richten als vergaderruimte, directiekantoor of separate werkplek voor een team. De derde kantoorruimte van circa 22 m² leent zich uitstekend als spreekkamer, stille werkplek of managementoffice.

De combinatie van een ruime open kantoorruimte, meerdere afzonderlijke kantoren en voldoende ondersteunende voorzieningen maakt het object zeer geschikt voor uiteenlopende organisaties. Dankzij de overzichtelijke indeling en de complete faciliteiten is de kantoorruimte direct in gebruik te nemen.

Algemene informatie

Bijzonderheden 
•	Huurbetalingen: per maand vooruit 
•	Huurtermijn: 5 (vijf) jaar met verlengingstermijnen van telkens 5 (vijf) jaar. Een kortere huurperiode is bespreekbaar.
•	Opzegtermijn: uiterlijk 12 maanden voor het aflopen van een huurtermijn

Huurprijsaanpassingen 
Jaarlijks, voor het eerst één jaar na huuringangsdatum, op basis van het consumentenprijsindexcijfer voor alle huishoudens (CPI als vastgesteld door het CBS).

Zekerheidsstelling
Afhankelijk van de financiële gegoedheid van de kandidaat, een waarborgsom ter grootte van minimaal drie maanden huur te vermeerderen met de servicekosten en de wettelijk verschuldigde B.T.W.

Servicekosten
Servicekosten nader overeen te komen.

Huurcontract 
Gebaseerd op het model kantoorruimte en andere bedrijfsruimte in de zin van artikel 7:230a BW, zoals is vastgesteld door de Raad van Onroerende Zaken (ROZ) in 2025, zoals gehanteerd door de Nederlandse Vereniging van Makelaars (NVM), met bijbehorende algemene bepalingen.

Omzetbelasting 
Uitgangspunt is B.T.W. belaste verhuur. Derhalve dient de huursom te worden vermeerderd met het van toepassing zijnde B.T.W. percentage. Indien huurder niet aan het 90% criterium voldoet, zal er van rechtswege sprake zijn van omzetbelasting vrijgestelde verhuur. Alsdan wordt de overeengekomen kale huurprijs, exclusief B.T.W. zodanig verhoogd dat het voor verhuurder ontstane nadeel volledig wordt gecompenseerd.

Disclaimer 
Voor onze huurovereenkomst gelden de standaard NVM-regels. 

Deze informatie mag niet worden beschouwd als een aanbieding of offerte en wordt verstrekt voorbehoud van goedkeuring door verhuurder. Wij kunnen geen aansprakelijkheid aanvaarden voor de door ons samengestelde gegevens. Deze informatie, eventuele gesprekken, onderhandelingen etc. zijn allen vrijblijvend. Er is overeenstemming bereikt op het moment dat de door Rien Treur Makelaardij opgestelde huurovereenkomst door beide partijen is beoordeeld en ondertekend. Tot dat moment hebben partijen het recht zonder kostenvergoeding etc. af te zien van een transactie. Alle genoemde maten zijn indicatief, er kunnen geen rechten aan worden ontleend.

Kenmerken